Eladó Ház, Napkor

Ingatlan azonosító: HI-2491018

Szabolcs-Szatmár-Bereg megye - Napkor, Családi ház


55 900 000 Ft (146 719 €)

  • Hirdetés feladója: Ingatlaniroda
  • Pontos cím: Napkor
  • Típus: Eladó
  • Belső irodai azonosító: M312890-5065809
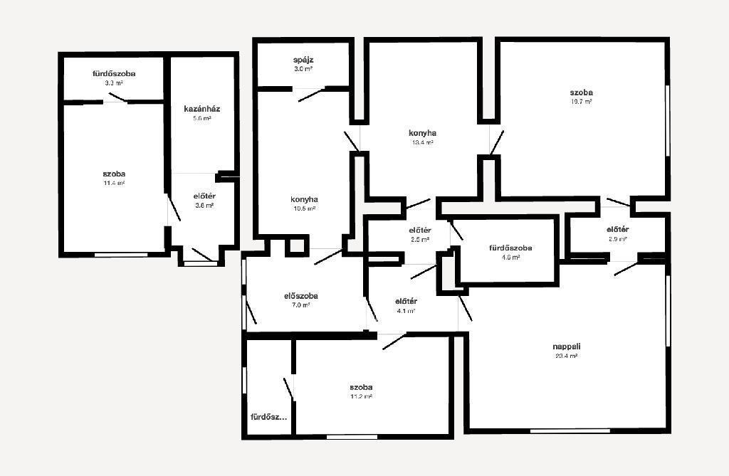
  • Alapterület: 125 m²
  • Telekterület: 5 900 m² ( 1 640 négyszögöl )
  • Építés éve: 1942
  • Egész szobák száma (12 m² felett): 2 db
  • Félszobák száma (6-12 m² között): 1 db
  • Ingatlan állapota: jó állapotú
  • Komfort: duplakomfortos
  • Fűtés: gáz (cirko)
  • Pince: nincs
  • Akadálymentesített: nincs
  • Napelem van?: nincs
  • Légkondicionáló: nincs

Leírás

Tágas családi ház hatalmas telekkel és gazdag lehetőségekkel Napkoron. Eladó Napkoron egy 125 nm-es, folyamatosan karbantartott családi ház, amely igazi sokoldalúságot kínál új tulajdonosának. A ház vegyes falazattal épült: a stabil vályogfalhoz később téglaépítésű, szigetelt rész csatlakozott, amely így kényelmes és praktikus otthont biztosít. Az ingatlan belső tere átgondolt és élhető: 2 hálószoba + nappali - ideális családoknak, tágas konyha étkezővel és spájzzal, 2 fürdőszoba, ami növeli a kényelmet. Fűtés: gázcirkó + lemez radiátorok biztosítják az otthon melegét. Külön bejárattal rendelkező lakrész (szoba, konyha, fürdő) - kiváló lehetőség akár irodának, nagyszülői lakrésznek vagy kiadásra. A házhoz tartozik még: 18 nm-es garázs, üvegház- amely ideális saját termesztéshez, nyári konyha konténerházból kialakítva, egyéb kerti tároló, pince. Az udvaron egy 2 férőhelyes kutyakennel is ki van alakítva, így négylábú kedvencek számára is tökéletes otthon. Gondozott, 5228 nm-es telek, termő gyümölcsfákkal beültetve - egy valódi kis birodalom! Ez az ingatlan tökéletes választás azoknak, akik szeretnének nagy telekkel rendelkező, jól karbantartott családi házba költözni, ahol a vidéki nyugalom és az önellátás lehetősége kéz a kézben jár a kényelmes otthonérzettel. Ha felkeltette érdeklődését, hívjon bizalommal és egyeztessünk időpontot a megtekintésre! OTP Banki hátterünknek köszönhetően finanszírozási igényekben (pl. Otthon Start Hitelprogram , Babaváró, Falusi CSOK, CSOK Plusz, Lakáshitel, Személyi kölcsön stb.), illetve biztosítások tekintetében is díjmentesen, soron kívüli ügyintézéssel segítem ügyfeleim! Referenciaszám: M312890

E-mail küldése a hirdetőnek

Hibás hirdetés bejelentése

Sikeres elküldtük a hiba bejelentést.

Hirdető adatai

Kiss Gyula
E-mail cím: gyula.kiss@otpip.hu
Telefonszám: +36706151234
OTPip
Hirdetés feladója: Ingatlaniroda
Ingatlaniroda: OTPip
E-mail cím: nyiregyhaza.hunyadi@otpip.hu
Telefonszám: +36303397954

Képek



Térkép


Ajánlott ingatlanok

Családi ház

Eladó Ház, Nyíregyháza

Keresés azonosító alapján: HI-2507403
  • Nyíregyháza
  • Alapterület: 200 m²
  • Telekterület: 807 m²
  • Ár: 89 900 000 Ft (235 958 €)
  • Feltöltés dátuma: 2025.11.29.
  •  
Családi ház

Eladó Ház, Vaja

Keresés azonosító alapján: HI-2474963
  • Vaja
  • Alapterület: 112 m²
  • Telekterület: 800 m²
  • Ár: 20 000 000 Ft (52 493 €)
  • Feltöltés dátuma: 2025.09.17.
  •  
Családi ház

Eladó Ház, Nyíregyháza

Keresés azonosító alapján: HI-2475370
  • Nyíregyháza
  • Alapterület: 165 m²
  • Telekterület: 631 m²
  • Ár: 95 000 000 Ft (249 344 €)
  • Feltöltés dátuma: 2025.09.18.
  •  
Családi ház

Eladó Ház, Nyírbátor

Keresés azonosító alapján: HI-2481434
  • Nyírbátor
  • Alapterület: 110 m²
  • Telekterület: 1 543 m²
  • Ár: 24 500 000 Ft (64 304 €)
  • Feltöltés dátuma: 2025.09.28.
  •  
Facebook
Blogger
Twitter
Tweets by hasznaltingatla
Flickr