Eladó ház, Nyáregyháza

Ingatlan azonosító: HI-2568709

Pest megye - Nyáregyháza, Ikerház


82 900 000 Ft (230 919 €)

  • Hirdetés feladója: Ingatlaniroda
  • Pontos cím: Nyáregyháza
  • Típus: Eladó
  • Belső irodai azonosító: HZ051005-5220392
  • Alapterület: 97 m²
  • Telekterület: 540 m² ( 150 négyszögöl )
  • Építés éve: 2026
  • Egész szobák száma (12 m² felett): 4 db
  • Félszobák száma (6-12 m² között): 0 db
  • Fürdőszobák száma: 2 db
  • Ingatlan állapota: új építésű
  • Fűtés: egyéb
  • Pince: nincs
  • Akadálymentesített: nincs
  • Energiatanúsítvány: A+
  • Napelem van?: nincs
  • Légkondicionáló: nincs

Leírás

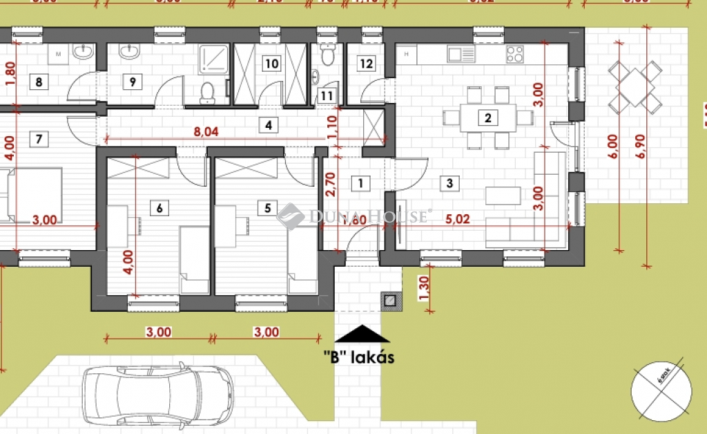
ÚJ ÉPÍTÉSŰ IKERHÁZI LAKÁS NYÁREGYHÁZÁN Nyáregyházán, nyugodt, rendezett környezetben kínálunk megvételre egy új építésű, kétlakásos ikerház egyik lakását. Az épület kialakítása szerint a két lakás a gépkocsibeálló mentén kapcsolódik egymáshoz. A műszaki megoldások célja a lakások közötti megfelelő szeparáció biztosítása. Egy korszerű műszaki tartalommal tervezett, praktikus elrendezésű otthon, amely a mai igényekhez igazodik. FŐBB PARAMÉTEREK * Lakótér: 92,83 m² * Terasz: 8,5 m² * Telekterület (használati megosztás szerint): kb. 540 m² HELYISÉGEK, ELRENDEZÉS * Amerikai konyhás nappali (30,15 m²) * 3 különnyíló hálószoba * 2 fürdőszoba * Háztartási helyiség MŰSZAKI TARTALOM(a műszaki leírás szerint) * 30 cm Porotherm Klíma tégla falazat * 10 cm grafitos EPS homlokzati hőszigetelés * 25 cm födémszigetelés * Vasbeton alaplemez, víz- és hőszigeteléssel * Betoncserép tetőfedés * Lábazati XPS szigetelés ELHELYEZKEDÉS A településről Budapest irányába közúton (M4, 4-es főút) és vasúton is biztosított a közlekedés. A legközelebbi vasútállomás Monoron érhető el, ahonnan a Nyugati pályaudvar kb. 40 perc alatt megközelíthető. A településen alapfokú oktatási intézmények elérhetők, további intézmények a környező településeken találhatók. EGYÉB INFORMÁCIÓK * Tervezett átadás: 2026. december * Tervezett energetikai besorolás: A+ (a hatályos előírások szerint) A hirdetésben szereplő képek referencia ingatlant ábrázolnak, az épülő ingatlan megjelenése ettől eltérhet. Érd.: Láng Vera: +36/30-438-69-12 email: lang.vera@dh.hu Referencia szám: HZ051005

E-mail küldése a hirdetőnek

Hibás hirdetés bejelentése

Sikeres elküldtük a hiba bejelentést.

Hirdető adatai

Láng Vera
E-mail cím: lang.vera@dh.hu
Telefonszám: +36304386912
Duna House
Hirdetés feladója: Ingatlaniroda
Ingatlaniroda: Duna House
E-mail cím: gyomro@dh.hu
Telefonszám: +3629263520

Képek



Térkép


Ajánlott ingatlanok

Ikerház

Eladó ház, Monor

Keresés azonosító alapján: HI-2560856
  • Monor
  • Alapterület: 80 m²
  • Telekterület: 350 m²
  • Ár: 87 500 000 Ft (243 733 €)
  • Feltöltés dátuma: 2026.04.14.
  •  
Ikerház

Eladó ház, Gyömrő

Keresés azonosító alapján: HI-2571141
  • Gyömrő
  • Alapterület: 70 m²
  • Telekterület: 1 334 m²
  • Ár: 96 000 000 Ft (267 409 €)
  • Feltöltés dátuma: 2026.05.14.
  •  
Ikerház

Eladó ház, Vasad

Keresés azonosító alapján: HI-2571142
  • Vasad
  • Alapterület: 89 m²
  • Telekterület: 500 m²
  • Ár: 74 900 000 Ft (208 635 €)
  • Feltöltés dátuma: 2026.05.14.
  •  
Ikerház

Eladó ház, Maglód

Keresés azonosító alapján: HI-2571147
  • Maglód
  • Alapterület: 71 m²
  • Telekterület: 328 m²
  • Ár: 92 500 000 Ft (257 660 €)
  • Feltöltés dátuma: 2026.05.14.
  •  
Facebook
Blogger
Twitter
Tweets by hasznaltingatla
Flickr