Eladó Ház, Nyíregyháza

Ingatlan azonosító: HI-2498923

Szabolcs-Szatmár-Bereg megye - Nyíregyháza, Családi ház


94 000 000 Ft (244 156 €)

  • Hirdetés feladója: Ingatlaniroda
  • Pontos cím: Nyíregyháza
  • Típus: Eladó
  • Belső irodai azonosító: M315677-5079198
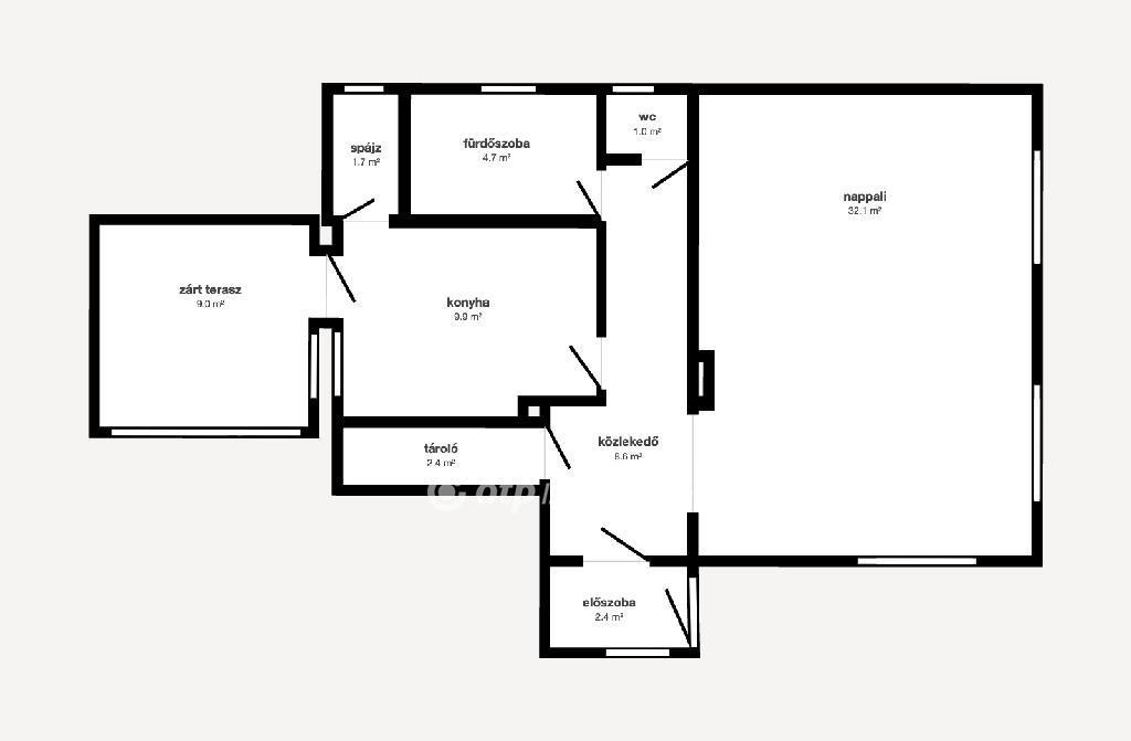
  • Alapterület: 137 m²
  • Telekterület: 991 m² ( 276 négyszögöl )
  • Építés éve: 1995
  • Egész szobák száma (12 m² felett): 4 db
  • Félszobák száma (6-12 m² között): 0 db
  • Ingatlan állapota: jó állapotú
  • Komfort: összkomfortos
  • Fűtés: gáz (cirko)
  • Pince: nincs
  • Akadálymentesített: nincs
  • Energiatanúsítvány: D
  • Napelem van?: nincs
  • Légkondicionáló: nincs

Leírás

Eladó családi ház Nyíregyháza Kállói út közelében - tágas, belső szintes, dupla garázsos ingatlan, parkosított telken! Nyíregyháza kedvelt, kertvárosi részén eladó egy 137 nm alapterületű, belső szintes, tégla építésű családi ház, melyet gondosan karbantartottak és folyamatosan fejlesztettek. Az ingatlan kívülről szigetelt, hőszigetelt műanyag nyílászárókkal felszerelt, így energiatakarékos és kényelmes otthont kínál. A földszinten egy tágas nappali található, amely igény esetén akár két külön szobává is átalakítható, továbbá konyha, spájz, fürdőszoba és zárt terasz kapott helyet. Az emeleten három külön nyíló szoba, egy újabb fürdőszoba és közlekedő található, így a ház nagyobb család számára is ideális elrendezésű. A ház alatt dupla állásos garázs biztosít kényelmes parkolást, az udvaron pedig garázs szerelőaknával, borospince, kemence és füstölő is helyet kapott. A fúrott kúttal ellátott, gondosan parkosított kert rendezett, zöld növényzettel és kellemes pihenőrészekkel teszi teljessé az otthon hangulatát. A fűtésről gázkazán, vegyes tüzelésű kazán, padlófűtés és radiátorok gondoskodnak, így a ház többféle módon is komfortosan fűthető. Ez az ingatlan kiváló választás azok számára, akik nagy élettérrel rendelkező, kényelmes, sokoldalúan használhat. OTP Banki hátterünknek köszönhetően finanszírozási igényekben (pl. Otthon Start Hitelprogram, Babaváró, Falusi CSOK, CSOK Plusz, Lakáshitel, Személyi kölcsön stb.), illetve biztosítások tekintetében is díjmentesen, soron kívüli ügyintézéssel segítem ügyfeleim! Referencia szám: M315677

E-mail küldése a hirdetőnek

Hibás hirdetés bejelentése

Sikeres elküldtük a hiba bejelentést.

Hirdető adatai

Takács Jánosné
E-mail cím: janosne.takacs@otpip.hu
Telefonszám: +36-20-510-2695
OTPip
Hirdetés feladója: Ingatlaniroda
Ingatlaniroda: OTPip
E-mail cím: nyiregyhaza@otpip.hu
Telefonszám: +36-70-439-8127

Képek



Térkép


Ajánlott ingatlanok

Családi ház

Eladó Ház, Nyíregyháza

Keresés azonosító alapján: HI-2487682
  • Nyíregyháza
  • Alapterület: 300 m²
  • Telekterület: 1 000 m²
  • Ár: 99 500 000 Ft (258 442 €)
  • Feltöltés dátuma: 2025.10.09.
  • klímás
Családi ház

Eladó Ház, Nyíregyháza

Keresés azonosító alapján: HI-2481773
  • Nyíregyháza
  • Alapterület: 150 m²
  • Telekterület: 1 100 m²
  • Ár: 79 900 000 Ft (207 532 €)
  • Feltöltés dátuma: 2025.09.30.
  •  
Családi ház

Eladó Ház, Nyíregyháza

Keresés azonosító alapján: HI-2491630
  • Nyíregyháza
  • Alapterület: 110 m²
  • Telekterület: 3 143 m²
  • Ár: 54 000 000 Ft (140 260 €)
  • Feltöltés dátuma: 2025.10.22.
  •  
Családi ház

Eladó Ház, Nyíregyháza

Keresés azonosító alapján: HI-2424697
  • Nyíregyháza
  • Alapterület: 230 m²
  • Telekterület: 5 000 m²
  • Ár: 69 000 000 Ft (179 221 €)
  • Feltöltés dátuma: 2025.05.29.
  •  
Facebook
Blogger
Twitter
Tweets by hasznaltingatla
Flickr