Eladó Ház, Nyíregyháza

Ingatlan azonosító: HI-2536084

Szabolcs-Szatmár-Bereg megye - Nyíregyháza, Családi ház


159 000 000 Ft (418 421 €)

  • Hirdetés feladója: Ingatlaniroda
  • Pontos cím: Nyíregyháza
  • Típus: Eladó
  • Belső irodai azonosító: M321805-5147008
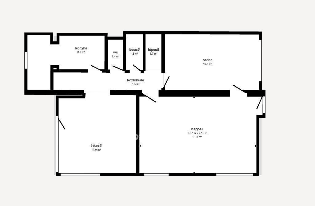
  • Alapterület: 161 m²
  • Telekterület: 1 500 m² ( 417 négyszögöl )
  • Építés éve: 2019
  • Egész szobák száma (12 m² felett): 3 db
  • Félszobák száma (6-12 m² között): 1 db
  • Ingatlan állapota: újszerű
  • Komfort: duplakomfortos
  • Fűtés: gáz (cirko)
  • Pince: nincs
  • Akadálymentesített: nincs
  • Napelem van?: nincs
  • Légkondicionáló: van

Leírás

Eladó modern, környezetbarát okosház csendes környezetben Nyíregyházán Új otthonát keresi? Bemutatjuk ezt a 160m2-es, tágas, napfényes, modern okosházat, amely nem csak kényelmes, hanem fenntartható megoldásokat is kínál! Az ingatlan jellemzői: - Csendes környék, nyugodt, családbarát környezet, távol a város zajától - Modern okosház: teljes mértékben távvezérelhető rendszer,amely kényelmessé és hatékonnyá teszi az otthoni mindennapokat - Parkosított udvar:karbantartott kert, ahol kellemes pillanatokat tölthet el családjával, a terasz és a játszótér ideális hely a pihenéshez és a gyermekek biztonságos játékához - 3 szoba, 1 gardróbszoba - konyha, étkező, nappali,kamra, mosókonyha, fürdőszoba, wc, teraszok A konyha rejtett kincse: - Beépített kamraajtó: A konyhabútor szerves részébe rejtett ajtón keresztül juthatunk be a kamrába. Ez az intelligens dizájn nem töri meg a konyha harmóniáját és folytonosságát,miközben maximális funkcionalitást nyújt. Ezek az innovatív megoldások nemcsak kényelmesebbé teszik az életet, hanem növelik az ingatlan értékét is. Egyedi fűtéstechnika: Az otthonban kétféle fűtési rendszer biztosítja a meleget, melyek hatékonyan és kényelmesen működnek együtt. - Gázkazán és padlófűtés - Kandalló hőbefúvásos rendszerrel: A hangulatos kandalló nem csak az adott helyiséget fűti, hanem a meleg levegő hőbefúvó rendszerrel az otthon minden szobájába eljut. Ezáltal a kandalló nemcsak esztétikai,hanem funkcionális elemként is szolgál,maximális komfortot biztosítva a hidegebb hónapokban. Fenntarthatósági megoldások: - Bio lebomló szennyvíztisztító rendszer: környezetbarát technológia, amely csökkenti a háztartási kiadásokat miközben óvja a természetet - Napelemek: Nemcsak a ház energiaellátását biztosítják, hanem elektromos autók töltésére is alkalmasak, tovább csökkentve a rezsiköltségeket Ez az ingatlan tökéletes választás mindazok számára, akik a modern technológiát és a környezettudatos életmódot helyezik előtérbe, miközben kényelmes,családias környezetre vágynak. Ne hagyja ki ezt a különleges lehetőséget- lépjen velünk kapcsolatba. További kérdéseivel vagy megtekintéssel kapcsolatban keressen bizalommal, akár hétvégén is! Kedvezményes kamatozású lakásvásárlási és felújítási hitelek, valamint CSOK és Babaváró ügyintézés az OTP hátterével irodánkban.

E-mail küldése a hirdetőnek

Hibás hirdetés bejelentése

Sikeres elküldtük a hiba bejelentést.

Hirdető adatai

Harsányi Nikolett
E-mail cím: nikolett.harsanyi@otpip.hu
Telefonszám: +36307220822
OTPip
Hirdetés feladója: Ingatlaniroda
Ingatlaniroda: OTPip
E-mail cím: nyiregyhaza.hunyadi@otpip.hu
Telefonszám: +36303397954

Képek



Térkép


Ajánlott ingatlanok

Családi ház

Eladó Ház, Nyíregyháza

Keresés azonosító alapján: HI-2479752
  • Nyíregyháza
  • Alapterület: 127 m²
  • Telekterület: 466 m²
  • Ár: 71 900 000 Ft (189 211 €)
  • Feltöltés dátuma: 2025.09.24.
  • klímás
Családi ház

Eladó Ház, Nyíregyháza

Keresés azonosító alapján: HI-2514873
  • Nyíregyháza
  • Alapterület: 77 m²
  • Telekterület: 1 378 m²
  • Ár: 56 000 000 Ft (147 368 €)
  • Feltöltés dátuma: 2025.12.26.
  •  
Családi ház

Eladó Ház, Tiszabercel

Keresés azonosító alapján: HI-2514863
  • Tiszabercel
  • Alapterület: 89 m²
  • Telekterület: 1 033 m²
  • Ár: 33 999 990 Ft (89 474 €)
  • Feltöltés dátuma: 2025.12.26.
  •  
Családi ház

Eladó Ház, Balkány

Keresés azonosító alapján: HI-2479717
  • Balkány
  • Alapterület: 100 m²
  • Telekterület: 1 061 m²
  • Ár: 35 000 000 Ft (92 105 €)
  • Feltöltés dátuma: 2025.09.24.
  •  
Facebook
Blogger
Twitter
Tweets by hasznaltingatla
Flickr