Eladó Ház, Nyíregyháza

Ingatlan azonosító: HI-2531681

Szabolcs-Szatmár-Bereg megye - Nyíregyháza, Családi ház


54 990 000 Ft (144 711 €)

  • Hirdetés feladója: Ingatlaniroda
  • Pontos cím: Nyíregyháza
  • Típus: Eladó
  • Belső irodai azonosító: M321136-5139195
  • Alapterület: 150 m²
  • Telekterület: 644 m² ( 179 négyszögöl )
  • Építés éve: 1972
  • Egész szobák száma (12 m² felett): 4 db
  • Félszobák száma (6-12 m² között): 0 db
  • Ingatlan állapota: közepes állapotú
  • Komfort: duplakomfortos
  • Fűtés: gáz + napkollektor
  • Pince: nincs
  • Akadálymentesített: nincs
  • Napelem van?: nincs
  • Légkondicionáló: nincs

Leírás

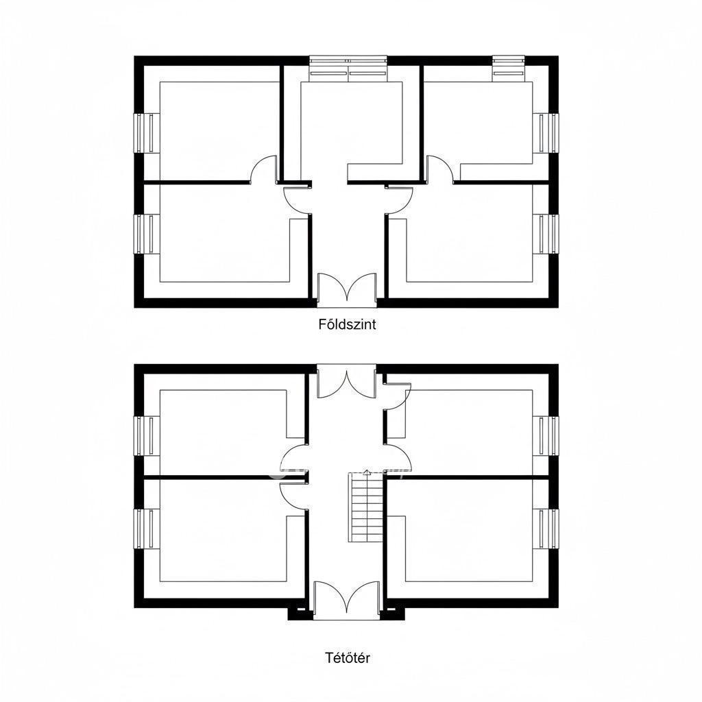
KÉT GENERÁCIÓS OTTHON A SÁGVÁRI SZÍVÉBEN ? Akár kulcsrakész felújítással! Összeköltözők és nagycsaládosok figyelem! Nyíregyháza-Ságvári kertváros egyik legkedveltebb, csendes utcájában, kiváló szomszédságban eladóvá vált egy remek adottságokkal rendelkező, 150 nm-es, háromszintes családi ház, amely praktikus elosztásának köszönhetően akár két generáció számára is kényelmes, teljesen szeparált életteret biztosít. Az 1972-ben épült, masszív téglafalazatú és 5 cm-es homlokzati szigeteléssel ellátott ingatlanban két konyha és két fürdőszoba is helyet kapott, így az együttélés mindenki számára zavartalan lehet. A földszinten egy tágas, amerikai konyhás nappaliként vagy külön lakrészként is funkcionáló tér, egy nagy szoba és tárolók találhatók. A magasföldszint a családi élet központja: itt egy világos nappali, konyha, kamra, hálószoba és fürdőszoba kapott helyet, valamint innen nyílik a ház egyik legnagyobb ékessége, a lenyűgöző méretű, 15 nm-es terasz. Az emeleti szinten további két szoba és erkélyek várják az új lakókat. A házhoz tartozó 644 nm-es telek igazi gondozott pihenőkert, ahol a növények vízellátását kiépített öntözőrendszer biztosítja, a szabadidő minőségi eltöltését pedig egy hangulatos filagória és egy épített szalonnasütő teszi teljessé, továbbá az udvaron egy 26 nm-es önálló garázs is rendelkezésre áll. Az ingatlan jelenleg jó szerkezeti állapotú, de különlegessége, hogy igény szerint akár teljes körűen felújítva, kulcsrakész állapotban is megvásárolható, így Önnek csak költöznie kell. Amennyiben egy értékálló, tágas otthont keres kiváló környéken, keressen bizalommal a hét bármely napján! Az OTP Bankcsoport teljes körű ügyintézéssel áll az eladók és a vevők rendelkezésére! Az adásvételi szerződés megkötéséhez igény szerint megbízható ügyvédi közreműködést és sorban állás nélküli hitel tanácsadást biztosítunk ügyfeleink részére! Referenciaszám: M319152 Referencia szám: M321136

E-mail küldése a hirdetőnek

Hibás hirdetés bejelentése

Sikeres elküldtük a hiba bejelentést.

Hirdető adatai

Támcsu Richárd
E-mail cím: richard.tamcsu@otpip.hu
Telefonszám: +36-70-609-1358
OTPip
Hirdetés feladója: Ingatlaniroda
Ingatlaniroda: OTPip
E-mail cím: debrecenkurtos@otpip.hu
Telefonszám: +36-20-528-8700

Képek



Térkép


Ajánlott ingatlanok

Családi ház

Eladó Lakás, Nyíregyháza

Keresés azonosító alapján: HI-2531683
  • Nyíregyháza
  • Alapterület: 70 m²
  • Telekterület: 713 m²
  • Ár: 55 000 000 Ft (144 737 €)
  • Feltöltés dátuma: 2026.02.04.
  •  
Családi ház

Eladó Ház, Gávavencsellő

Keresés azonosító alapján: HI-2488946
  • Alapterület: 70 m²
  • Telekterület: 1 040 m²
  • Ár: 8 500 000 Ft (22 368 €)
  • Feltöltés dátuma: 2025.10.12.
  •  
Családi ház

Eladó Ház, Tokaj

Keresés azonosító alapján: HI-2509733
  • Tokaj
  • Alapterület: 410 m²
  • Telekterület: 1 048 m²
  • Ár: 84 900 000 Ft (223 421 €)
  • Feltöltés dátuma: 2025.12.04.
  •  
Családi ház

Eladó Ház, Nyíregyháza

Keresés azonosító alapján: HI-2481681
  • Nyíregyháza
  • Alapterület: 100 m²
  • Telekterület: 734 m²
  • Ár: 95 000 000 Ft (250 000 €)
  • Feltöltés dátuma: 2025.09.29.
  •  
Facebook
Blogger
Twitter
Tweets by hasznaltingatla
Flickr