Eladó Ház, Nyúl

Ingatlan azonosító: HI-2506082

Győr-Moson-Sopron megye - Nyúl, Családi ház


149 500 000 Ft (382 353 €)

  • Hirdetés feladója: Ingatlaniroda
  • Pontos cím: Nyúl
  • Típus: Eladó
  • Belső irodai azonosító: M316857-5094964
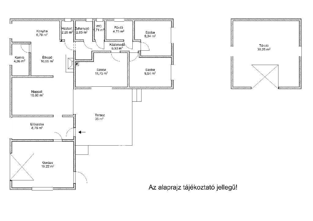
  • Alapterület: 143 m²
  • Telekterület: 810 m² ( 225 négyszögöl )
  • Építés éve: 2005
  • Egész szobák száma (12 m² felett): 4 db
  • Félszobák száma (6-12 m² között): 0 db
  • Ingatlan állapota: felújított
  • Komfort: duplakomfortos
  • Fűtés: gáz (cirko)
  • Pince: nincs
  • Akadálymentesített: nincs
  • Napelem van?: nincs
  • Légkondicionáló: nincs

Leírás

Igazi minőség és nyugalom Nyúl központjában. Eladó egy csendes kis zsákutca utolsó háza. Óvoda és az iskola a közelben. A ház 2005-ben épült, jól átgondolt egyedi igények alapján, kiváló minőségű anyagokból. A tulajdonosok nagy figyelmet fordítottak az energiatakarékosságra így napelem rendszert építettek ki. Bár a házat 44-es porotherm téglából építették, kapott még 5 cm szigetelést, a tökéletes hőmegtartás érdekében. Van fúrt kút, szivattyúval. A házban 3 hálószoba, nappali, két fürdőszoba és konditerem szolgálja a benne lakók kényelmét. A konyhában gondosan megtervezett helytakarékos, igényes egyedi konyhabútor, minden extrával ellátva. A nappaliban és a szobákban egyedi méretre készült bútorok vannak, rengeteg tárolási lehetőséggel. A fűtést gázkazán biztosítja, illetve egy szép cserépkályha, ami igazán hangulatossá teszi a hideg téli estéket és önállóan is befűti az egész házat. Az emeleti tetőtér jelenleg részlegesen van beépítve, előtér és konditerem van fent. A tetőtér többi része, kb. 70 m2-es terület még igény szerint kialakítható. A házban van garázs, amiből rögtön az előszobába vezető ajtón tudunk a hideg és az eső elől elzártan, kényelmesen kipakolni az autóból. A nagy 35 m2-es hangulatos pergolás terasz biztosítja, hogy egy hosszú nap után megpihenhessünk és gyönyörködhessünk az udvarban virágzó bokrok, gyümölcsfák között, vagy ha kedvünk van kicsit kertészkedhetünk is a konyhakertben. Az udvaron továbbá van még egy kedves kis 30 m2-es melléképület, ami kis átalakítás után akár vendégházként is funkcionálhat. Amennyiben az ingatlan felkeltette az érdeklődését, kérem keressen bizalommal. Referencia szám: M316857 149500000 Ft Amennyiben az ingatlan felkeltette érdeklődését, esetleg bármivel kapcsolatban kérdése lenne, keressen Bizalommal! Verrasztó Edina: +36703156380 Referencia szám: M316857-HI

E-mail küldése a hirdetőnek

Hibás hirdetés bejelentése

Sikeres elküldtük a hiba bejelentést.

Hirdető adatai

Verrasztó Edina Irén
E-mail cím: edina.iren.verraszto@otpip.hu
Telefonszám: +36703156380
OTPip
Hirdetés feladója: Ingatlaniroda
Ingatlaniroda: OTPip
E-mail cím: papa@otpip.hu
Telefonszám: +36707081049

Képek



Térkép


Ajánlott ingatlanok

Családi ház

Eladó Ház, Ajka

Keresés azonosító alapján: HI-2514735
  • Ajka
  • Alapterület: 77 m²
  • Telekterület: 542 m²
  • Ár: 51 300 000 Ft (131 202 €)
  • Feltöltés dátuma: 2025.12.24.
  •  
Családi ház

Eladó Ház, Bakonyszentlászló

Keresés azonosító alapján: HI-2473316
  • Bakonyszentlászló
  • Alapterület: 258 m²
  • Telekterület: 821 m²
  • Ár: 117 000 000 Ft (299 233 €)
  • Feltöltés dátuma: 2025.09.12.
  •  
Családi ház

Eladó Ház, Pápa

Keresés azonosító alapján: HI-2480499
  • Pápa
  • Alapterület: 69 m²
  • Telekterület: 646 m²
  • Ár: 32 990 000 Ft (84 373 €)
  • Feltöltés dátuma: 2025.09.25.
  •  
Családi ház

Eladó Ház, Szerecseny

Keresés azonosító alapján: HI-2526097
  • Szerecseny
  • Alapterület: 67 m²
  • Telekterület: 2 943 m²
  • Ár: 40 990 000 Ft (104 834 €)
  • Feltöltés dátuma: 2026.01.26.
  •  
Facebook
Blogger
Twitter
Tweets by hasznaltingatla
Flickr