Eladó Ház, Ostoros

Ingatlan azonosító: HI-2533234

Heves megye - Ostoros, Családi ház


85 000 000 Ft (224 868 €)

  • Hirdetés feladója: Ingatlaniroda
  • Pontos cím: Ostoros
  • Típus: Eladó
  • Belső irodai azonosító: M320218-5140305
  • Alapterület: 138 m²
  • Telekterület: 1 219 m² ( 339 négyszögöl )
  • Építés éve: 1970
  • Egész szobák száma (12 m² felett): 4 db
  • Félszobák száma (6-12 m² között): 0 db
  • Ingatlan állapota: jó állapotú
  • Komfort: összkomfortos
  • Fűtés: gáz (cirko)
  • Pince: nincs
  • Akadálymentesített: nincs
  • Napelem van?: nincs
  • Légkondicionáló: nincs

Leírás

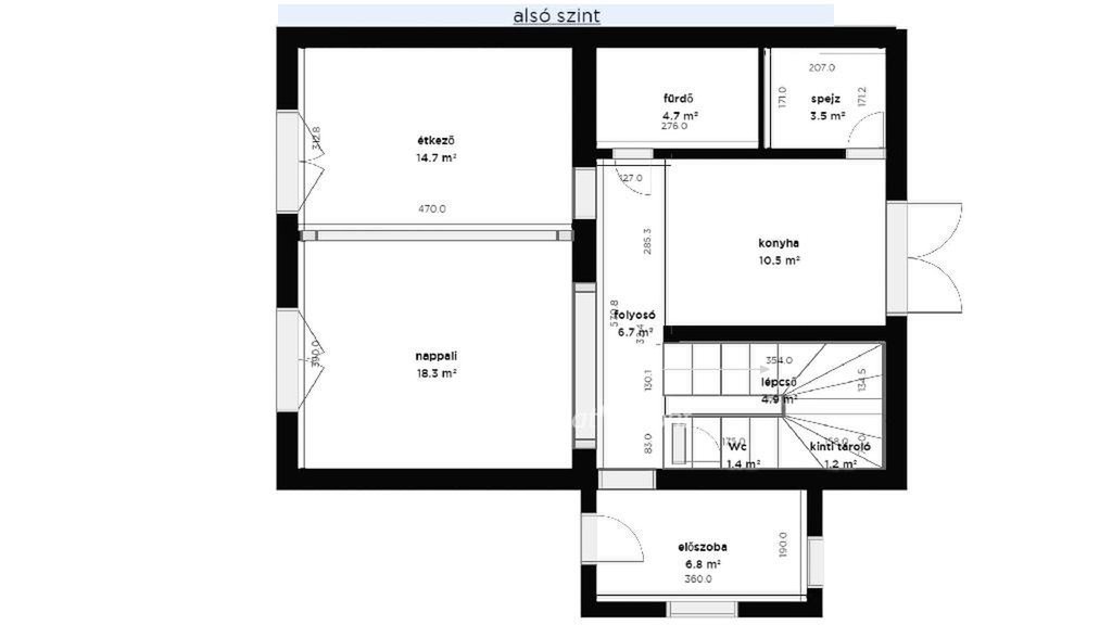
Kizárólag az OTP Ingatlanpont kínálatában! Heves megye egyik kedvelt településén, Ostoroson, nyugodt, jól megközelíthető környezetben kínálunk megvételre egy 130 m2-es, kétszintes, kiváló állapotú családi házat, amely 1219 m2-es telken helyezkedik el. Az ingatlan kialakítása praktikus és élhető, minden négyzetmétere átgondolt: Földszint: - tágas, világos nappali-étkező-konyha egybenyitva, - előszoba, - külön WC, - fürdőszoba WC-vel, - kamra (spejz). Emelet: - 3 külön nyíló szoba, - kis gardrób, - fürdőszoba WC-vel. A ház egyik legnagyobb előnye a kiemelkedő műszaki felszereltség és alacsony fenntartási költség: - gáz-cirkó fűtés - hűtő?fűtő klímaberendezés - 5,5 kW-os napelemrendszer + 10 kW-os akkumulátor - műanyag, 3 rétegű nyílászárók - 10 cm EPS polisztirol homlokzati hőszigetelés - emeleti mennyezeti szigetelés - alsó szinten teljes villamoshálózat csere - új kőszórt Lindab cserepeslemez tető - Rocca gipszkarton mennyezet minden helyiségben Az udvar rendezett, két autó kényelmes parkolására alkalmas. A telken található egy külön melléképület, két bejárattal, amely kiváló lehet tárolónak, műhelynek vagy akár vállalkozási célra is. Kiváló lokáció: A közelben bolt, gyógyszertár, buszmegálló pár perc sétával elérhető, így a mindennapi élet kényelmesen megoldható. Ez az ingatlan ideális választás családoknak, de tökéletes lehet azok számára is, akik modern, energiatakarékos, hosszú távon is értékálló otthont keresnek. Ne hagyja ki ezt a lehetőséget! Irodánk teljes körű szolgáltatást kínál ügyfeleinek: segítünk a támogatott és piaci alapú, jelenleg kiemelkedően kedvező, 3%-os kamatozású hitelek ügyintézésében, biztosítjuk az ügyvédi hátteret, valamint az energetikai tanúsítvány elkészítését is, így az adásvétel minden lépése biztonságosan és gördülékenyen valósulhat meg. Megtekintéssel és további információval kapcsolatban forduljon hozzánk bizalommal!

E-mail küldése a hirdetőnek

Hibás hirdetés bejelentése

Sikeres elküldtük a hiba bejelentést.

Hirdető adatai

Tarisznyás Helga
E-mail cím: helga.tarisznyas@otpip.hu
Telefonszám: +36-70-770-4501
OTPip
Hirdetés feladója: Ingatlaniroda
Ingatlaniroda: OTPip
E-mail cím: eger@otpip.hu
Telefonszám: +36703772977

Képek



Térkép


Ajánlott ingatlanok

Családi ház

Eladó Ház, Andornaktálya

Keresés azonosító alapján: HI-2513721
  • Andornaktálya
  • Alapterület: 73 m²
  • Telekterület: 1 295 m²
  • Ár: 49 900 000 Ft (132 011 €)
  • Feltöltés dátuma: 2025.12.18.
  •  
Családi ház

Eladó Ház, Felsőtárkány

Keresés azonosító alapján: HI-2527277
  • Felsőtárkány
  • Alapterület: 80 m²
  • Telekterület: 903 m²
  • Ár: 48 000 000 Ft (126 984 €)
  • Feltöltés dátuma: 2026.01.29.
  •  
Családi ház

Eladó Ház, Eger

Keresés azonosító alapján: HI-2527891
  • Eger
  • Alapterület: 200 m²
  • Telekterület: 906 m²
  • Ár: 149 900 000 Ft (396 561 €)
  • Feltöltés dátuma: 2026.01.30.
  •  
Családi ház

Eladó Ház, Eger

Keresés azonosító alapján: HI-2387100
  • Eger
  • Alapterület: 105 m²
  • Telekterület: 135 m²
  • Ár: 53 000 000 Ft (140 212 €)
  • Feltöltés dátuma: 2025.03.12.
  •  
Facebook
Blogger
Twitter
Tweets by hasznaltingatla
Flickr