Eladó Ház, Pápa

Ingatlan azonosító: HI-2473378

Veszprém megye - Pápa, Családi ház


37 999 000 Ft (99 997 €)

  • Hirdetés feladója: Ingatlaniroda
  • Pontos cím: Pápa
  • Típus: Eladó
  • Belső irodai azonosító: M300407-4982365
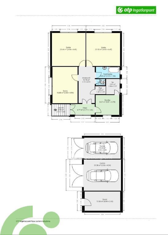
  • Alapterület: 64 m²
  • Telekterület: 668 m² ( 186 négyszögöl )
  • Építés éve: 1940
  • Egész szobák száma (12 m² felett): 3 db
  • Félszobák száma (6-12 m² között): 0 db
  • Ingatlan állapota: jó állapotú
  • Komfort: összkomfortos
  • Fűtés: gáz (konvektor)
  • Pince: nincs
  • Akadálymentesített: nincs
  • Napelem van?: nincs
  • Légkondicionáló: nincs

Leírás

ELADÓ PÁPÁN EGY PRAKTIKUS ELRENDEZÉSŰ OTTHON! Eladásra kínálok Veszprém vármegyében, Pápa kertvárosi részén, tégla falazatú, 2 szobás, 64 m2-es kellemes hangulatú, családi házat, 668 m2-es telken. A csendes mellékutcában elhelyezkedő, jó adottságokkal rendelkező, ház folyamatos felújítási munkákon, korszerűsítéseken esett át az évek során, - külső szigetelést kapott, ami garantálja a hőmegtartást, az új fa nyílászárók, új konyhabútor vár a leendő tulajdonosra. Az ingatlan elhelyezkedése előnyösAz ingatlan kettő teljes értékű, utcára néző, napfényes szobából, előszobából, konyhából, kamrából, fürdőszobából és WC-ből, teraszból áll. A telken találhatók garázs, nyárikonyha, tároló helységek, melléképületek. A konyhakert méreténél fogva alkalmas egyéni termesztésre, több gyümölcsfával, illetve rendelkezik egy füvesített udvar résszel is. Téli hideg napokon a ház melegéről gázkonvektorok és fatüzelésű cserépkályha gondoskodnak. A meleg vizet villanybojler szolgáltatja. A ház állapota szerkezetileg és statikailag kiváló, szigetelve lett. Tetőszerkezete jó állapotú, cserepes borítású, szigetelt. A padlástere ugyancsak gondozott. A nyílászárók cseréje megtörtént, redőnnyel, szunyoghálóval ellátottak. A szobák új, egységes, laminált parketta burkolatúak, a többi helyiség járólap borítású. A ház csendes, forgalommentes utcában áll, elhelyezkedése szempontjából meglehetősen jó adottságokkal rendelkezik, közel van buszmegálló, bolt, gyógyszertár, továbbá egy rövidebb sétával a Várkvert, Buszpályaudvar is elérhető. A ház kis mérete miatt könnyen és költséghatékonyan átalakítható, modernizálható, energia szempontjából önellátó ingatlan hozható létre. Az ingatlan szinte azonnal költözhető. Ajánlom mindazon érdeklődők figyelmébe, akik barátságos, biztonságos és nyugodt, családias környezetben keresnek otthont. Az OTP Ingatlanpont teljes körű ügyintézéssel áll az eladók és a vevők rendelkezésére. A kínálatunkból választott ingatlan finanszírozásához kedvezményes hitelkonstrukciót kínálunk. Az adásvételi szerződés megkötéséhez igény szerint megbízható ügyvédi közreműködést biztosítunk, és segítséget nyújtunk az adásvételhez kapcsolódó ügyek intézéséhez is. Az ingatlanról készült alaprajz, illetve fényképfelvételek az OTP Ingatlanpont szellemi tulajdonát képezik. Amennyiben felkeltette érdeklődését az általam kínált ingatlan, keressen bizalommal. 37999000 Ft Amennyiben az ingatlan felkeltette érdeklődését, esetleg bármivel kapcsolatban kérdése lenne, keressen Bizalommal! Verrasztó Edina: +36703156380 Referencia szám: M300407-HI

E-mail küldése a hirdetőnek

Hibás hirdetés bejelentése

Sikeres elküldtük a hiba bejelentést.

Hirdető adatai

Verrasztó Edina Irén
E-mail cím: edina.iren.verraszto@otpip.hu
Telefonszám: +36703156380
OTPip
Hirdetés feladója: Ingatlaniroda
Ingatlaniroda: OTPip
E-mail cím: celldomolk@otpip.hu
Telefonszám: +36707081049

Képek



Térkép


Ajánlott ingatlanok

Családi ház

Eladó Ház, Ravazd

Keresés azonosító alapján: HI-2506088
  • Ravazd
  • Alapterület: 111 m²
  • Telekterület: 867 m²
  • Ár: 124 990 000 Ft (328 921 €)
  • Feltöltés dátuma: 2025.11.26.
  • klímás
Családi ház

Eladó Ház, Pápa

Keresés azonosító alapján: HI-2473346
  • Pápa
  • Alapterület: 80 m²
  • Telekterület: 438 m²
  • Ár: 37 900 000 Ft (99 737 €)
  • Feltöltés dátuma: 2025.09.12.
  •  
Családi ház

Eladó Ház, Pápa

Keresés azonosító alapján: HI-2473269
  • Pápa
  • Alapterület: 55 m²
  • Telekterület: 74 m²
  • Ár: 17 500 000 Ft (46 053 €)
  • Feltöltés dátuma: 2025.09.12.
  •  
Családi ház

Eladó Ház, Kemenesmihályfa

Keresés azonosító alapján: HI-2473293
  • Kemenesmihályfa
  • Alapterület: 84 m²
  • Telekterület: 2 014 m²
  • Ár: 29 999 000 Ft (78 945 €)
  • Feltöltés dátuma: 2025.09.12.
  •  
Facebook
Blogger
Twitter
Tweets by hasznaltingatla
Flickr