Eladó Ház, Parád

Ingatlan azonosító: HI-2531920

Heves megye - Parád, Családi ház


110 000 000 Ft (305 556 €)

  • Hirdetés feladója: Ingatlaniroda
  • Pontos cím: Parád
  • Típus: Eladó
  • Belső irodai azonosító: M321421-5139051
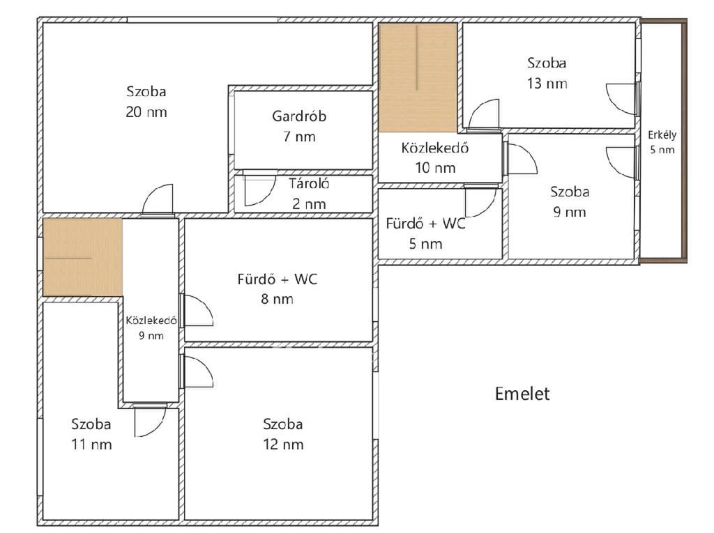
  • Alapterület: 427 m²
  • Telekterület: 1 274 m² ( 354 négyszögöl )
  • Építés éve: 1981
  • Egész szobák száma (12 m² felett): 10 db
  • Félszobák száma (6-12 m² között): 0 db
  • Ingatlan állapota: jó állapotú
  • Komfort: duplakomfortos
  • Fűtés: gáz (cirko)
  • Pince: nincs
  • Akadálymentesített: nincs
  • Napelem van?: nincs
  • Légkondicionáló: nincs

Leírás

Eladó gyönyörű, tágas családi ház Parádfürdő legkedveltebb részén ? 427 nm-es élettér egy 1300 nm-es telken! Keresi új otthonát egy csendes, mégis jól megközelíthető környezetben? Itt a lehetőség, hogy valami igazán különlegeset találjon! Főbb jellemzők: Többgenerációs családi ház, összesen 10 szoba, ideális nagycsaládnak vagy több funkciós otthonnak. Tágas, 427 nm-es lakóterület, amely rengeteg lehetőséget rejt magában 1300 nm-es saját telek ? kert, pihenőhely és szabadtéri programok helyszíne Önálló garázs és több fedett autóbeálló ? kényelmes parkolás Duplakomfortos kialakítás és jó állapot ? azonnal költözhető Modern komfortok, légkondicionálóval felszerelt Elhelyezkedés: Parád ? festői környezetben, a Mátra lábánál, ahol a természet közelsége, a nyugalom és a friss levegő mindennapos életérzést ad! Miért érdemes meglátogatni ezt az ingatlant? Ez nem egy átlagos ház: tágas terekkel, sok funkciós helyiségekkel, és egy olyan telekkel rendelkezik, ahol bőven van hely akár családi programokra, kertészkedésre, vagy vendéglátásra egyaránt. A több szint és a külön bejáratok akár apartmanházzá vagy vendégházzá való átalakítást is lehetővé tesz. Ne maradjon le! Ez a ritka lehetőség akár otthonnak, akár befektetésnek is tökéletes választás. Hívjon még ma, hogy időpontot egyeztessünk! Az energetikai tanúsítvány készítése folyamatban van, amint rendelkezésre áll, úgy azzal a hirdetés frissítésre kerül.

E-mail küldése a hirdetőnek

Hibás hirdetés bejelentése

Sikeres elküldtük a hiba bejelentést.

Hirdető adatai

Ivádi Zoltánné
E-mail cím: ivadi.zoltanne@otpip.hu
Telefonszám: +36-70-377-3349
OTPip
Hirdetés feladója: Ingatlaniroda
Ingatlaniroda: OTPip
E-mail cím: eger@otpip.hu
Telefonszám: +36703772977

Képek



Térkép


Ajánlott ingatlanok

Családi ház

Eladó Ház, Szilaspogony

Keresés azonosító alapján: HI-2509255
  • Szilaspogony
  • Alapterület: 55 m²
  • Telekterület: 1 487 m²
  • Ár: 8 900 000 Ft (24 722 €)
  • Feltöltés dátuma: 2025.12.03.
  •  
Családi ház

Eladó Ház, Eger

Keresés azonosító alapján: HI-2510835
  • Eger
  • Alapterület: 220 m²
  • Telekterület: 2 704 m²
  • Ár: 139 000 000 Ft (386 111 €)
  • Feltöltés dátuma: 2025.12.09.
  • klímás
Családi ház

Eladó Ház, Pétervására

Keresés azonosító alapján: HI-2528110
  • Pétervására
  • Alapterület: 55 m²
  • Telekterület: 1 174 m²
  • Ár: 9 000 000 Ft (25 000 €)
  • Feltöltés dátuma: 2026.01.31.
  •  
Családi ház

Eladó Ház, Istenmezeje

Keresés azonosító alapján: HI-2528112
  • Istenmezeje
  • Alapterület: 60 m²
  • Telekterület: 1 007 m²
  • Ár: 21 500 000 Ft (59 722 €)
  • Feltöltés dátuma: 2026.01.31.
  •  
Facebook
Blogger
Twitter
Tweets by hasznaltingatla
Flickr