Eladó Ház, Püspökladány

Ingatlan azonosító: HI-2495072

Hajdú-Bihar megye - Püspökladány, Vályogház


22 800 000 Ft (60 000 €)

  • Hirdetés feladója: Ingatlaniroda
  • Pontos cím: Püspökladány
  • Típus: Eladó
  • Belső irodai azonosító: M313697-5072923
  • Alapterület: 100 m²
  • Telekterület: 1 233 m² ( 343 négyszögöl )
  • Építés éve: 1962
  • Egész szobák száma (12 m² felett): 2 db
  • Félszobák száma (6-12 m² között): 0 db
  • Ingatlan állapota: közepes állapotú
  • Komfort: összkomfortos
  • Fűtés: gáz (konvektor)
  • Pince: nincs
  • Akadálymentesített: nincs
  • Napelem van?: nincs
  • Légkondicionáló: nincs

Leírás

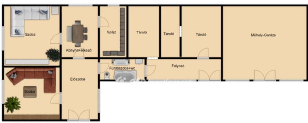
Eladásra kínálunk Püspökladány központjában 1233m2 telken lévő 69m2 családi házat! A város a Sárrét térségnek a központja amely 4-es főút mellett helyezkedik el és kiváló infrastruktúrával rendelkezik! Az 1962-ben épült ingatlan kedvező lokációjának köszönhetően minden szolgáltatást nyújtó intézménnyel körül van ölelve . Főbb paraméterei: -tégla alapon vályog falazatú -a tető fa szerkezetű és síkpala héjazatú -az elektromos és vízhálózat korszerűsítésre vár -a nyílászáró korhű álapotú -a padlózat hideg-melegburkolatú -a víz hőmérsékletét villanybojler szabályozza -az otthon melegét gázfűtés biztosítja konvektor hőleadó által , illetve cserépkályha -a belső helyiségben : előszoba , 2 szoba , konyha+étkező , spájz , fürdőszoba +wc található. Az ingatlanból közvetlen átjárási lehetőség van a 31m2 melléképületbe amely szintén tégla alapon vályog falazattal rendelkezik , a tető cserép héjazatú . Ebben az épületben folyosó és 3 tároló egység lett kialakítva. Tovább haladva az ingatlan vonulatában 30m2 építménnyel találkozunk , amely műhelyként-garázsként is egyaránt funkcionálhat. A folyamatosan karbantartott telek hátsó részében fúrt kút , füstölő , illetve 3 fakkos gazdálkodásra , állattartásra is alkalmas épület helyezkedik el. Az utcafronton , illetve a telekhatárt jelző kerítések mindenfelől tökéletes állapotban vannak! Per - teher és igénymentes ingatlan , amely azonnal bírtokba vehető ! Kedvezményes kamatozású lakásvásárlási és felújítási hitelek , BABAVÁRÓ ügyintézés az OTP hátterével irodánkban. További kérdéseire készséggel válaszolok a hét bármely napján keressen bizalommal !

E-mail küldése a hirdetőnek

Hibás hirdetés bejelentése

Sikeres elküldtük a hiba bejelentést.

Hirdető adatai

Czibere Judit
E-mail cím: judit.czibere@otpip.hu
Telefonszám: +36-70-342-8524
OTPip
Hirdetés feladója: Ingatlaniroda
Ingatlaniroda: OTPip
E-mail cím: hajduszoboszlo.bethlen@otpip.hu
Telefonszám: +36705953201

Képek



Térkép


Ajánlott ingatlanok

Vályogház

Eladó Ház, Hajdúszoboszló

Keresés azonosító alapján: HI-2493946
  • Hajdúszoboszló
  • Alapterület: 120 m²
  • Telekterület: 410 m²
  • Ár: 48 000 000 Ft (126 316 €)
  • Feltöltés dátuma: 2025.10.27.
  •  
Vályogház

Eladó Ház, Hajdúszoboszló

Keresés azonosító alapján: HI-2417527
  • Hajdúszoboszló
  • Alapterület: 100 m²
  • Telekterület: 681 m²
  • Ár: 31 700 000 Ft (83 421 €)
  • Feltöltés dátuma: 2025.05.13.
  •  
Vályogház

Eladó Ház, Tetétlen

Keresés azonosító alapján: HI-2514698
  • Tetétlen
  • Alapterület: 70 m²
  • Telekterület: 1 544 m²
  • Ár: 8 500 000 Ft (22 368 €)
  • Feltöltés dátuma: 2025.12.23.
  •  
Vályogház

Eladó Ház, Biharkeresztes

Keresés azonosító alapján: HI-2522869
  • Biharkeresztes
  • Alapterület: 32 m²
  • Telekterület: 1 418 m²
  • Ár: 16 900 000 Ft (44 474 €)
  • Feltöltés dátuma: 2026.01.15.
  •  
Facebook
Blogger
Twitter
Tweets by hasznaltingatla
Flickr