Eladó Ház, Putnok

Ingatlan azonosító: HI-2491367

Borsod-Abaúj-Zemplén megye - Putnok, Családi ház


15 000 000 Ft (38 660 €)

  • Hirdetés feladója: Ingatlaniroda
  • Pontos cím: Putnok
  • Típus: Eladó
  • Belső irodai azonosító: M312710-5066642
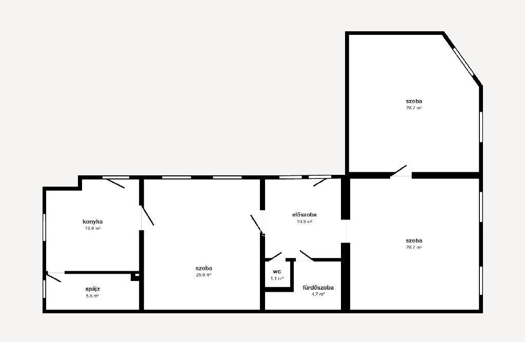
  • Alapterület: 120 m²
  • Telekterület: 950 m² ( 264 négyszögöl )
  • Építés éve: 1930
  • Egész szobák száma (12 m² felett): 3 db
  • Félszobák száma (6-12 m² között): 0 db
  • Ingatlan állapota: felújítandó
  • Komfort: komfort nélküli
  • Fűtés: egyéb
  • Pince: van
  • Akadálymentesített: nincs
  • Napelem van?: nincs
  • Légkondicionáló: van

Leírás

Eladó VÁLLALKOZÁSRA is alkalmas családi ház Putnok belvárosában! Az üzletsoron eladó egy vállalkozásra is alkalmas, 2 üzlethelyiséggel rendelkező családi ház nagy udvarral, gépkocsi beállási lehetőséggel. Az egyik üzlethelyiségben jelenleg is működik egy húsbolt, ennek megfelelően csempézett, klimatizált. A másik üzletheliség és a lakóépület felújítandó allapotú. Az épület tégla falazatú, jó állapotú fa gerendás, pala tetővel. A ház alatt pince, a 950m2 telken fúrt kút található. Kiváló lehetőség vállalkozás indítására vagy befektetésre, frekventált elhelyezkedésének köszönhetően. Ingatlanirodánk ügyvédi háttérrel, babaváró hitel, CSOK Plusz, valamint kamatkedvezményes hitel ügyintézésével támogatja ügyfelei ingatlanvásárlását! Érdeklődés esetén hivatkozzon az M312710 referenciaszámra! ÉRDEKLŐDNI: PUCSOK HAJNALKA 06204911723 Referencia szám: M312710

E-mail küldése a hirdetőnek

Hibás hirdetés bejelentése

Sikeres elküldtük a hiba bejelentést.

Hirdető adatai

Pucsok Hajnalka
E-mail cím: pucsok.hajnalka@otpip.hu
Telefonszám: +36-20-491-1723
OTPip
Hirdetés feladója: Ingatlaniroda
Ingatlaniroda: OTPip
E-mail cím: miskolc.szemere@otpip.hu
Telefonszám: +36-70-606-0062

Képek



Térkép


Ajánlott ingatlanok

Családi ház

Eladó Ház, Miskolc

Keresés azonosító alapján: HI-2477667
  • Miskolc
  • Alapterület: 230 m²
  • Telekterület: 1 030 m²
  • Ár: 175 000 000 Ft (451 031 €)
  • Feltöltés dátuma: 2025.09.20.
  •  
Családi ház

Eladó Ház, Miskolc

Keresés azonosító alapján: HI-2371614
  • Miskolc
  • Alapterület: 250 m²
  • Telekterület: 915 m²
  • Ár: 29 999 000 Ft (77 317 €)
  • Feltöltés dátuma: 2025.02.11.
  •  
Családi ház

Eladó Ház, Rudabánya

Keresés azonosító alapján: HI-2477848
  • Rudabánya
  • Alapterület: 86 m²
  • Telekterület: 595 m²
  • Ár: 14 990 000 Ft (38 634 €)
  • Feltöltés dátuma: 2025.09.22.
  •  
Családi ház

Eladó Ház, Borsodszirák

Keresés azonosító alapján: HI-2447752
  • Borsodszirák
  • Alapterület: 120 m²
  • Telekterület: 2 127 m²
  • Ár: 32 500 000 Ft (83 763 €)
  • Feltöltés dátuma: 2025.07.22.
  •  
Facebook
Blogger
Twitter
Tweets by hasznaltingatla
Flickr