Eladó Ház, Rádfalva

Ingatlan azonosító: HI-2533810

Baranya megye - Rádfalva, Vályogház


13 800 000 Ft (38 440 €)

  • Hirdetés feladója: Ingatlaniroda
  • Pontos cím: Rádfalva
  • Típus: Eladó
  • Belső irodai azonosító: M320896-5142917
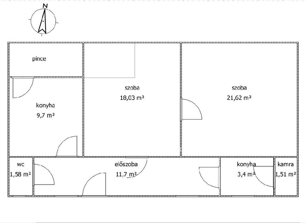
  • Alapterület: 68 m²
  • Telekterület: 1 530 m² ( 425 négyszögöl )
  • Építés éve: 1970
  • Egész szobák száma (12 m² felett): 2 db
  • Félszobák száma (6-12 m² között): 0 db
  • Fürdőszobák száma: 1 db
  • Ingatlan állapota: felújítandó
  • Komfort: komfortos
  • Fűtés: gáz (konvektor)
  • Pince: van
  • Akadálymentesített: van
  • Napelem van?: nincs
  • Légkondicionáló: nincs

Leírás

2 szobás ház eladó Rádfalván! 1530 négyzetméteres vízszintes terület tartozik hozzá. Fel kell újítani! Az ablakokat és a bejárati ajtót műanyagra cserélték. Az egyik szobában van gázkonvektoros fűtés. A másikban nincs, a konyhában kályha volt valamikor, a kémény használható. A villanybojlert leszerelték. A gázórát a szolgáltató elvitte, az új tulajdonosnak vissza fogja szereltetni. Vízszolgáltatás van, a szennyvizet derítőben lehet gyűjteni. A ház alatt egy pince van, ami benyúlik az egyik szoba alá. Referenciaszám: M320896 13800000 Ft Referencia szám: M320896

E-mail küldése a hirdetőnek

Hibás hirdetés bejelentése

Sikeres elküldtük a hiba bejelentést.

Hirdető adatai

Vincze László György
E-mail cím: vincze.laszlo.gyorgy@otpip.hu
Telefonszám: +36209384141
OTPip
Hirdetés feladója: Ingatlaniroda
Ingatlaniroda: OTPip
E-mail cím: pecs@otpip.hu
Telefonszám: +36-70-708-2428

Képek



Térkép


Ajánlott ingatlanok

Vályogház

Eladó Ház, Lippó

Keresés azonosító alapján: HI-2488426
  • Lippó
  • Alapterület: 60 m²
  • Telekterület: 4 700 m²
  • Ár: 3 900 000 Ft (10 864 €)
  • Feltöltés dátuma: 2025.10.10.
  •  
Vályogház

Eladó Ház, Újpetre

Keresés azonosító alapján: HI-2539880
  • Újpetre
  • Alapterület: 130 m²
  • Telekterület: 1 196 m²
  • Ár: 22 000 000 Ft (61 281 €)
  • Feltöltés dátuma: 2026.02.21.
  •  
Vályogház

Eladó Ház, Kacsóta

Keresés azonosító alapján: HI-2511851
  • Kacsóta
  • Alapterület: 68 m²
  • Telekterület: 4 169 m²
  • Ár: 15 900 000 Ft (44 290 €)
  • Feltöltés dátuma: 2025.12.12.
  •  
Vályogház

Eladó Ház, Hosszúhetény

Keresés azonosító alapján: HI-2564945
  • Hosszúhetény
  • Alapterület: 100 m²
  • Telekterület: 2 380 m²
  • Ár: 49 000 000 Ft (136 490 €)
  • Feltöltés dátuma: 2026.04.25.
  •  
Facebook
Blogger
Twitter
Tweets by hasznaltingatla
Flickr