Eladó Ház, Sajópüspöki

Ingatlan azonosító: HI-2508067

Borsod-Abaúj-Zemplén megye - Sajópüspöki, Kastély


12 200 000 Ft (33 889 €)

  • Hirdetés feladója: Ingatlaniroda
  • Pontos cím: Sajópüspöki
  • Típus: Eladó
  • Belső irodai azonosító: M302930-4942562
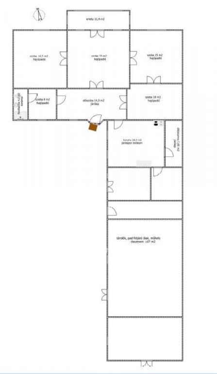
  • Alapterület: 162 m²
  • Telekterület: 3 841 m² ( 1 068 négyszögöl )
  • Építés éve: 1920
  • Egész szobák száma (12 m² felett): 4 db
  • Félszobák száma (6-12 m² között): 1 db
  • Ingatlan állapota: felújítandó
  • Komfort: komfortos
  • Fűtés: gáz (konvektor)
  • Pince: nincs
  • Akadálymentesített: nincs
  • Napelem van?: nincs
  • Légkondicionáló: nincs

Leírás

Az OTP Ingatlanpont Kizárólagos forgalmazásában! Eladó Sajópüspöki községben közel a Szlovák határhoz, 1920-as években épült kúria jellegű, teljes körűen felújítandó 162 m2-es családi ház, 3841 m2-es telken. Az épület értékes, az 1920-as évekre jellemző eklektikus stílusú épületet mutat, amelyben a neobarokk és a szecesszió kései hatásai, valamint a vidéki úrilakok (kúriák) építészeti formavilága keveredik. Jellemzője a regionális Trianon utáni építészet. Az 1920-as évek Magyarországán (különösen vidéken) megjelent egyfajta nemzeti konzervatív stílus, amely a történelmi múlt elemeit ötvözte a kor technikai lehetőségeivel. Ez az épület egy tipikus példája a korszak úri lakóházának, amely egyszerre akart modern és hagyományőrző lenni. Sajópüspöki nem az a hely, ahol neonfényes plázák vagy dübörgő fesztiválok várnak, de éppen ebben rejlik a varázsa. Ha valaki értékeli a csendet, a határ menti romantikát és a ?lassú életet?, annak ez a Borsod-Abaúj-Zemplén megyei kisfalu tartogathat meglepetéseket. Alkalmas vállalkozásra, horgászoknak, túrázóknak nyaralónak, gyerek táboroztatásra. A kedves falut hegyek, dombok, erdők tarkítják, na és persze a Sajó folyó! A terep kiválóan alkalmas gyalogtúrára, vízitúrára egyaránt, de a horgászok is gazdagodhatnak a folyó által kínált élményekkel. Amennyiben a fotók és az ingatlan paraméterei felkeltették érdeklődését kérem, forduljon hozzám bizalommal. Irodánk, teljes körű ügyintézéssel áll az eladók és a vevők rendelkezésére! Az adásvételi szerződés megkötéséhez igény szerint megbízható ügyvédi közreműködést biztosítunk, és segítséget nyújtunk az adásvételhez kapcsolódó ügyek intézéséhez és ingyenes pénzügyi tanácsadással, kedvezményes hitelekkel (Babaváró hitel, államilag támogatott hitel, Falusi CSOK, CSOK Plusz igényelhető, stb) Lakástakarék megtakarítással segítjük vásárlását. 12200000 Ft Referencia szám: M302930

E-mail küldése a hirdetőnek

Hibás hirdetés bejelentése

Sikeres elküldtük a hiba bejelentést.

Hirdető adatai

Árvai Mártonné
E-mail cím: arvai.martonne@otpip.hu
Telefonszám: +36-30-958-3002
OTPip
Hirdetés feladója: Ingatlaniroda
Ingatlaniroda: OTPip
E-mail cím: eger.torvenyhaz@otpip.hu
Telefonszám: +36304492522

Képek



Térkép


Ajánlott ingatlanok

Fejlesztési terület

Eladó Fejlesztési terület, Eger

Keresés azonosító alapján: HI-2565703
  • Eger
  • Alapterület: 10 827 m²
  • Telekterület: 10 827 m²
  • Ár: 108 000 000 Ft (300 000 €)
  • Feltöltés dátuma: 2026.04.28.
  •  
Családi ház

Eladó Ház, Tiszacsege

Keresés azonosító alapján: HI-2508066
  • Tiszacsege
  • Alapterület: 100 m²
  • Telekterület: 1 623 m²
  • Ár: 25 000 000 Ft (69 444 €)
  • Feltöltés dátuma: 2025.12.02.
  •  
Hétvégi házas

Eladó Ház, Szigetmonostor

Keresés azonosító alapján: HI-2508065
  • Szigetmonostor
  • Alapterület: 25 m²
  • Telekterület: 485 m²
  • Ár: 29 900 000 Ft (83 056 €)
  • Feltöltés dátuma: 2025.12.02.
  •  
Kastély

Eladó ház, Kecskemét

Keresés azonosító alapján: HI-2310215
  • Kecskemét
  • Alapterület: 1 047 m²
  • Telekterület: 1 624 m²
  • Ár: 350 000 000 Ft (972 222 €)
  • Feltöltés dátuma: 2024.10.05.
  •  
Facebook
Blogger
Twitter
Tweets by hasznaltingatla
Flickr