Eladó Ház, Sáránd

Ingatlan azonosító: HI-2490991

Hajdú-Bihar megye - Sáránd, Ikerház


69 900 000 Ft (180 155 €)

  • Hirdetés feladója: Ingatlaniroda
  • Pontos cím: Sáránd
  • Típus: Eladó
  • Belső irodai azonosító: M314797-5066030
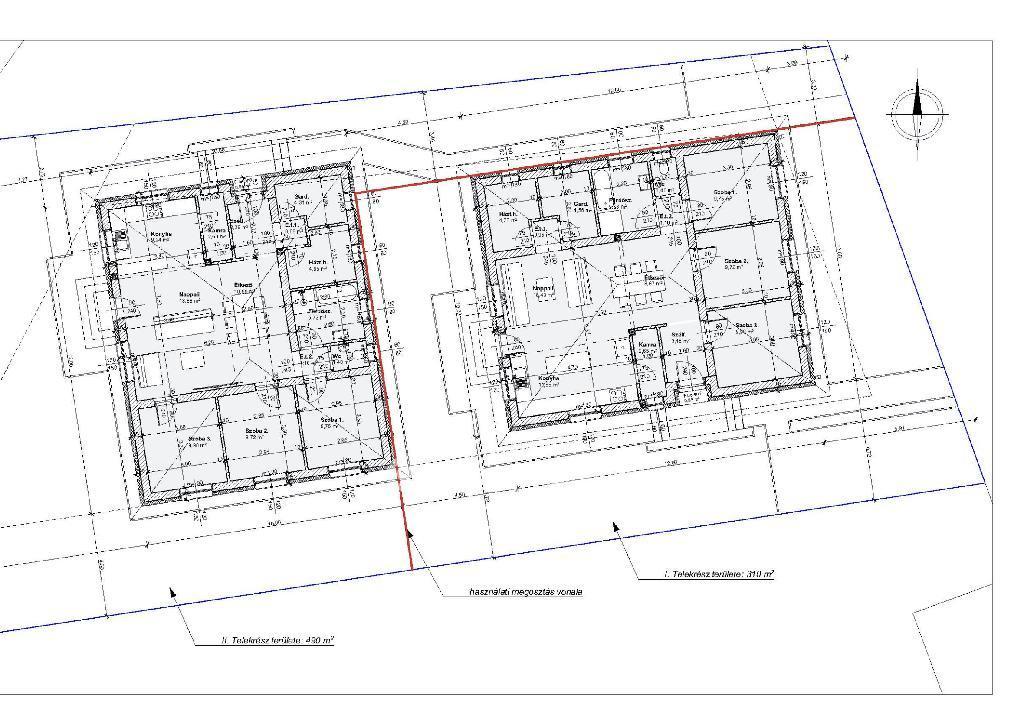
  • Alapterület: 90 m²
  • Telekterület: 450 m² ( 125 négyszögöl )
  • Építés éve: 2025
  • Egész szobák száma (12 m² felett): 3 db
  • Félszobák száma (6-12 m² között): 0 db
  • Ingatlan állapota: új építésű
  • Komfort: összkomfortos
  • Fűtés: gáz (cirko)
  • Pince: nincs
  • Akadálymentesített: nincs
  • Energiatanúsítvány: A+
  • Napelem van?: nincs
  • Légkondicionáló: nincs

Leírás

Sáránd központjában eladó egy ÚJ ÉPÍTÉSŰ 90 m2-es, Nappali + 3 szobás minőségi kivitelezésű földszintes családi ház!! Az ingatlan elhelyezkedését tekintve, a város egyik leggkedveltebb környéken, igazán családbarát, csendes utcájában helyezkedik el. Jó megközelíthetősége révén kiváló választást biztosít minden korosztály számára. Mindössze 5 perc sétára található élelmiszerbolt, buszmegálló, orvosi rendelő, új óvoda és bölcsőde. Ingatlan főbb paraméterei : - várható átadás 2026.07.01 - 550 m2- telek, térkövezett járda és terasz - Porotherm 30 NF tégla falazat - betoncserép födém - 15 cm szigetelés, 30 cm födém szigetelés - 3 rétegű műanyag nyílászárók - kondenzációs gázkazán vagy hőszivattyú, padlófűtés az egész házban - szobákban laminált parketta, többi helyiségben járólap - 3 szoba + 2 fürdőszoba wc- vel - elektromos áram 32 A - belső ajtók a vevő igényének megfelelő színben kerül beépítésre ( vételár része ) További információért hívjon bizalommal akár hétvégén is. Megtekintésre telefonos egyeztetés alapján van lehetőség. Kedvezményes kamatozású lakásvásárlási és felújítási hitelek az OTP hátterével irodánkban. Referencia szám: M314797

E-mail küldése a hirdetőnek

Hibás hirdetés bejelentése

Sikeres elküldtük a hiba bejelentést.

Hirdető adatai

Csarnainé Szutor Andrea Anna
E-mail cím: andrea.szutor@otpip.hu
Telefonszám: +36-30-208-1669
OTPip
Hirdetés feladója: Ingatlaniroda
Ingatlaniroda: OTPip
E-mail cím: debrecenkurtos@otpip.hu
Telefonszám: +36-20-528-8700

Képek



Térkép


Ajánlott ingatlanok

Tanya

Eladó Tanya, Hosszúpályi

Keresés azonosító alapján: HI-2412237
  • Hosszúpályi
  • Alapterület: 3 000 m²
  • Telekterület: 30 306 m²
  • Ár: 249 999 000 Ft (644 327 €)
  • Feltöltés dátuma: 2025.05.02.
  •  
Panel lakás

Eladó Lakás, Debrecen

Keresés azonosító alapján: HI-2475764
  • Debrecen
  • Alapterület: 84 m²
  • Ár: 74 900 000 Ft (193 041 €)
  • Feltöltés dátuma: 2025.09.18.
  •  
Vályogház

Eladó Ház, Debrecen

Keresés azonosító alapján: HI-2412232
  • Debrecen
  • Alapterület: 40 m²
  • Telekterület: 708 m²
  • Ár: 55 000 000 Ft (141 753 €)
  • Feltöltés dátuma: 2025.05.02.
  •  
Vályogház

Eladó Ház, Hosszúpályi

Keresés azonosító alapján: HI-2443096
  • Hosszúpályi
  • Alapterület: 60 m²
  • Telekterület: 1 733 m²
  • Ár: 24 950 000 Ft (64 304 €)
  • Feltöltés dátuma: 2025.07.09.
  •  
Facebook
Blogger
Twitter
Tweets by hasznaltingatla
Flickr