Eladó Ház, Sárszentmihály

Ingatlan azonosító: HI-2529886

Fejér megye - Sárszentmihály, Családi ház


165 000 000 Ft (436 508 €)

  • Hirdetés feladója: Ingatlaniroda
  • Pontos cím: Sárszentmihály
  • Típus: Eladó
  • Belső irodai azonosító: M313329-5134707
  • Alapterület: 183 m²
  • Telekterület: 2 158 m² ( 600 négyszögöl )
  • Építés éve: 2013
  • Egész szobák száma (12 m² felett): 5 db
  • Félszobák száma (6-12 m² között): 1 db
  • Ingatlan állapota: felújított
  • Komfort: összkomfortos
  • Fűtés: elektromos
  • Pince: nincs
  • Akadálymentesített: nincs
  • Napelem van?: nincs
  • Légkondicionáló: van

Leírás

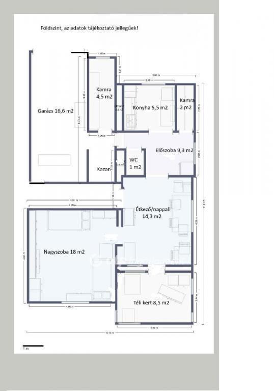
Eladóvá vált egy különleges otthon Sárszentmihályon, amely minden apró részletében a kényelmet és az energiatakarékosságot szolgálja. A ház 2013-ban épült, 178 négyzetméteres, és közel 2200 négyzetméteres telken helyezkedik el, amely még bővítési lehetőséget is kínál. A földszinten két hálószoba, két nappali (köztük egy közel 50 négyzetméteres, konyhával és étkezővel egybenyitva), gardrób, két fürdőszoba, három WC és mosókonyha található. Az emeleten további hálószobák, egy dolgozó vagy tanulószoba és egy WC áll rendelkezésre. Az otthon teljes mértékben elektromos energiával működik, így gázszámla nincs. A fűtést padlófűtés, klímák és norvég panelek adják, a kedvező rezsit pedig egy 13,5 kWp-es napelemrendszer biztosítja. A garázs 20 négyzetméteres, a kerti tároló 10 négyzetméteres. A kertben található a ház egyik legkülönlegesebb része: egy 8x4 méteres, feszített víztükrű medence, napkollektoros fűtéssel és ellenáramoltatóval. A teraszok közül az emeleti örökpanorámás, ahonnan minden évszakban gyönyörű kilátás nyílik a környékre. A telek mérete lehetőséget ad akár megosztásra vagy újabb ingatlan építésére, így befektetésnek is kiváló. Elhelyezkedése kiemelkedő: Székesfehérvár 10 perc, Budapest 45 perc, a Balaton (Siófok) 30 perc autóval. A település csendes és barátságos, minden szükséges szolgáltatás rövid távolságra található. Az OTP Ingatlanpontnál kedvezményes kamatozású hitel és díjmentes, teljes körű ügyintézés vehető igénybe, amely a finanszírozás megtervezésétől egészen az adásvétel lezárásáig végig biztonságot és szakértői támogatást nyújt. 165000000 Ft Érd.: Lepsényi Kornél +3670/8840188 Referencia szám: M313329

E-mail küldése a hirdetőnek

Hibás hirdetés bejelentése

Sikeres elküldtük a hiba bejelentést.

Hirdető adatai

Lepsényi Kornél
E-mail cím: lepsenyi.kornel@otpip.hu
Telefonszám: +36-70-884-0188
OTPip
Hirdetés feladója: Ingatlaniroda
Ingatlaniroda: OTPip
E-mail cím: velence@otpip.hu
Telefonszám: +36-70-457-6920

Képek



Térkép


Ajánlott ingatlanok

Családi ház

Eladó Ház, Ercsi

Keresés azonosító alapján: HI-2529902
  • Ercsi
  • Alapterület: 94 m²
  • Telekterület: 735 m²
  • Ár: 69 000 000 Ft (182 540 €)
  • Feltöltés dátuma: 2026.02.03.
  •  
Családi ház

Eladó Ház, Székesfehérvár

Keresés azonosító alapján: HI-2529924
  • Székesfehérvár
  • Alapterület: 180 m²
  • Telekterület: 708 m²
  • Ár: 135 000 000 Ft (357 143 €)
  • Feltöltés dátuma: 2026.02.03.
  •  
Családi ház

Eladó Ház, Nagyvenyim

Keresés azonosító alapján: HI-2529818
  • Nagyvenyim
  • Alapterület: 340 m²
  • Telekterület: 1 568 m²
  • Ár: 149 000 000 Ft (394 180 €)
  • Feltöltés dátuma: 2026.02.03.
  •  
Családi ház

Eladó Ház, Dunaújváros

Keresés azonosító alapján: HI-2529840
  • Dunaújváros
  • Alapterület: 275 m²
  • Telekterület: 300 m²
  • Ár: 119 000 000 Ft (314 815 €)
  • Feltöltés dátuma: 2026.02.03.
  •  
Facebook
Blogger
Twitter
Tweets by hasznaltingatla
Flickr