Eladó ház, Siófok

Ingatlan azonosító: HI-2499820

Somogy megye - Siófok, Családi ház


84 900 000 Ft (236 490 €)

  • Hirdetés feladója: Ingatlaniroda
  • Pontos cím: Siófok
  • Típus: Eladó
  • Belső irodai azonosító: HZ069966-5080741
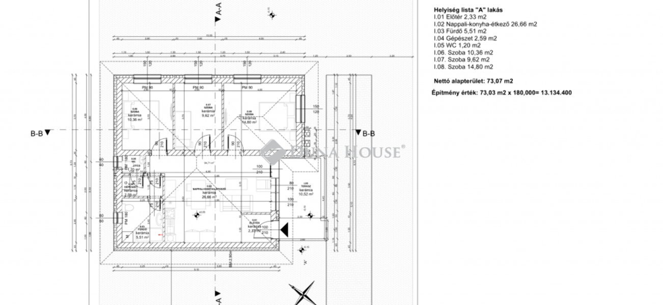
  • Alapterület: 73 m²
  • Telekterület: 428 m² ( 119 négyszögöl )
  • Építés éve: 2025
  • Egész szobák száma (12 m² felett): 4 db
  • Félszobák száma (6-12 m² között): 0 db
  • Fürdőszobák száma: 1 db
  • Ingatlan állapota: új építésű
  • Fűtés: egyéb
  • Pince: nincs
  • Akadálymentesített: nincs
  • Napelem van?: nincs
  • Légkondicionáló: nincs

Leírás

Siófokon a Rét utca közelében kínálok megvételre egy ÚJÉPíTÉSŰ, Nappali + 3 szobás, HŐSZIVATTYÚS, Önálló Családi házat 800 méterre a Balatontól Az ingatlan főbb jellemzői: - Építés éve: 2025 - Hasznos alapterület: 73 nm + 10.5 nm terasz - Telek mérete: 348 nm + 80 nm közös használatú szorgalmi út - A Telek első felében egy ikerház, mögötte pedig ez az önálló családi ház található Elrendezése: - Amerikai konyhás Nappali+ Étkező - 3 db Szoba - Előtér - Fürdőszoba - Wc - Gépház - Terasz Műszaki tartalom: - Szerkezete: Porotherm K-30 tégla - Homlokzat 15 cm-es grafit szigeteléssel, lábazat 5 cm-es szigeteléssel készül - Belső válaszfalak Porotherm 10 cm-es tégla - Födémszerkezet: Fafödém, 25 cm vastag üveggyapot szigeteléssel - Antracit színű cserépfedés - Az épülethez tartozik padlásfeljáró és tetőkibúvó - Fehér színű nyílászárók, háromrétegű üvegezéssel szerelt 5 légkamrás - Fűtése hőszivattyú, padlófűtéses hőleadással, a padlón 10 cm-es lépésálló hőszigetelés készül - Melegvíz ellátása villanybojlerrel történik - Napelemhez, riasztó-és kamerarendszerhez a szükséges vezetékezés előkészítésre kerül ( a berendezéseket a vételár nem tartalmazza) Belső burkolatok és szaniterek: - Melegburkolat 4500 Ft/nm - Hidegburkolat 5000 Ft/nm-ig válaszhatók A telek minden irányból körbekerített, a hátsó telekhatáron 2 m magas betonelemes kerítés, az oldalsó részeken drótfonatos kerítés lesz kialakítva kerti szegéllyel, az utcafronti zsalukő kerítés 1,5 m magas oszlopokkal készül. Az épület körül 50 cm szélességben szegélykő készül, a kocsibeálló és a szorgalmi utak is fehér dolomittal lesznek feltöltve. A járdák viacolor térkő burkolattal épülnek 6000 Ft/nm értékhatárig. A tereprendezés része a kivitelezésnek, termőréteg kialakításával és füvesítésre előkészített állapotban ( a fűmag vetése a Vevő feladata lesz) A falak állnak, a tetőszerkezet készítése következik, az értékesítés elkezdődött, ha nem szeretne lemaradni és szeretne Ön lenni a Tulajdonosa, keressen bizalommal a hét bármely napján! Az energetikai tanúsítvány készítése folyamatban van, amint rendelkezésre áll, úgy azzal a hirdetés frissítésre kerül. Amennyiben az ingatlan felkeltette az érdeklődését, keressen bizalommal a hét bármely napján! Jöjjön el, nézze meg, szeressen bele, legyen Ön a a következő lakója! Érd: Kulcsár Imola, tel: +36/20/240 4146, e-mail: kulcsar.imola@dh.hu Az ajánlatom megfelelne az elvárásainak, de nem rendelkezik a kiválasztott ingatlan teljes vételárával!? Hitelre történő vásárlás esetén Bankfüggetlen Credipass Pénzügyi Szakértőnk kötelezettség nélkül megtalálja az Ön számára legkedvezőbb megoldást! A tanácsadás ingyenes! Referencia szám: HZ069966

E-mail küldése a hirdetőnek

Hibás hirdetés bejelentése

Sikeres elküldtük a hiba bejelentést.

Hirdető adatai

Kulcsár Imola
E-mail cím: kulcsar.imola@dh.hu
Telefonszám: +36202404146
Duna House
Hirdetés feladója: Ingatlaniroda
Ingatlaniroda: Duna House
E-mail cím: gyomro@dh.hu
Telefonszám: +3629263520

Képek



Térkép


Ajánlott ingatlanok

Családi ház

Eladó ház, Dabas

Keresés azonosító alapján: HI-2572949
  • Dabas
  • Alapterület: 144 m²
  • Telekterület: 684 m²
  • Ár: 74 900 000 Ft (208 635 €)
  • Feltöltés dátuma: 2026.05.19.
  •  
Családi ház

Eladó ház, Pánd

Keresés azonosító alapján: HI-2572946
  • Pánd
  • Alapterület: 78 m²
  • Telekterület: 974 m²
  • Ár: 31 500 000 Ft (87 744 €)
  • Feltöltés dátuma: 2026.05.19.
  •  
Családi ház

Eladó ház, Úri

Keresés azonosító alapján: HI-2571765
  • Úri
  • Alapterület: 77 m²
  • Telekterület: 300 m²
  • Ár: 49 900 000 Ft (138 997 €)
  • Feltöltés dátuma: 2026.05.15.
  •  
Családi ház

Eladó ház, Domony

Keresés azonosító alapján: HI-2571914
  • Domony
  • Alapterület: 140 m²
  • Telekterület: 1 000 m²
  • Ár: 120 900 000 Ft (336 769 €)
  • Feltöltés dátuma: 2026.05.16.
  •  
Facebook
Blogger
Twitter
Tweets by hasznaltingatla
Flickr