Eladó Ház, Siófok

Ingatlan azonosító: HI-2503914

Somogy megye - Siófok, Családi ház


199 000 000 Ft (522 310 €)

  • Hirdetés feladója: Ingatlaniroda
  • Pontos cím: Siófok
  • Típus: Eladó
  • Belső irodai azonosító: M316304-5090601
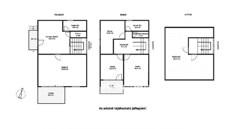
  • Alapterület: 142 m²
  • Telekterület: 583 m² ( 162 négyszögöl )
  • Építés éve: 1981
  • Egész szobák száma (12 m² felett): 6 db
  • Félszobák száma (6-12 m² között): 0 db
  • Ingatlan állapota: jó állapotú
  • Komfort: összkomfortos
  • Fűtés: gáz (cirko)
  • Pince: nincs
  • Akadálymentesített: nincs
  • Napelem van?: nincs
  • Légkondicionáló: nincs

Leírás

Siófok Ezüstpartján, a Balatontól mindössze 140 méterre felújított, kétszintes családi ház és különálló melléképület eladó egyben és külön is. Siófok közkedvelt Újhelyi városrészében, a szabad strandtól csupán 2 perc sétára kínálunk megvételre egy 117 nm-s, kétszintes családi házat, valamint egy különálló, 25 nm-s, teljes értékű melléképületet. Főépület jellemzői: Új, korszerű gázkazán biztosítja a fűtést. Földszinti, világos nappali hangulatos terasszal. Az emeleten 3 kényelmes hálószoba. A tetőtérben további beépítési lehetőség. Friss energetikai korszerűsítés. Új, hőszigetelt nyílászárók. Megújult, modern vizesblokkok, új burkolatokkal és szaniterekkel Felújított, hőszigetelt homlokzat. A földszinti beépített konyhabútor a vételár részét képezi. Melléképület: A különálló, egyszintes épület 25 nm-s lakóteret kínál, két fedett terasszal. Hőszigetelt, műanyag nyílászáróinak és kialakításának köszönhetően vendégháznak, irodának vagy kiadható apartmannak is kiváló lehetőség. Telek és parkolás: Összesen 727 nm-s, gondozott telek. (fő ház 314 nm, kis ház 269 nm, egyéb 144 nm) Parkolás a zárt udvarban vagy a ház előtti ingyenes közterületen. Kiváló elhelyezkedés, felújított állapot, többfunkciós melléképület tökéletes nyaraló, állandó otthon vagy akár befektetés! Megtekintéshez várom hívását. M316304 199000000 Ft Referencia szám: M316304

E-mail küldése a hirdetőnek

Hibás hirdetés bejelentése

Sikeres elküldtük a hiba bejelentést.

Hirdető adatai

Vincze László György
E-mail cím: vincze.laszlo.gyorgy@otpip.hu
Telefonszám: +36209384141
OTPip
Hirdetés feladója: Ingatlaniroda
Ingatlaniroda: OTPip
E-mail cím: pecs@otpip.hu
Telefonszám: +36-70-708-2428

Képek



Térkép


Ajánlott ingatlanok

Családi ház

Eladó Ház, Balatonszemes

Keresés azonosító alapján: HI-2475437
  • Balatonszemes
  • Alapterület: 215 m²
  • Telekterület: 288 m²
  • Ár: 292 861 440 Ft (768 665 €)
  • Feltöltés dátuma: 2025.09.18.
  •  
Családi ház

Eladó Ház, Harkány

Keresés azonosító alapján: HI-2390340
  • Harkány
  • Alapterület: 180 m²
  • Telekterület: 2 500 m²
  • Ár: 119 000 000 Ft (312 336 €)
  • Feltöltés dátuma: 2025.03.18.
  •  
Családi ház

Eladó Ház, Véménd

Keresés azonosító alapján: HI-2451193
  • Véménd
  • Alapterület: 150 m²
  • Telekterület: 2 992 m²
  • Ár: 81 900 000 Ft (214 961 €)
  • Feltöltés dátuma: 2025.07.30.
  •  
Családi ház

Eladó Ház, Balatonszemes

Keresés azonosító alapján: HI-2475445
  • Balatonszemes
  • Alapterület: 215 m²
  • Telekterület: 331 m²
  • Ár: 311 165 280 Ft (816 707 €)
  • Feltöltés dátuma: 2025.09.18.
  •  
Facebook
Blogger
Twitter
Tweets by hasznaltingatla
Flickr