Eladó ház, Siófok

Ingatlan azonosító: HI-2555609

Somogy megye - Siófok, Családi ház


51 000 000 Ft (133 159 €)

  • Hirdetés feladója: Ingatlaniroda
  • Pontos cím: Siófok
  • Típus: Eladó
  • Belső irodai azonosító: HZ082192-5186511
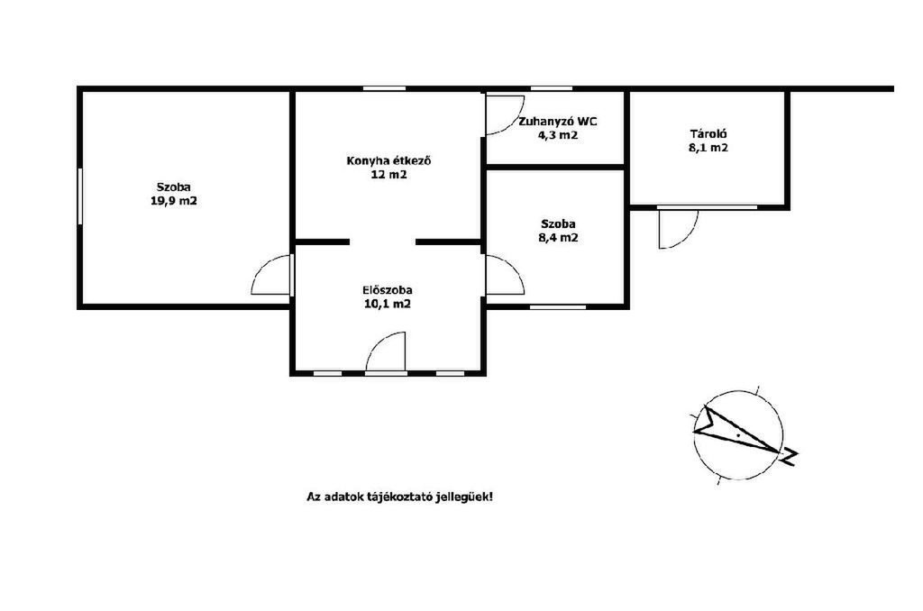
  • Alapterület: 102 m²
  • Telekterület: 1 092 m² ( 304 négyszögöl )
  • Építés éve: 1940
  • Egész szobák száma (12 m² felett): 4 db
  • Félszobák száma (6-12 m² között): 0 db
  • Fürdőszobák száma: 2 db
  • Ingatlan állapota: közepes állapotú
  • Fűtés: egyéb kazán
  • Pince: nincs
  • Akadálymentesített: nincs
  • Napelem van?: nincs
  • Légkondicionáló: nincs

Leírás

Siófok kertvárosában, Kilitin eladó egyszintes, önálló, kétgenerációs családi ház.Az ingatlan több építési ütemben épült. Az utcafronti épületrész 1940-es években, amelyet az 1990-es években bővítettek, majd a hátsó épületrész 2006-ban került kialakításra. A teherhordó szerkezet vegyes falazatú (tömésfal+tégla). Tetőszerkezete nyeregtető faszerkezettel, melyre cserépfedés került. A külső homlokzat részben szigetelt. A nyílászárók egy része korszerű műanyag, hőszigetelt üvegezésű, másik részre pedig régebbi típusú, fa tokszerkezetű ablakok került beépítésre. A családi ház alapterülete 104 nm, mindkét lakrészben külön konyha, fürdőszoba, és hálószobák kerültek kialakításra. Tökéletes választás több generációnak összeköltözésre, a két külön bejárat saját magánszférát biztosít az ott élő családok részére. A téli, hidegebb hónap alatt vegyes tüzelésű kazán, radiátoros hőleadókkal biztosítja a kellemes hőmérsékletet. 1092 nm-es telek tartozik az ingatlanhoz, mely teljes egészében körbekerített, melléképületekkel, lehetőséget kínálva állattartásra, vagy saját kis konyhakert megálmodására.Rendkívül nyugodt, csendes, hangulatos utca, kedves szomszédok.Bővebb, részletes felvilágosításért várom megtisztelő hívását a hét bármely napján. Referencia szám: HZ082192

E-mail küldése a hirdetőnek

Hibás hirdetés bejelentése

Sikeres elküldtük a hiba bejelentést.

Hirdető adatai

Onódyné Bánáti Judit
E-mail cím: banati.judit@dh.hu
Telefonszám: +36303829424
Duna House
Hirdetés feladója: Ingatlaniroda
Ingatlaniroda: Duna House
E-mail cím: siofok@dh.hu
Telefonszám: +3684506743

Képek



Térkép


Ajánlott ingatlanok

Családi ház

Eladó ház, Balatonszabadi

Keresés azonosító alapján: HI-2517508
  • Balatonszabadi
  • Alapterület: 118 m²
  • Telekterület: 915 m²
  • Ár: 65 000 000 Ft (169 713 €)
  • Feltöltés dátuma: 2026.01.06.
  •  
Családi ház

Eladó ház, Balatonföldvár

Keresés azonosító alapján: HI-2438795
  • Balatonföldvár
  • Alapterület: 310 m²
  • Telekterület: 667 m²
  • Ár: 149 000 000 Ft (389 034 €)
  • Feltöltés dátuma: 2025.07.02.
  •  
Családi ház

Eladó ház, Nagyszokoly

Keresés azonosító alapján: HI-2540185
  • Nagyszokoly
  • Alapterület: 60 m²
  • Telekterület: 4 215 m²
  • Ár: 13 000 000 Ft (33 943 €)
  • Feltöltés dátuma: 2026.02.21.
  •  
Családi ház

Eladó ház, Kőröshegy

Keresés azonosító alapján: HI-2438777
  • Kőröshegy
  • Alapterület: 140 m²
  • Telekterület: 616 m²
  • Ár: 85 000 000 Ft (221 932 €)
  • Feltöltés dátuma: 2025.07.02.
  •  
Facebook
Blogger
Twitter
Tweets by hasznaltingatla
Flickr