Eladó Ház, Szegvár

Ingatlan azonosító: HI-2559652

Csongrád megye - Szegvár, Családi ház


29 750 000 Ft (81 956 €)

  • Hirdetés feladója: Ingatlaniroda
  • Pontos cím: Szegvár
  • Típus: Eladó
  • Belső irodai azonosító: M325115-5194152
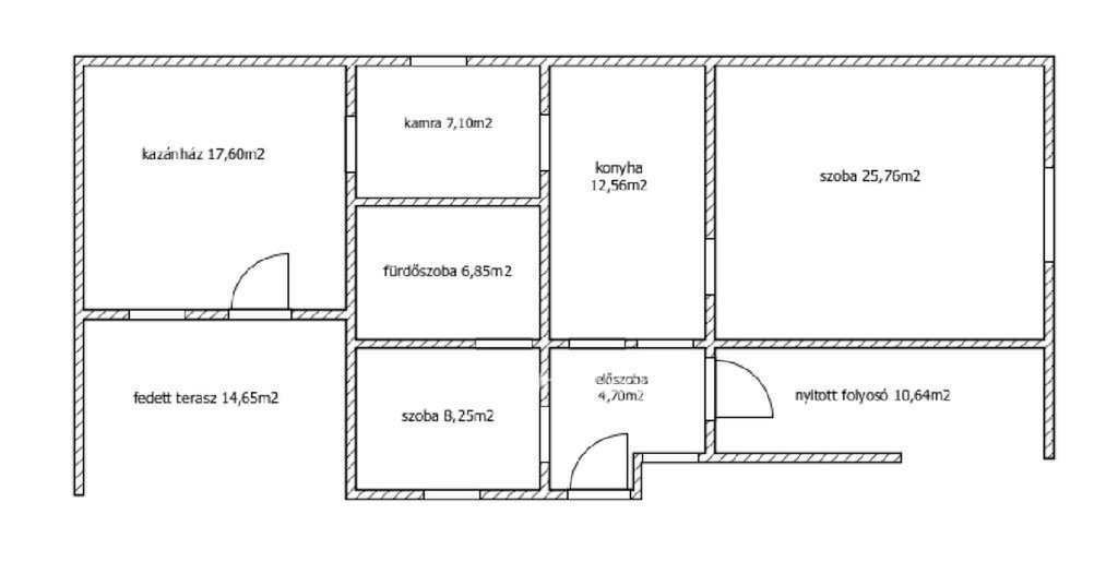
  • Alapterület: 103 m²
  • Telekterület: 1 212 m² ( 337 négyszögöl )
  • Építés éve: 1970
  • Egész szobák száma (12 m² felett): 3 db
  • Félszobák száma (6-12 m² között): 0 db
  • Ingatlan állapota: jó állapotú
  • Komfort: összkomfortos
  • Fűtés: gáz (cirko)
  • Pince: nincs
  • Akadálymentesített: nincs
  • Napelem van?: nincs
  • Légkondicionáló: nincs

Leírás

Ne maradj le! Tágas családi ház + külön lakrész Szegváron, rengeteg lehetőséggel! Csongrád-Csanád megyében, Szegváron, főút mellett eladó egy azonnal birtokba vehető, 103,3 nm-es családi ház 1212 nm-es telken, amely ritka lehetőség ekkora térrel és melléképületekkel! Az ingatlan 3 szobás, de igény szerint nappali is könnyedén kialakítható, így tökéletes választás nagyobb családnak vagy összeköltözőknek. A felújított fürdőszoba, külön WC, nagy konyha, tágas folyosó és kamra már most biztosítják a kényelmet, miközben még marad lehetőség saját ízlés szerinti alakításra. A fűtésről gáz cirkó radiátorokkal, a meleg vízről villanybojler gondoskodik. Ami igazán kiemeli a többi ingatlan közül: a telken található egy kb. 50 nm-es különálló lakrész (szoba, konyha, fürdő, külön WC), amely kis ráfordítással teljes értékű második otthonná tehető, ideális több generációnak, vendégeknek vagy akár kiadásra! A 1212 nm-es telek igazi kincs: garázs, nagy méretű nyitott és zárt akolrendszer, valamint olyan épületek, ahol korábban gombatermesztés is folyt, így gazdálkodásra vagy vállalkozásra is azonnal használható. Elhelyezkedése szintén nagy előny: főút mellett, buszmegálló, bolt, iskola és óvoda a közelben, minden adott a kényelmes mindennapokhoz. Az ilyen adottságú ingatlanok ritkán kerülnek piacra ezen az áron és méretben, ha gondolkodsz rajta, ne várj, mert gyorsan elkel! Hívj most, és nézd meg személyesen! Az ingatlan hitelezhető, CSOK-ra is alkalmas, még a 3%-os Otthon Start hitel is igénybe vehető. Az OTP Ingatlanpont kedvezményes pénzügyi konstrukciókkal áll ügyfelei rendelkezésére! VIP-szolgáltatást nyújtunk az OTP-hiteltermékek ügyintézésében. Jogi és pénzügyi segítséget nyújtanak szakértőink, hogy az adásvétel folyamata gördülékeny legyen. Amennyiben a vételár a kérdés, és úgy gondolja még nincs meg az összeg a leendő új otthonra? Lehet, hogy még is rendelkezésére áll a vételár csak még Ön nem is tudja? Tisztában van valóban az anyagi lehetőségeivel? Az áthidaló megoldásokkal? Esetleg csak az az akadály, hogy nem adta el még a saját ingatlanját? Nem gond, a tulajdonosaink, eladóink szívesen megvárják Önt, segítünk a gyors értékesítésben is. Ne maradjon le a vételről, ha már megtalálta a megfelelő új otthont! Szolgáltatásunk ingyenes, kizárólag sikeres értékesítés esetén van megbízási díj fizetési kötelezettség. A vevők is nálunk vannak és lehet az Ön ingatlanjára várnak?! Tudjon meg többet, hívjon bizalommal! Eladó ingatlanja van? Nincs vevője? Hívjon segítek az értékesítésben! Kedvező hitelajánlatokkal (Otthon Start Program, Babaváró hitel, CSOK, piaci hitel, és szabadfelhasználású hitel) várjuk jelentkezését. Számos konstrukció közül választhatnak. Irodáink Szentes, Petőfi utca 12. (a buszmegálló felől) és Csongrád, Fő utca 54. szám alatt várja a személyes érdeklődőket. ***VÁLASSZUK KI EGYÜTT AZ ÖNNEK LEGMEGFELELŐBB AJÁNLATOT! BANKI SORBAN ÁLLÁS NÉLKÜL! *** Referencia szám: M325115-HI

E-mail küldése a hirdetőnek

Hibás hirdetés bejelentése

Sikeres elküldtük a hiba bejelentést.

Hirdető adatai

Fábrik-Csendes Zsuzsanna
E-mail cím: zsuzsanna.fabrik-csendes@otpip.hu
Telefonszám: +36-30-656-4440
OTPip
Hirdetés feladója: Ingatlaniroda
Ingatlaniroda: OTPip
E-mail cím: szentes@otpip.hu
Telefonszám: +36302233606

Képek



Térkép


Ajánlott ingatlanok

Családi ház

Eladó Ház, Baks

Keresés azonosító alapján: HI-2452213
  • Baks
  • Alapterület: 54 m²
  • Telekterület: 1 127 m²
  • Ár: 16 500 000 Ft (45 455 €)
  • Feltöltés dátuma: 2025.08.02.
  •  
Családi ház

Eladó Ház, Baks

Keresés azonosító alapján: HI-2540488
  • Baks
  • Alapterület: 410 m²
  • Telekterület: 991 m²
  • Ár: 139 900 000 Ft (385 399 €)
  • Feltöltés dátuma: 2026.02.23.
  •  
Családi ház

Eladó Ház, Orosháza

Keresés azonosító alapján: HI-2552006
  • Orosháza
  • Alapterület: 65 m²
  • Telekterület: 1 518 m²
  • Ár: 32 000 000 Ft (88 154 €)
  • Feltöltés dátuma: 2026.03.19.
  •  
Családi ház

Eladó Ház, Derekegyház

Keresés azonosító alapján: HI-2494771
  • Derekegyház
  • Alapterület: 98 m²
  • Telekterület: 1 438 m²
  • Ár: 16 000 000 Ft (44 077 €)
  • Feltöltés dátuma: 2025.10.29.
  •  
Facebook
Blogger
Twitter
Tweets by hasznaltingatla
Flickr