Eladó Ház, Szentes

Ingatlan azonosító: HI-2515930

Csongrád megye - Szentes, Házrész


17 000 000 Ft (47 354 €)

  • Hirdetés feladója: Ingatlaniroda
  • Pontos cím: Szentes
  • Típus: Eladó
  • Belső irodai azonosító: M319568-5115029
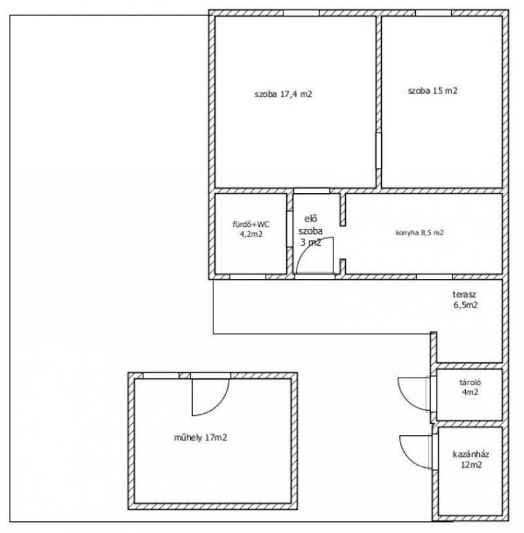
  • Alapterület: 48 m²
  • Telekterület: 280 m² ( 78 négyszögöl )
  • Építés éve: 1980
  • Egész szobák száma (12 m² felett): 2 db
  • Félszobák száma (6-12 m² között): 0 db
  • Ingatlan állapota: közepes állapotú
  • Komfort: összkomfortos
  • Fűtés: egyéb kazán
  • Pince: nincs
  • Akadálymentesített: nincs
  • Napelem van?: nincs
  • Légkondicionáló: nincs

Leírás

Csak az OTP Ingatlanpont kínálatában!! Eladó Csongrád-Csanád vármegyében, Szentesen, egy nagyon jó állapotú utcafronti házrész. Az ingatlan 48 m2-es lakótérrel és 280 m2-es telekkel, külön bejáratú, saját udvarral rendelkezik, ami ideális választás lehet mindazoknak, akik önálló életteret keresnek nyugodt környezetben. Teljes közmúvel, saját mérőórákkal rendelkezik (víz, gáz, villany). A házban két szoba, konyha, fürdőszoba és egy kis előszoba kapott helyet. A felújítási munkálatok az elmúlt évben nagyrészt megvalósultak, a korszerűsítés mintegy 90%-ban elkészült. Megújultak a nyílászárók, a villamos hálózat, a fűtésrendszer, a fürdőszoba és a burkolatok, valamint a tetőszegés is. A fűtésről vegyestüzelésű kazán gondoskodik, emellett hűtő-fűtő klíma is felszerelésre került, amely hatékonyan biztosítja a kellemes hőmérsékletet az év minden szakában. A melegvizet villanybojler szolgáltatja, kedvezményes tarifájú áramra kötve. A kis alapterületnek köszönhetően az ingatlan fenntartása rendkívül gazdaságos, alacsony rezsiköltséggel üzemeltethető. Az udvaron melléképület és műhely is található, valamint egy különálló, 17 m2-es épület, amely akár garázsként is kialakítható. Ez az ingatlan remek lehetőség első otthonnak, idősebbeknek vagy befektetési céllal is, hiszen azonnal költözhető, rendezett környezetben helyezkedik el. Az OTP Bankcsoport teljes körű ügyintézéssel áll az eladók és a vevők rendelkezésére! A kínálatunkból választott ingatlan finanszírozásához kedvezményes hitel konstrukciókat kínálunk. Az adásvételi szerződés megkötéséhez igény szerint megbízható ügyvédi közreműködést biztosítunk, és segítséget nyújtunk az adásvételhez kapcsolódó ügyek intézéséhez. Akár hétvégén is hívható vagyok! Amennyiben igényli, kérem küldjön sms-t és szívesen visszahívom! Kedvező hitelajánlatokkal (BABAVÁRÓ hitel, piaci hitel, Otthon Start Program,és szabadfelhasználású hitel) várjuk jelentkezését. Számos konstrukció közül választhatnak. Irodáink Szentes, Petőfi utca 12. A buszmegálló felől, és Csongrád, Fő utca 54. szám alatt várja a személyes érdeklődőket. Az energetikai tanúsítvány készítése folyamatban van, amint rendelkezésre áll, úgy azzal a hirdetés frissítésre kerül. „Energetikai tanúsítvány beszerzése folyamatban'' Referencia szám: M319568

E-mail küldése a hirdetőnek

Hibás hirdetés bejelentése

Sikeres elküldtük a hiba bejelentést.

Hirdető adatai

Orovecz Józsefné
E-mail cím: jozsefne.orovecz@otpip.hu
Telefonszám: +36-30-535-2397
OTPip
Hirdetés feladója: Ingatlaniroda
Ingatlaniroda: OTPip
E-mail cím: szentes@otpip.hu
Telefonszám: +36302233606

Képek



Térkép


Ajánlott ingatlanok

Házrész

Eladó Ház, Szentes

Keresés azonosító alapján: HI-2539734
  • Szentes
  • Alapterület: 111 m²
  • Telekterület: 150 m²
  • Ár: 39 900 000 Ft (111 142 €)
  • Feltöltés dátuma: 2026.02.20.
  • klímás
Házrész

Eladó Ház, Cegléd

Keresés azonosító alapján: HI-2467725
  • Cegléd
  • Alapterület: 48 m²
  • Telekterület: 804 m²
  • Ár: 23 500 000 Ft (65 460 €)
  • Feltöltés dátuma: 2025.08.31.
  •  
Házrész

Eladó Ház, Csongrád

Keresés azonosító alapján: HI-2556942
  • Csongrád
  • Alapterület: 75 m²
  • Telekterület: 610 m²
  • Ár: 7 000 000 Ft (19 499 €)
  • Feltöltés dátuma: 2026.03.31.
  •  
Házrész

Eladó Ház, Cegléd

Keresés azonosító alapján: HI-2467724
  • Cegléd
  • Alapterület: 96 m²
  • Telekterület: 804 m²
  • Ár: 34 000 000 Ft (94 708 €)
  • Feltöltés dátuma: 2025.08.31.
  •  
Facebook
Blogger
Twitter
Tweets by hasznaltingatla
Flickr