Eladó Ház, Szentes

Ingatlan azonosító: HI-2556837

Csongrád megye - Szentes, Családi ház


31 900 000 Ft (89 859 €)

  • Hirdetés feladója: Ingatlaniroda
  • Pontos cím: Szentes
  • Típus: Eladó
  • Belső irodai azonosító: M319521-5189420
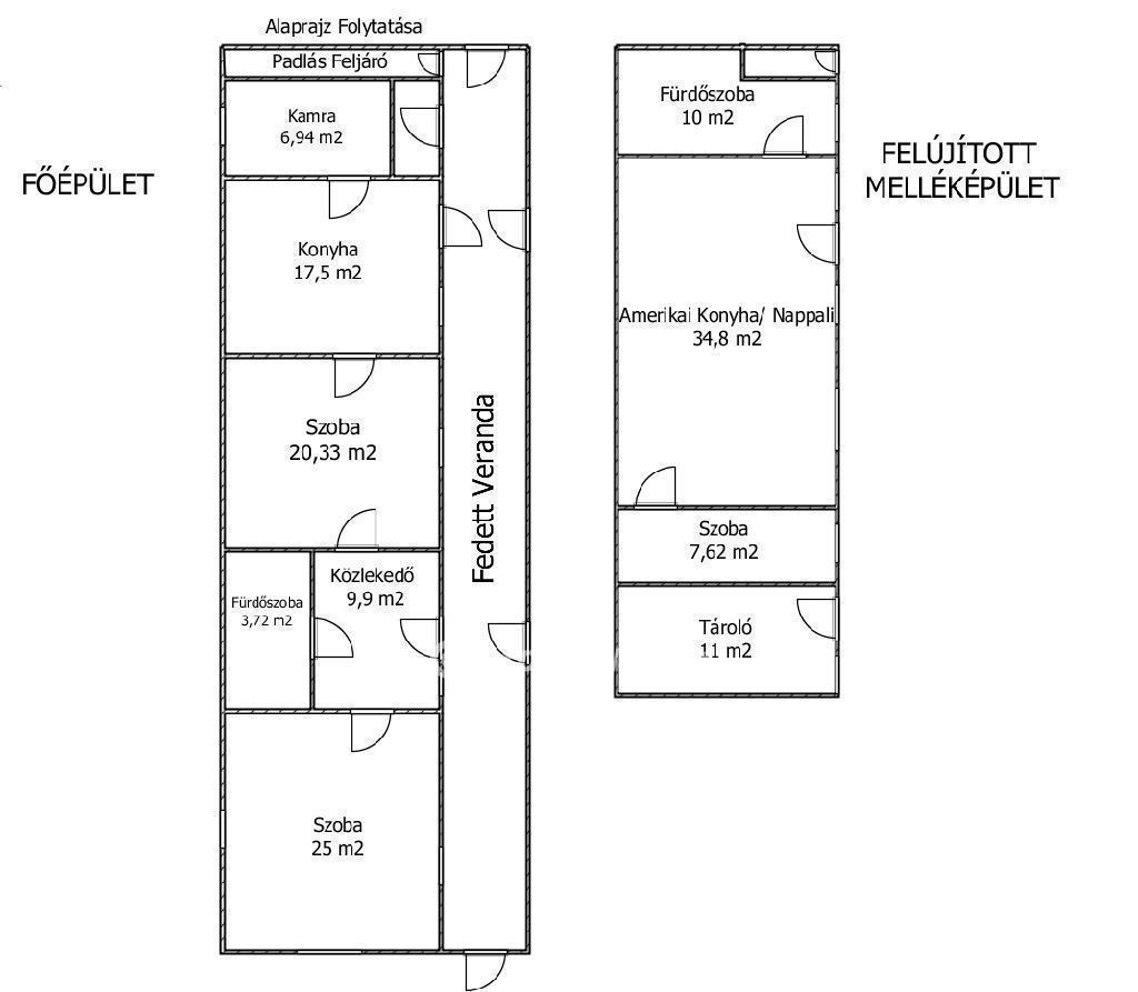
  • Alapterület: 55 m²
  • Telekterület: 363 m² ( 101 négyszögöl )
  • Építés éve: 1950
  • Egész szobák száma (12 m² felett): 2 db
  • Félszobák száma (6-12 m² között): 0 db
  • Ingatlan állapota: jó állapotú
  • Komfort: összkomfortos
  • Fűtés: gáz (cirko)
  • Pince: nincs
  • Akadálymentesített: nincs
  • Napelem van?: nincs
  • Légkondicionáló: nincs

Leírás

*** Csak az Otp Ingatlanpont kínálatában *** ELADÓ Csongrád-Csanád vármegyében Szentesen egy felújított 2 szobás családi ház!!! A 363 nm-es telken elfekvő 55 nm-es ház minden kényelmével csodás otthona lesz új tulajdonosának. Az ablakok és a biztonsági bejárati ajtó hőszigetelt műanyag, míg a belső ajtók új fa nyílászárók. A szobák padlóburkolata laminált padló, a többi helyiségben kerámia járólap. A villany- és vízvezetékek újak. A fűtést és a meleg vizet Ariston Turbó Kombi gázkazán biztosítja radiátoros hőleadással. Új a fürdőszoba és a konyha is. Maga a ház tégla alapon vályog falazatú, de a hozzáépített fürdőszoba, konyha, előszoba és WC már téglából épült. A ház ezen részén 10 cm-es nikecell szigetelés és 2-szer 10 cm-es födém szigetelés is van. A házat kívül-belül frissen festették. A tetőszerkezet kiváló állapotú, 2023-ban került új lemeztető a házra. A térkővel kirakott udvaron kapott helyet egy 25 nm-es új garázs. Van néhány állattartásra és tárolásra alkalmas melléképület is. A rendezett kertben gyümölcsfák. FONTOS! Csak készpénzes vásárlóknak ajánljuk! Amennyiben mégis hitelt szeretne a vevő, úgy csakis extra ingatlanfedezet bevonásával oldható meg! Amennyiben az OTP Ingatlanpont kínálatából választ, számíthat szakmai támogatásunkra a teljes vételi folyamat során az adásvételi szerződés megkötésétől a hitel-ügyintézésen át az ingatlan átadásáig. Ajánlom minden kedves ügyfelem részére az OTP Bank által közvetített Babaváró, CSOK PLUSZ, Otthon Start Hitelprogram vagy egyéb kölcsönök intézését. Az OTP Ingatlanpont kedvezményes pénzügyi konstrukciókkal áll ügyfelei rendelkezésére, és VIP-szolgáltatást nyújt az OTP-hiteltermékek, ügyintézésben. Kedvező hitelajánlatokkal (BABAVÁRÓ hitel, piaci hitel, és szabadfelhasználású hitel) várjuk jelentkezését. Számos konstrukció közül választhatnak. ***VÁLASSZUK KI EGYÜTT AZ ÖNNEK LEGMEGFELELŐBB AJÁNLATOT! BANKI SORBAN ÁLLÁS NÉLKÜL! *** Az energetikai tanúsítvány készítése folyamatban van, amint rendelkezésre áll, úgy azzal a hirdetés frissítésre kerül. Referencia szám: M319521

E-mail küldése a hirdetőnek

Hibás hirdetés bejelentése

Sikeres elküldtük a hiba bejelentést.

Hirdető adatai

Cseh-Szabó Szilvia
E-mail cím: szilvia.cseh-szabo@otpip.hu
Telefonszám: +36302026261
OTPip
Hirdetés feladója: Ingatlaniroda
Ingatlaniroda: OTPip
E-mail cím: szentes@otpip.hu
Telefonszám: +36302233606

Képek



Térkép


Ajánlott ingatlanok

Családi ház

Eladó Ház, Hódmezővásárhely

Keresés azonosító alapján: HI-2549421
  • Hódmezővásárhely
  • Alapterület: 200 m²
  • Telekterület: 845 m²
  • Ár: 83 000 000 Ft (233 803 €)
  • Feltöltés dátuma: 2026.03.12.
  •  
Családi ház

Eladó Ház, Csongrád

Keresés azonosító alapján: HI-2551635
  • Csongrád
  • Alapterület: 98 m²
  • Telekterület: 724 m²
  • Ár: 29 900 000 Ft (84 225 €)
  • Feltöltés dátuma: 2026.03.18.
  •  
Családi ház

Eladó Ház, Orosháza

Keresés azonosító alapján: HI-2560093
  • Orosháza
  • Alapterület: 78 m²
  • Telekterület: 734 m²
  • Ár: 19 500 000 Ft (54 930 €)
  • Feltöltés dátuma: 2026.04.11.
  •  
Családi ház

Eladó Ház, Orosháza

Keresés azonosító alapján: HI-2560098
  • Orosháza
  • Alapterület: 86 m²
  • Telekterület: 3 328 m²
  • Ár: 24 000 000 Ft (67 606 €)
  • Feltöltés dátuma: 2026.04.11.
  •  
Facebook
Blogger
Twitter
Tweets by hasznaltingatla
Flickr