Eladó Ház, Szentes

Ingatlan azonosító: HI-2482282

Csongrád megye - Szentes, Házrész


16 500 000 Ft (42 199 €)

  • Hirdetés feladója: Ingatlaniroda
  • Pontos cím: Szentes
  • Típus: Eladó
  • Belső irodai azonosító: M312261-5048581
  • Alapterület: 50 m²
  • Telekterület: 50 m² ( 14 négyszögöl )
  • Építés éve: 1940
  • Egész szobák száma (12 m² felett): 1 db
  • Félszobák száma (6-12 m² között): 0 db
  • Ingatlan állapota: jó állapotú
  • Komfort: összkomfortos
  • Fűtés: gáz (konvektor)
  • Pince: nincs
  • Akadálymentesített: nincs
  • Napelem van?: nincs
  • Légkondicionáló: nincs

Leírás

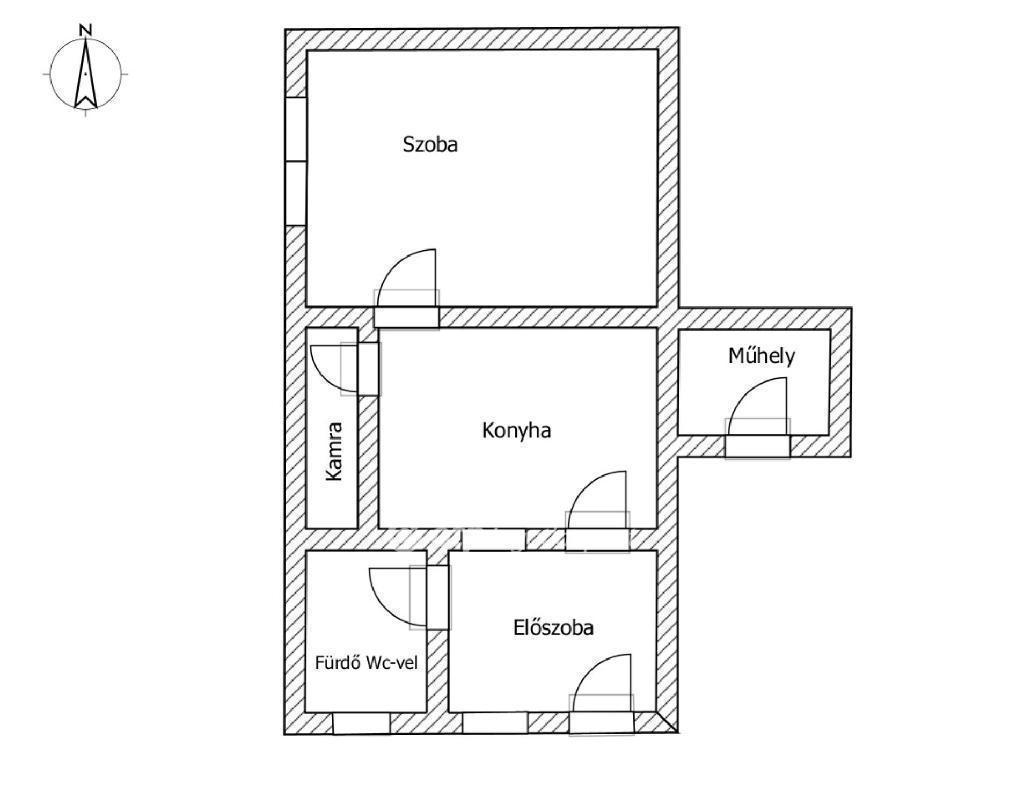
Kizárólag az OTP Ingatlanpont kínálatában! Eladó hangulatos házrész Szentesen, a központhoz közel. Eladásra kínálunk egy 50 nm-es házrészt, melyhez 50 nm-es udvar is tartozik. Az ingatlan kiváló elhelyezkedésének köszönhetően minden fontos szolgáltatás: buszmegálló, kórház, üzletek, orvosi rendelők könnyedén elérhetőek, a belváros pedig mindössze 15-20 perces sétával megközelíthető. A ház elrendezése praktikus és nagyon barátságos. A házban található szoba, konyha, kamra, előszoba és egy fürdőszoba WC-vel. Az udvaron található egy kisebb tároló és egy 6 nm-es műhely. A műhelyből akár kialakítható egy kisebb szoba is, melyet meglehetne nyitni és megközelíthető lenne a házon belül is. A házban újra húzták a villanyhálózatot is. A fűtést jelenleg 2 klíma biztosítja, de igény esetén a gázkonvektorok visszaszerelhetők. A melegvízellátás villanybojlerrel megoldott. Az ingatlan előtt kis előkert teszi még hangulatosabbá a házat. Ez az otthon ideális választás lehet egyedülállóknak, fiatal pároknak vagy akár idősebbeknek is, akik szeretnének a belvároshoz közel, mégis csendes környezetben élni. Legújabb szolgáltatásként ajánlom minden kedves ügyfelem részére az OTP Bank által közvetített Babaváró, CSOK PLUSZ, Otthon Start Hitelprogram vagy egyéb kölcsönök intézését. Az OTP Ingatlanpont kedvezményes pénzügyi konstrukciókkal áll ügyfelei rendelkezésére! VIP-szolgáltatást nyújtunk az OTP-hiteltermékek ügyintézésében. Jogi és pénzügyi segítséget nyújtanak szakértőink, hogy az adásvétel folyamata gördülékeny legyen. Amennyiben a vételár a kérdés, és úgy gondolja még nincs meg az összeg a leendő új otthonra? Lehet, hogy még is rendelkezésére áll a vételár csak még Ön nem is tudja? Tisztában van valóban az anyagi lehetőségeivel? Az áthidaló megoldásokkal? Esetleg csak az az akadály, hogy nem adta el még a saját ingatlanját? Nem gond, a tulajdonosaink, eladóink szívesen megvárják Önt, segítünk a gyors értékesítésben is. Ne maradjon le a vételről, ha már megtalálta a megfelelő új otthont! Szolgáltatásunk ingyenes, kizárólag sikeres értékesítés esetén van megbízási díj fizetési kötelezettség. A vevők is nálunk vannak és lehet az Ön ingatlanjára várnak?! Tudjon meg többet, hívjon bizalommal! Eladó ingatlanja van? Nincs vevője? Hívjon segítek az értékesítésben! Kedvező hitelajánlatokkal (BABAVÁRÓ hitel, piaci hitel, és szabadfelhasználású hitel) várjuk jelentkezését. Számos konstrukció közül választhatnak. Irodáink Szentes, Petőfi utca 12. (a buszmegálló felől) és Csongrád, Fő utca 54. szám alatt várja a személyes érdeklődőket. ***VÁLASSZUK KI EGYÜTT AZ ÖNNEK LEGMEGFELELŐBB AJÁNLATOT! BANKI SORBAN ÁLLÁS NÉLKÜL! *** Referencia szám: M312261

E-mail küldése a hirdetőnek

Hibás hirdetés bejelentése

Sikeres elküldtük a hiba bejelentést.

Hirdető adatai

Orovecz Józsefné
E-mail cím: jozsefne.orovecz@otpip.hu
Telefonszám: +36-30-535-2397
OTPip
Hirdetés feladója: Ingatlaniroda
Ingatlaniroda: OTPip
E-mail cím: szentes@otpip.hu
Telefonszám: +36-70-455-0993

Képek



Térkép


Ajánlott ingatlanok

Házrész

Eladó Ház, Hódmezővásárhely

Keresés azonosító alapján: HI-2319829
  • Hódmezővásárhely
  • Alapterület: 108 m²
  • Telekterület: 1 260 m²
  • Ár: 39 500 000 Ft (101 023 €)
  • Feltöltés dátuma: 2024.10.27.
  •  
Házrész

Eladó Ház, Csongrád

Keresés azonosító alapján: HI-2482279
  • Csongrád
  • Alapterület: 84 m²
  • Telekterület: 506 m²
  • Ár: 22 000 000 Ft (56 266 €)
  • Feltöltés dátuma: 2025.09.30.
  •  
Házrész

Eladó Ház, Cegléd

Keresés azonosító alapján: HI-2467724
  • Cegléd
  • Alapterület: 96 m²
  • Telekterület: 804 m²
  • Ár: 34 000 000 Ft (86 957 €)
  • Feltöltés dátuma: 2025.08.31.
  •  
Házrész

Eladó Ház, Cegléd

Keresés azonosító alapján: HI-2467725
  • Cegléd
  • Alapterület: 48 m²
  • Telekterület: 804 m²
  • Ár: 23 500 000 Ft (60 102 €)
  • Feltöltés dátuma: 2025.08.31.
  •  
Facebook
Blogger
Twitter
Tweets by hasznaltingatla
Flickr