Eladó Ház, Szentes

Ingatlan azonosító: HI-2560092

Csongrád megye - Szentes, Családi ház


45 000 000 Ft (125 348 €)

  • Hirdetés feladója: Ingatlaniroda
  • Pontos cím: Szentes
  • Típus: Eladó
  • Belső irodai azonosító: M325321-5197943
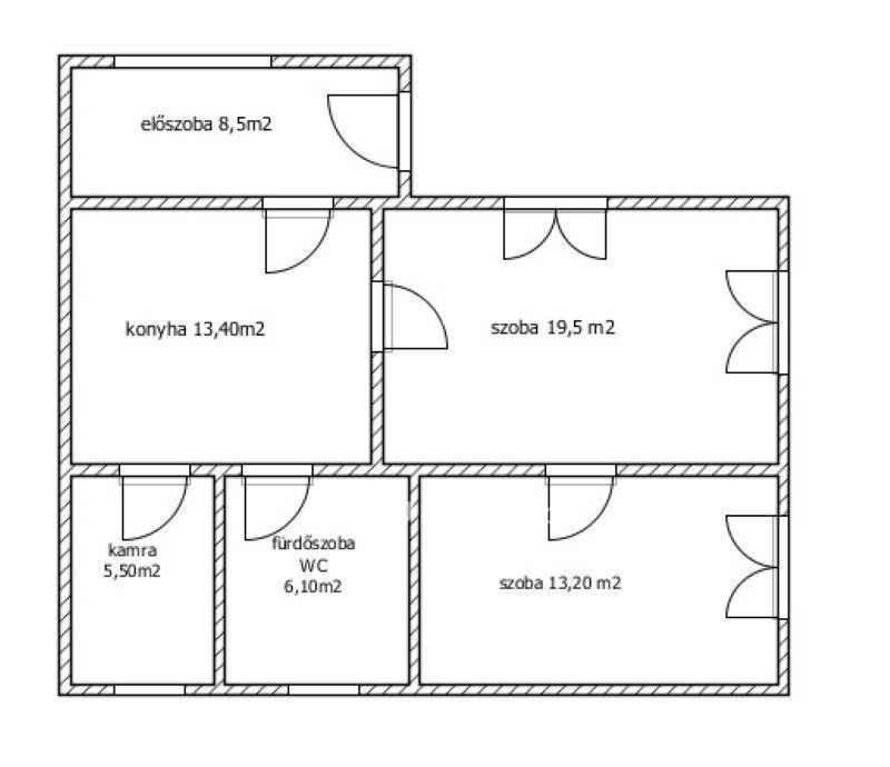
  • Alapterület: 69 m²
  • Telekterület: 540 m² ( 150 négyszögöl )
  • Építés éve: 1950
  • Egész szobák száma (12 m² felett): 3 db
  • Félszobák száma (6-12 m² között): 0 db
  • Ingatlan állapota: jó állapotú
  • Komfort: összkomfortos
  • Fűtés: gáz + napkollektor
  • Pince: nincs
  • Akadálymentesített: nincs
  • Napelem van?: nincs
  • Légkondicionáló: nincs

Leírás

Eladó ház Szentesen, a központ közelében! Frekventált, mégis csendes környéken kínálunk megvételre egy kiváló adottságokkal rendelkező ingatlant! A 540 m2-es telken elhelyezkedő, vegyes falazatú ház hivatalos alapterülete 69 m2, amely két utcáról is megközelíthető, így különösen praktikus elrendezést biztosít. Az ingatlanban 3 szoba található, valamint egy világos, nagy ablakokkal rendelkező előszoba, amely ideális helyszíne lehet meghitt családi étkezéseknek. Az ingatlanhoz tartozik egy különálló melléképület is, amely jelenleg nyári konyhaként funkcionál, azonban átalakítással akár vállalkozás céljára is kiválóan hasznosítható. Az ingatlan villanyhálózata és a fürdőszoba felújításra került, így ezek már korszerű állapotban várják az új tulajdonost. Minden közmű bevezetésre került a házba. A ház állapota lehetővé teszi az azonnali költözést, így nem igényel sürgős felújítást. A fűtésről gáz- és kazánfűtés gondoskodik. A parkolás kényelmesen megoldható az ingatlan előtt, valamint a másik bejárat felől is. A közlekedés kiváló: a buszmegálló és a pályaudvar mindössze kb. 5 perc sétára található, így akár busszal, akár vonattal egyszerűen elérhető minden fontosabb célpont. A közelben bolt is található, szintén pár perc sétára. A környék nyugodt, barátságos szomszédokkal, ezért ideális választás családok számára, ugyanakkor befektetésnek is remek lehetőség. Az ingatlan tehermentes, hitelezhető, valamint CSOK és 3%-os Otthon Start hitel is igényelhető rá, így kiváló lehetőség kedvező finanszírozással történő vásárlásra. Amennyiben az OTP Ingatlanpont kínálatából választ, számíthat szakmai támogatásunkra a teljes vételi folyamat során az adásvételi szerződés megkötésétől a hitel-ügyintézésen át az ingatlan átadásáig. Ajánlom minden kedves ügyfelem részére az OTP Bank által közvetített Babaváró, CSOK PLUSZ, Otthon Start Hitelprogram vagy egyéb kölcsönök intézését. Az OTP Ingatlanpont kedvezményes pénzügyi konstrukciókkal áll ügyfelei rendelkezésére, és VIP-szolgáltatást nyújt az OTP-hiteltermékek, ügyintézésben. Kedvező hitelajánlatokkal (BABAVÁRÓ hitel, piaci hitel, és szabadfelhasználású hitel) várjuk jelentkezését. Számos konstrukció közül választhatnak. Irodáink Szentes, Petőfi u. 12. (a buszmegálló felől) és Csongrád, Fő u. 54. szám alatt várja a személyes érdeklődőket. ***VÁLASSZUK KI EGYÜTT AZ ÖNNEK LEGMEGFELELŐBB AJÁNLATOT! BANKI SORBAN ÁLLÁS NÉLKÜL! *** Az energetikai tanúsítvány készítése folyamatban van, amint rendelkezésre áll, úgy azzal a hirdetés frissítésre kerül. Érdeklődni : Cseh-Szabó Szilvia , +36 30 202 62 61 Referencia szám: M325321-HI

E-mail küldése a hirdetőnek

Hibás hirdetés bejelentése

Sikeres elküldtük a hiba bejelentést.

Hirdető adatai

Cseh-Szabó Szilvia
E-mail cím: szilvia.cseh-szabo@otpip.hu
Telefonszám: +36302026261
OTPip
Hirdetés feladója: Ingatlaniroda
Ingatlaniroda: OTPip
E-mail cím: szentes@otpip.hu
Telefonszám: +36302233606

Képek



Térkép


Ajánlott ingatlanok

Családi ház

Eladó Ház, Orosháza

Keresés azonosító alapján: HI-2549423
  • Orosháza
  • Alapterület: 90 m²
  • Telekterület: 1 433 m²
  • Ár: 45 450 000 Ft (126 602 €)
  • Feltöltés dátuma: 2026.03.12.
  •  
Családi ház

Eladó Ház, Orosháza

Keresés azonosító alapján: HI-2555698
  • Orosháza
  • Alapterület: 93 m²
  • Telekterület: 1 089 m²
  • Ár: 22 990 000 Ft (64 039 €)
  • Feltöltés dátuma: 2026.03.27.
  •  
Családi ház

Eladó Ház, Orosháza

Keresés azonosító alapján: HI-2557657
  • Orosháza
  • Alapterület: 221 m²
  • Telekterület: 730 m²
  • Ár: 75 000 000 Ft (208 914 €)
  • Feltöltés dátuma: 2026.04.02.
  • klímás
Családi ház

Eladó Ház, Szentes

Keresés azonosító alapján: HI-2556840
  • Szentes
  • Alapterület: 123 m²
  • Telekterület: 701 m²
  • Ár: 30 900 000 Ft (86 072 €)
  • Feltöltés dátuma: 2026.03.31.
  •  
Facebook
Blogger
Twitter
Tweets by hasznaltingatla
Flickr