Eladó Ház, Szentes

Ingatlan azonosító: HI-2489044

Csongrád megye - Szentes, Családi ház


69 900 000 Ft (179 692 €)

  • Hirdetés feladója: Ingatlaniroda
  • Pontos cím: Szentes
  • Típus: Eladó
  • Belső irodai azonosító: M312571-5060220
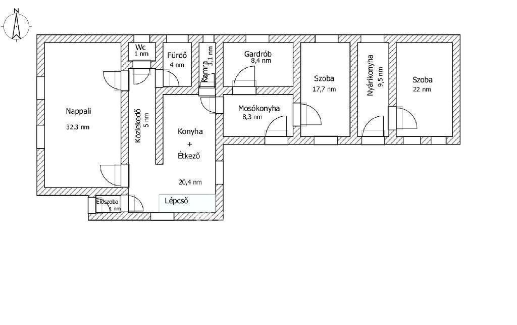
  • Alapterület: 194 m²
  • Telekterület: 551 m² ( 153 négyszögöl )
  • Építés éve: 2000
  • Egész szobák száma (12 m² felett): 5 db
  • Félszobák száma (6-12 m² között): 2 db
  • Ingatlan állapota: jó állapotú
  • Komfort: összkomfortos
  • Fűtés: gáz (cirko)
  • Pince: nincs
  • Akadálymentesített: nincs
  • Napelem van?: nincs
  • Légkondicionáló: nincs

Leírás

Kizárólag az OTP Ingatlanpont kínálatában! Eladásra kínáljuk Szentes közkedvelt részén, a Felsőpárton, mégis közel a városközponthoz egy 194 nm-es, kétszintes, igényesen kialakított családi házat, 551 nm-es telken. A főépület 2000-ben épült, jól átgondolt elrendezéssel. A földszinten előszoba, tágas-fényes nappali, konyha-étkezővel, kamra, új fürdőszoba és külön WC helyezkedik el. A melléképület számos lehetőséget rejt: mosókonyha, gardrób, egy külön szoba, nyárikonyha, valamint egy nagyobb helyiség, amely akár konditeremnek, házimozinak vagy hobbiszobának is tökéletes. Az emeleten 3 hálószoba, közlekedő, kisebb gardrób, új fürdőszoba és külön WC is van. Az udvar igazán otthonossá teszi a házat. Fedett, nagyméretű terasz a nyári családi ebédekhez. Kerti tó halakkal, ami mindig különleges hangulatot ad. Térkövezett, rendezett udvar, két garázs és tároló, fúrt kút és elektromos kapu, kamera rendszer is megtalálható. Az emeleten 3 klíma az alsó szinten 1 klíma lett felszerelve. Ez a ház ideális nagycsaládosoknak vagy akár két generációnak is, hiszen mindenkinek jut hely, mégis mindenki együtt lehet. Ha olyan otthont keresel, ahol a gyerekek szabadon játszhatnak az udvaron, ahol elfér a nagy családi asztal, és ahol minden nap öröm hazatérni akkor ez a ház pont Nektek való! Legújabb szolgáltatásként ajánlom minden kedves ügyfelem részére az OTP Bank által közvetített Babaváró, CSOK PLUSZ, Otthon Start Hitelprogram vagy egyéb kölcsönök intézését. Az OTP Ingatlanpont kedvezményes pénzügyi konstrukciókkal áll ügyfelei rendelkezésére! VIP-szolgáltatást nyújtunk az OTP-hiteltermékek ügyintézésében. Jogi és pénzügyi segítséget nyújtanak szakértőink, hogy az adásvétel folyamata gördülékeny legyen. Amennyiben a vételár a kérdés, és úgy gondolja még nincs meg az összeg a leendő új otthonra? Lehet, hogy még is rendelkezésére áll a vételár csak még Ön nem is tudja? Tisztában van valóban az anyagi lehetőségeivel? Az áthidaló megoldásokkal? Esetleg csak az az akadály, hogy nem adta el még a saját ingatlanját? Nem gond, a tulajdonosaink, eladóink szívesen megvárják Önt, segítünk a gyors értékesítésben is. Ne maradjon le a vételről, ha már megtalálta a megfelelő új otthont! Szolgáltatásunk ingyenes, kizárólag sikeres értékesítés esetén van megbízási díj fizetési kötelezettség. A vevők is nálunk vannak és lehet az Ön ingatlanjára várnak?! Tudjon meg többet, hívjon bizalommal! Eladó ingatlanja van? Nincs vevője? Hívjon segítek az értékesítésben! Kedvező hitelajánlatokkal (BABAVÁRÓ hitel, piaci hitel, és szabadfelhasználású hitel) várjuk jelentkezését. Számos konstrukció közül választhatnak. Irodáink Szentes, Petőfi utca 12. (a buszmegálló felől) és Csongrád, Fő utca 54. szám alatt várja a személyes érdeklődőket. ***VÁLASSZUK KI EGYÜTT AZ ÖNNEK LEGMEGFELELŐBB AJÁNLATOT! BANKI SORBAN ÁLLÁS NÉLKÜL! *** Referencia szám: M312571-HI

E-mail küldése a hirdetőnek

Hibás hirdetés bejelentése

Sikeres elküldtük a hiba bejelentést.

Hirdető adatai

Vincze Zoltán
E-mail cím: Vincze.Zoltan@otpip.hu
Telefonszám: +36707081452
OTPip
Hirdetés feladója: Ingatlaniroda
Ingatlaniroda: OTPip
E-mail cím: csongrad@otpip.hu
Telefonszám: +36 70 455 0993

Képek



Térkép


Ajánlott ingatlanok

Családi ház

Eladó Ház, Fábiánsebestyén

Keresés azonosító alapján: HI-2484392
  • Fábiánsebestyén
  • Alapterület: 78 m²
  • Telekterület: 921 m²
  • Ár: 27 000 000 Ft (69 409 €)
  • Feltöltés dátuma: 2025.10.02.
  •  
Családi ház

Eladó Ház, Szentes

Keresés azonosító alapján: HI-2484404
  • Szentes
  • Alapterület: 72 m²
  • Telekterület: 1 238 m²
  • Ár: 15 000 000 Ft (38 560 €)
  • Feltöltés dátuma: 2025.10.02.
  •  
Családi ház

Eladó Ház, Csongrád

Keresés azonosító alapján: HI-2462472
  • Csongrád
  • Alapterület: 170 m²
  • Telekterület: 691 m²
  • Ár: 43 000 000 Ft (110 540 €)
  • Feltöltés dátuma: 2025.08.15.
  •  
Családi ház

Eladó Ház, Szentes

Keresés azonosító alapján: HI-2462471
  • Szentes
  • Alapterület: 140 m²
  • Telekterület: 872 m²
  • Ár: 54 900 000 Ft (141 131 €)
  • Feltöltés dátuma: 2025.08.15.
  • klímás
Facebook
Blogger
Twitter
Tweets by hasznaltingatla
Flickr