Eladó Ház, Szigetszentmiklós

Ingatlan azonosító: HI-2525998

Pest megye - Szigetszentmiklós, Ikerház


96 900 000 Ft (254 331 €)

  • Hirdetés feladója: Ingatlaniroda
  • Pontos cím: Szigetszentmiklós
  • Típus: Eladó
  • Belső irodai azonosító: M320268-5124076
  • Alapterület: 95 m²
  • Telekterület: 250 m² ( 70 négyszögöl )
  • Építés éve: 2007
  • Egész szobák száma (12 m² felett): 4 db
  • Félszobák száma (6-12 m² között): 2 db
  • Ingatlan állapota: jó állapotú
  • Komfort: összkomfortos
  • Fűtés: egyéb kazán
  • Pince: nincs
  • Akadálymentesített: nincs
  • Energiatanúsítvány: B
  • Napelem van?: nincs
  • Légkondicionáló: nincs

Leírás

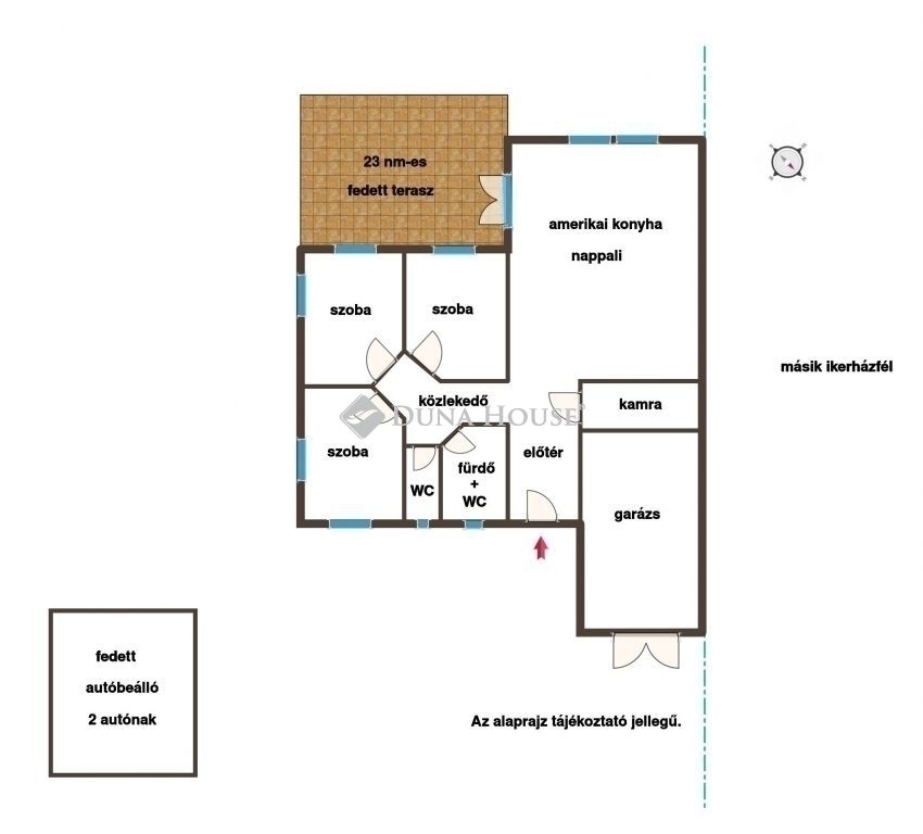
Figyelem, családok! Itt egy ház, ami tényleg tud mindent ???? Ez a 2007-ben épült, 120 m?-es, kétszintes ikerházfél nemcsak szép, hanem okos is (szó szerint). 30-as Ytongból épült, így télen meleg, nyáron hűvös ? a rezsi pedig nem fogja meglepni hónap végén. A ház fűtéséről és meleg vizéről kondenzációs kazán gondoskodik, de ha romantikus hangulat kell, ott a kandalló, ha pedig hőség van, a klíma segít. A tetején pedig egy 4,2 kW-os napelemrendszer dolgozik csendben, hogy a villanyóra se unatkozzon. ? Felújítás? Megvolt! 3 éve frissült a konyha és a nyílászárók ? itt már nem kell ?majd egyszer? felújítani. ?? Helyszín: Dunához közeli - ahol jó élni Csendes, barátságos környék, különösen kisgyermekes családok kedvence. Minden, ami kell, 5?10 percen belül: éttermek (mert főzni nem mindig van kedv) csomagátvételi pontok (rendelj bátran) 0?24-es gyógyszertár (szülők értik ??) buszmegálló óvoda, bölcsőde orvosi rendelő játszóterek és szabadtéri programok ?? A telek sem panaszkodik: 250 m?, fúrt kúttal (locsolás pipa) kerti tároló (ahol eltűnnek a ?jó lesz még valamire? dolgok) 25 m?-es garázs az autónak ? vagy a barkácsálmoknak ?? Biztonság? Természetesen! Riasztó, kamerarendszer, elektromos kapu ? ide csak az jön be, akit beengedsz. ?? Okos ház funkciók: Okos lámpakapcsolók, elektromos redőnyök ? a ház néha okosabb, mint mi. ?? Elrendezés, amit szeretni fogsz: Alsó szint: előszoba spájz (igen, igazi!) nappali?étkező fürdőszoba külön WC nagy, téliesíthető terasz ? nyárra, télre, vendégekre Emelet: 3 szoba (mindig lesz egy ?csendes sarok?) gardrób nyitott galéria ? olvasáshoz, home office-hoz vagy gyerekbirodalomnak ?? Összefoglalva: modern, energiatakarékos, családbarát otthon, ahol a rezsi alacsony, a komfort magas, a szomszédok pedig normálisak ??

E-mail küldése a hirdetőnek

Hibás hirdetés bejelentése

Sikeres elküldtük a hiba bejelentést.

Hirdető adatai

Káll László
E-mail cím: laszlo.kall@otpip.hu
Telefonszám: +36204619777
OTPip
Hirdetés feladója: Ingatlaniroda
Ingatlaniroda: OTPip
E-mail cím: dunaharaszti@otpip.hu
Telefonszám: +36308500726

Képek



Térkép


Ajánlott ingatlanok

Ikerház

Eladó Ház, Ráckeve

Keresés azonosító alapján: HI-2525979
  • Ráckeve
  • Alapterület: 117 m²
  • Telekterület: 1 160 m²
  • Ár: 89 999 000 Ft (236 218 €)
  • Feltöltés dátuma: 2026.01.25.
  •  
Ikerház

Eladó Ház, Szigetszentmiklós

Keresés azonosító alapján: HI-2525947
  • Szigetszentmiklós
  • Alapterület: 76 m²
  • Telekterület: 276 m²
  • Ár: 67 000 000 Ft (175 853 €)
  • Feltöltés dátuma: 2026.01.25.
  •  
Ikerház

Eladó Ház, Ráckeve

Keresés azonosító alapján: HI-2526163
  • Ráckeve
  • Alapterület: 140 m²
  • Telekterület: 655 m²
  • Ár: 88 000 000 Ft (230 971 €)
  • Feltöltés dátuma: 2026.01.26.
  •  
Ikerház

Eladó Ház, Ráckeve

Keresés azonosító alapján: HI-2525953
  • Ráckeve
  • Alapterület: 128 m²
  • Telekterület: 650 m²
  • Ár: 82 000 000 Ft (215 223 €)
  • Feltöltés dátuma: 2026.01.25.
  •  
Facebook
Blogger
Twitter
Tweets by hasznaltingatla
Flickr