Eladó Ház, Szigetvár

Ingatlan azonosító: HI-2489900

Baranya megye - Szigetvár, Családi ház


48 600 000 Ft (124 936 €)

  • Hirdetés feladója: Ingatlaniroda
  • Pontos cím: Szigetvár
  • Típus: Eladó
  • Belső irodai azonosító: M315069-5063173
  • Alapterület: 126 m²
  • Telekterület: 314 m² ( 87 négyszögöl )
  • Építés éve: 1980
  • Egész szobák száma (12 m² felett): 4 db
  • Félszobák száma (6-12 m² között): 0 db
  • Ingatlan állapota: jó állapotú
  • Komfort: duplakomfortos
  • Fűtés: gáz (cirko)
  • Pince: nincs
  • Akadálymentesített: nincs
  • Energiatanúsítvány: D
  • Napelem van?: nincs
  • Légkondicionáló: van

Leírás

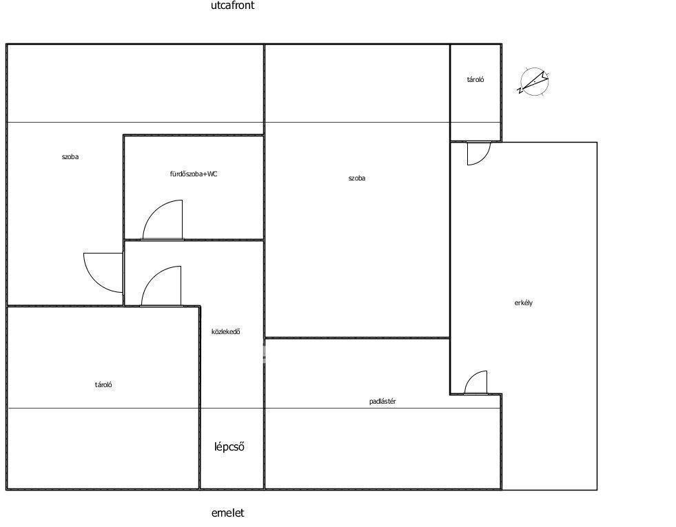
Szigetvár központjában, a Zrínyi-vártól és a Gyógyfürdőtől is sétatávolságban, egy csendes mellékutcában áll ez a gyönyörűen felújított, kétszintes családi ház. A földszinten egy nagy szoba, nappali konyha, fürdőszoba+wc és mosókonyha, a részben beépített tetőtérben két további szoba és egy újabb fürdőszoba+wc mellett egy nagyméretű fedett erkély található. A lakótér teljes alapterülete 120 négyzetméter, ebből a hasznos alapterület 108 négyzetméter. A jelenleg beépítetlen padlástéri tárolóból akár további két kisebb szoba is kialakítható. Az összes nyílászárót műanyagra cserélték, redőnnyel, és szúnyoghálóval. A tető egy éve lett felújítva, és szigetelve. A ház 10 centméteres külső szigetelést kapott. A két családi házat magába foglaló, összesen 994 négyzetméteres, osztatlan közös tulajdonú ingatlan rendelkezik ügyvéd által ellenjegyzett használati megállapodással és megosztási vázrajzzal, így az eladásra kínált lakóház megfelel a kedvezményes hitel feltételeinek. Többek között az otthon start 3%-os hitelnek is. A kizárólagos használatban álló, mintegy 200 négyzetméteres területen a lakóház mellett egy kis előkert, valamint fedett gépkocsibeálló és szerszámtároló melléképület áll, és ide tartozik még a lakóházak mögötti 114 négyzetméteres elkerített gyümölcsöskert is. A kert öntözésére fúrt kút is rendelkezésre áll. Az épület fűtése egy kombi gázkazánnal és radiátorokkal történik, alternatív lehetőségként vegyestüzelésű kazánnal és hűtő-fűtő légkondival kiegészítve. A lakás jelenlegi bútorzatának túlnyomó többsége megegyezés részét képezheti, ennek igény szerinti pontosítása későbbi megállapodás tárgya. Referenciaszám: M315069 Referencia szám: M315069

E-mail küldése a hirdetőnek

Hibás hirdetés bejelentése

Sikeres elküldtük a hiba bejelentést.

Hirdető adatai

Szabó Ágnes
E-mail cím: agnes.szabo@otpip.hu
Telefonszám: +36205097862
OTPip
Hirdetés feladója: Ingatlaniroda
Ingatlaniroda: OTPip
E-mail cím: pecs@otpip.hu
Telefonszám: +36-70-708-2428

Képek



Térkép


Ajánlott ingatlanok

Családi ház

Eladó Ház, Görcsöny

Keresés azonosító alapján: HI-2494830
  • Görcsöny
  • Alapterület: 135 m²
  • Telekterület: 8 323 m²
  • Ár: 36 900 000 Ft (94 859 €)
  • Feltöltés dátuma: 2025.10.30.
  •  
Családi ház

Eladó Ház, Szigetvár

Keresés azonosító alapján: HI-2154470
  • Szigetvár
  • Alapterület: 180 m²
  • Telekterület: 2 877 m²
  • Ár: 65 000 000 Ft (167 095 €)
  • Feltöltés dátuma: 2024.01.18.
  •  
Családi ház

Eladó Ház, Véménd

Keresés azonosító alapján: HI-2463217
  • Véménd
  • Alapterület: 150 m²
  • Telekterület: 2 992 m²
  • Ár: 81 900 000 Ft (210 540 €)
  • Feltöltés dátuma: 2025.08.18.
  •  
Családi ház

Eladó Ház, Pécs

Keresés azonosító alapján: HI-2434350
  • Pécs
  • Alapterület: 250 m²
  • Telekterület: 1 128 m²
  • Ár: 133 000 000 Ft (341 902 €)
  • Feltöltés dátuma: 2025.06.23.
  •  
Facebook
Blogger
Twitter
Tweets by hasznaltingatla
Flickr