Eladó Ház, Szikszó

Ingatlan azonosító: HI-2491550

Borsod-Abaúj-Zemplén megye - Szikszó, Családi ház


22 000 000 Ft (56 701 €)

  • Hirdetés feladója: Ingatlaniroda
  • Pontos cím: Szikszó
  • Típus: Eladó
  • Belső irodai azonosító: M312846-5066550
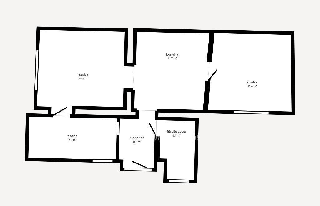
  • Alapterület: 60 m²
  • Telekterület: 200 m² ( 56 négyszögöl )
  • Építés éve: 1970
  • Egész szobák száma (12 m² felett): 2 db
  • Félszobák száma (6-12 m² között): 1 db
  • Ingatlan állapota: közepes állapotú
  • Komfort: összkomfortos
  • Fűtés: gáz (konvektor)
  • Pince: nincs
  • Akadálymentesített: nincs
  • Napelem van?: nincs
  • Légkondicionáló: nincs

Leírás

Eladó: Kiemelkedően Alacsony Rezsijű, Gondozott Családi Ház Szikszón Garázzsal! Ne keressen tovább, ha egy azonnal költözhető, pénztárcabarát és műszakilag rendben tartott otthont keres! Ez a 60 nm-es családi ház Szikszó csendes részén fekszik, egy könnyen kezelhető, 200 nm-es telken, ami minimális kerti munkát igényel, így több idő marad a pihenésre. Az otthonban az amerikai konyhás nappali mellett három különálló szoba található, így ideális választás lehet kisebb családoknak, vagy azoknak, akik dolgozószobát, esetleg vendégszobát alakítanának ki. Az ingatlan legfőbb értéke a rezsiköltség: a tulajdonos gondoskodott a teljes korszerűsítésről, amelynek köszönhetően a fenntartás valóban alacsony. A ház mindenhol hőszigetelt falakkal és szigetelt tetővel rendelkezik, a teljes épületen modern műanyag nyílászárókat építettek be, melyek tökéletesen zárnak. A fűtésről gázkonvektorok gondoskodnak, a meleg vizet pedig egy teljesen új, energiatakarékos villanybojler biztosítja. Szerkezetileg tökéletes állapotú, folyamatosan karbantartott otthonról van szó, ami azt jelenti, hogy Önnek csak be kell költöznie a nagy, költséges felújításoktól megkímélheti magát. A kényelmet tovább növeli a házhoz tartozó garázs, amely biztonságos tárolást vagy parkolást tesz lehetővé. Egy édes, praktikus otthon, ahol az első naptól élvezheti a takarékos és gondtalan életet. OTP Banki hátterünknek köszönhetően finanszírozási igényekben (pl. Otthon Start Hitelprogram, Babaváró, Falusi CSOK, CSOK Plusz, Lakáshitel, Személyi kölcsön stb.), illetve biztosítások tekintetében is díjmentesen, soron kívüli ügyintézéssel segítem ügyfeleim! Referenciaszám: M312846 Referencia szám: M312846

E-mail küldése a hirdetőnek

Hibás hirdetés bejelentése

Sikeres elküldtük a hiba bejelentést.

Hirdető adatai

Piskóti Tibor Lajos
E-mail cím: tibor.lajos.piskoti@otpip.hu
Telefonszám: +36-70-322-2946
OTPip
Hirdetés feladója: Ingatlaniroda
Ingatlaniroda: OTPip
E-mail cím: miskolc.szemere@otpip.hu
Telefonszám: +36-70-606-0062

Képek



Térkép


Ajánlott ingatlanok

Családi ház

Eladó Ház, Miskolc

Keresés azonosító alapján: HI-2478146
  • Miskolc Eper utca
  • Alapterület: 220 m²
  • Telekterület: 500 m²
  • Ár: 54 900 000 Ft (141 495 €)
  • Feltöltés dátuma: 2025.09.23.
  •  
Családi ház

Eladó Ház, Miskolc

Keresés azonosító alapján: HI-2375588
  • Miskolc Tégla utca
  • Alapterület: 250 m²
  • Telekterület: 915 m²
  • Ár: 29 999 000 Ft (77 317 €)
  • Feltöltés dátuma: 2025.02.18.
  •  
Családi ház

Eladó Ház, Szikszó

Keresés azonosító alapján: HI-2473615
  • Szikszó Apponyi Albert utca
  • Alapterület: 235 m²
  • Telekterület: 1 370 m²
  • Ár: 49 900 000 Ft (128 608 €)
  • Feltöltés dátuma: 2025.09.13.
  •  
Családi ház

Eladó Ház, Mezőcsát

Keresés azonosító alapján: HI-2467752
  • Mezőcsát Erkel Ferenc utca
  • Alapterület: 90 m²
  • Telekterület: 1 000 m²
  • Ár: 35 000 000 Ft (90 206 €)
  • Feltöltés dátuma: 2025.08.31.
  •  
Facebook
Blogger
Twitter
Tweets by hasznaltingatla
Flickr