Eladó Ház, Szirmabesenyő

Ingatlan azonosító: HI-2492982

Borsod-Abaúj-Zemplén megye - Szirmabesenyő, Családi ház


89 000 000 Ft (229 381 €)

  • Hirdetés feladója: Ingatlaniroda
  • Pontos cím: Szirmabesenyő
  • Típus: Eladó
  • Belső irodai azonosító: M314108-5067768
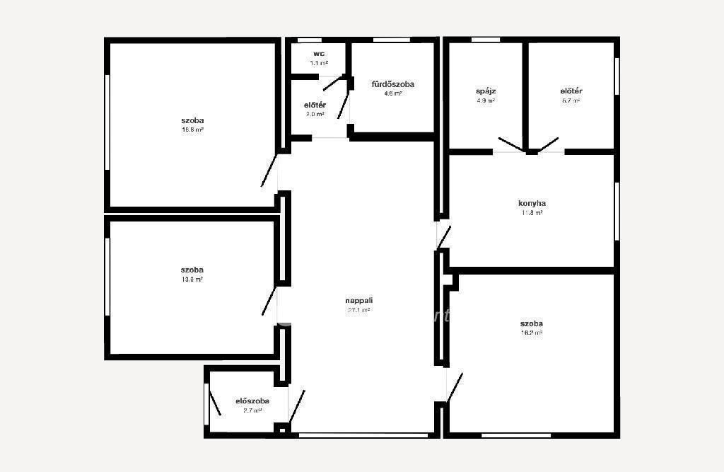
  • Alapterület: 158 m²
  • Telekterület: 703 m² ( 195 négyszögöl )
  • Építés éve: 1995
  • Egész szobák száma (12 m² felett): 3 db
  • Félszobák száma (6-12 m² között): 2 db
  • Fürdőszobák száma: 2 db
  • Ingatlan állapota: jó állapotú
  • Komfort: duplakomfortos
  • Fűtés: gáz (cirko)
  • Pince: van
  • Akadálymentesített: nincs
  • Napelem van?: nincs
  • Légkondicionáló: van

Leírás

Szirmabesenyő központjában KÉTGENERÁCIÓS, KORSZERŰSÍTETT, 2 szintes családi ház eladó 702m2 telken, 62m2 pincével, 18m2 aknás garázzsal, hátsó terasszal, füves udvarral. ENERGIATAKARÉKOS: HŐSZIGETELT nyílászárók, 15 cm SZIGETELÉS és felújított fűtés és elektromos hálózat. KÉT KÜLÖN LAKRÉSSZEL rendelkezik, két külön bejárattal és mérőórákkal. Alsó szint 98m2 alapterületén 3 szoba, tágas nappali, konyha, kamra, fürdőszoba, külön WC és előszoba található. Felső szint a tetőtérben 60m2 hasznos alapterületű, teljes értékű otthon, külön bejárattal, itt 2 szoba, nappali, étkező, konyha, fürdő+WC, terasz, előszoba van hűtő-fűtő KLÍMÁVAL, saját víz- és villanyórával felszerelve. A ház alsó szintje 1995-ben épült szilikátból és téglából, majd 2001-ben kialakításra került a felső szint is. Az egész ház 15cm külső szigetelést kapott, redőnnyel felszerelt hőszigetelt műanyag ablakokat és ajtókat építettek be. Az otthon melegét gázkazán biztosítja, 2019-ben fűtéskorszerűsítés keretében cserélték a radiátorokat is. 2020-ben víz- és villanyvezeték teljes cseréje, majd 2022-ben fürdőszoba teljes felújítása és villanybojler csere történt. Kiváló elhelyezkedés: buszmegálló, bölcsőde, óvoda, iskola, bolt, pékség, posta pár perc sétára van. Ez a gondosan karbantartott, kétgenerációs családi ház ideális választás nagycsaládosoknak, befektetőknek vagy mindazoknak, akik szeretnék, ha együtt élhetne a család két nemzedéke, mégis külön életterekkel. A felső szint saját bejárata és külön mérőórái lehetővé teszik, hogy akár kiadásra, akár külön családi lakrésznek használható legyen. Ingatlanirodánk ügyvédi háttérrel, babaváró hitel, falusi CSOK, CSOK Plusz, OTTHON START 3%-os hitel, valamint kamatkedvezményes hitel ügyintézésével támogatja ügyfelei ingatlanvásárlását! Érdeklődés esetén hivatkozzon az M314108 referencia számra! ÉRDEKLŐDNI: PUCSOK HAJNALKA 06204911723 Referencia szám: M314108

E-mail küldése a hirdetőnek

Hibás hirdetés bejelentése

Sikeres elküldtük a hiba bejelentést.

Hirdető adatai

Pucsok Hajnalka
E-mail cím: pucsok.hajnalka@otpip.hu
Telefonszám: +36-20-491-1723
OTPip
Hirdetés feladója: Ingatlaniroda
Ingatlaniroda: OTPip
E-mail cím: miskolc.szemere@otpip.hu
Telefonszám: +36-70-606-0062

Képek



Térkép


Ajánlott ingatlanok

Családi ház

Eladó Ház, Miskolc

Keresés azonosító alapján: HI-2459771
  • Miskolc
  • Alapterület: 120 m²
  • Telekterület: 407 m²
  • Ár: 64 900 000 Ft (167 268 €)
  • Feltöltés dátuma: 2025.08.09.
  •  
Családi ház

Eladó Ház, Nagybarca

Keresés azonosító alapján: HI-2462597
  • Nagybarca
  • Alapterület: 41 m²
  • Telekterület: 1 155 m²
  • Ár: 6 900 000 Ft (17 784 €)
  • Feltöltés dátuma: 2025.08.15.
  •  
Családi ház

Eladó Ház, Onga

Keresés azonosító alapján: HI-2437005
  • Onga
  • Alapterület: 120 m²
  • Telekterület: 756 m²
  • Ár: 21 900 000 Ft (56 443 €)
  • Feltöltés dátuma: 2025.07.01.
  •  
Családi ház

Eladó Ház, Onga

Keresés azonosító alapján: HI-2368151
  • Onga
  • Alapterület: 160 m²
  • Telekterület: 1 785 m²
  • Ár: 99 000 000 Ft (255 155 €)
  • Feltöltés dátuma: 2025.02.04.
  •  
Facebook
Blogger
Twitter
Tweets by hasznaltingatla
Flickr