Eladó Ház, Szomolya

Ingatlan azonosító: HI-2553881

Borsod-Abaúj-Zemplén megye - Szomolya, Családi ház


47 900 000 Ft (125 065 €)

  • Hirdetés feladója: Ingatlaniroda
  • Pontos cím: Szomolya Szent László út
  • Típus: Eladó
  • Belső irodai azonosító: M323816-5182066
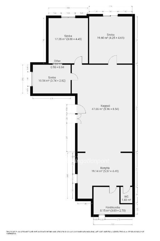
  • Alapterület: 122 m²
  • Telekterület: 1 345 m² ( 374 négyszögöl )
  • Építés éve: 1960
  • Egész szobák száma (12 m² felett): 3 db
  • Félszobák száma (6-12 m² között): 0 db
  • Ingatlan állapota: felújított
  • Komfort: összkomfortos
  • Fűtés: gáz (cirko)
  • Pince: nincs
  • Akadálymentesített: nincs
  • Napelem van?: nincs
  • Légkondicionáló: nincs

Leírás

Eladó egy kiváló állapotú, igényesen felújított, 122 m2-es családi ház, amely egy tágas, 1345 m2-es telken helyezkedik el. Az ingatlan egyik legnagyobb értéke a lenyűgöző méretű, 67 m2-es amerikai konyhás nappali, amely a családi élet központja lehet. A hatalmas tér nemcsak kényelmes életteret biztosít, hanem kiváló helyszíne baráti összejöveteleknek, családi eseményeknek is. A nappaliban elhelyezett kandalló nem kizárólag a fűtést segíti átmeneti időszakban, hanem meghitt, otthonos hangulatot is teremt. A fűtési rendszer korszerű és komfortos megoldásokat kínál: - az egyik szobában lapradiátor, - a többi helyiségben pedig padlófűtés gondoskodik az egyenletes hőérzetről. A nagy méretű telek számtalan lehetőséget rejt magában, kertészkedésre, pihenőkert kialakítására vagy akár további fejlesztésekre is alkalmas. Az udvaron található egy különálló nyári konyha kemencével, amely igazi különlegesség: tökéletes helyszín lehet családi sütögetésekhez, hagyományos kemencés ételek készítéséhez vagy akár egy hangulatos, vidéki stílusú vendégváró tér kialakításához. Az ingatlan ideális választás lehet azok számára, akik egy modern komfortot nyújtó, mégis otthonos hangulatú családi házat keresnek nagy térrel és értékes kiegészítőkkel. OTP Banki hátterünknek köszönhetően finanszírozási igényekben (pl. Otthon Start Program, Babaváró, Falusi CSOK, CSOK Plusz, Lakáshitel, Személyi kölcsön stb.), illetve biztosítások tekintetében is díjmentesen, soron kívüli ügyintézéssel segítem ügyfeleim! Referenciaszám: M323816

E-mail küldése a hirdetőnek

Hibás hirdetés bejelentése

Sikeres elküldtük a hiba bejelentést.

Hirdető adatai

Drótos Bence
E-mail cím: bence.drotos@otpip.hu
Telefonszám: +36-30-590-4195
OTPip
Hirdetés feladója: Ingatlaniroda
Ingatlaniroda: OTPip
E-mail cím: miskolc.szemere@otpip.hu
Telefonszám: +36-70-606-0062

Képek



Térkép


Ajánlott ingatlanok

Családi ház

Eladó Ház, Szerencs

Keresés azonosító alapján: HI-2513318
  • Szerencs Rákóczi út
  • Alapterület: 320 m²
  • Telekterület: 738 m²
  • Ár: 92 000 000 Ft (240 209 €)
  • Feltöltés dátuma: 2025.12.17.
  •  
Családi ház

Eladó Ház, Halmaj

Keresés azonosító alapján: HI-2499232
  • Halmaj Kinizsi Pál út
  • Alapterület: 77 m²
  • Telekterület: 950 m²
  • Ár: 35 000 000 Ft (91 384 €)
  • Feltöltés dátuma: 2025.11.06.
  •  
Családi ház

Eladó Ház, Aszaló

Keresés azonosító alapján: HI-2553889
  • Aszaló Jókai utca
  • Alapterület: 167 m²
  • Telekterület: 1 380 m²
  • Ár: 26 200 000 Ft (68 407 €)
  • Feltöltés dátuma: 2026.03.24.
  •  
Családi ház

Eladó Ház, Alsóvadász

Keresés azonosító alapján: HI-2318090
  • Alsóvadász Fő utca
  • Alapterület: 170 m²
  • Telekterület: 1 526 m²
  • Ár: 38 500 000 Ft (100 522 €)
  • Feltöltés dátuma: 2024.10.23.
  •  
Facebook
Blogger
Twitter
Tweets by hasznaltingatla
Flickr