Eladó Ház, Tab

Ingatlan azonosító: HI-2501615

Somogy megye - Tab, Családi ház


46 900 000 Ft (122 454 €)

  • Hirdetés feladója: Ingatlaniroda
  • Pontos cím: Tab
  • Típus: Eladó
  • Belső irodai azonosító: M316260-5083687
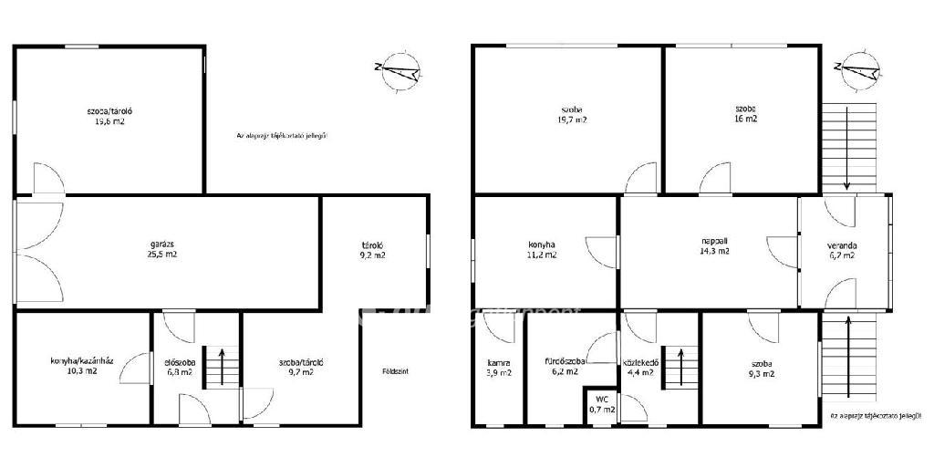
  • Alapterület: 173 m²
  • Telekterület: 752 m² ( 209 négyszögöl )
  • Építés éve: 1976
  • Egész szobák száma (12 m² felett): 4 db
  • Félszobák száma (6-12 m² között): 0 db
  • Ingatlan állapota: felújítandó
  • Komfort: összkomfortos
  • Fűtés: gáz (cirko)
  • Pince: nincs
  • Akadálymentesített: nincs
  • Napelem van?: nincs
  • Légkondicionáló: nincs

Leírás

Somogy megye, Tab, 173 m2 családi ház, 752 m2 telek eladó. Az ingatlan a település lakóövezetében helyezkedik el, csendes, nyugodt környezetben. A két szintes épület emelete nappali + 3 szobás, földszintje könnyen lakótérré alakítható, a tetőtér további lehetőségeket nyújt. Az ingatlan értékét tovább növeli a gyümölcsfákkal teli kert, illetve a vezetékes vízzel, WC-vel, ipari árammal ellátott melléképület. A ház központi fűtését cirko gázkazán és fatüzelésű kazán is biztosítja, de lehetőség van kályhával, illetve cserépkályhával való fűtésre is. A két szint kívülről és belülről is elérhető, összenyitva vagy külön-külön is használható, így akár többgenerációs családoknak is kiválóan alkalmas. Parkolni garázsban, a zárt udvaron, valamint közterületen ingyenesen lehet. A kisváros kiváló infrastruktúrával rendelkezik, iskolák, egészségház, művelődési ház, uszoda, játszóterek, sportcsarnok, munkalehetőségek teszik kedvelt, jól élhető településsé. Az ingatlan hitelképes, igény esetén egyedi partnerkedvezményt biztosítunk, illetve a település besorolása alapján falusi CSOK is igényelhető. Otthon Start Hitelprogram. Bővebb információért keressen telefonon! Referencia szám: M316260

E-mail küldése a hirdetőnek

Hibás hirdetés bejelentése

Sikeres elküldtük a hiba bejelentést.

Hirdető adatai

Zsitnyányi Ágnes
E-mail cím: agnes.zsitnyanyi@otpip.hu
Telefonszám: +36-70-316-3864
OTPip
Hirdetés feladója: Ingatlaniroda
Ingatlaniroda: OTPip
E-mail cím: siofok.sio@otpip.hu
Telefonszám: +36703163864

Képek



Térkép


Ajánlott ingatlanok

Családi ház

Eladó Ház, Siófok

Keresés azonosító alapján: HI-2401056
  • Siófok
  • Alapterület: 217 m²
  • Telekterület: 715 m²
  • Ár: 275 000 000 Ft (718 016 €)
  • Feltöltés dátuma: 2025.04.09.
  •  
Családi ház

Eladó Ház, Budaörs

Keresés azonosító alapján: HI-2465965
  • Budaörs
  • Alapterület: 286 m²
  • Telekterület: 1 158 m²
  • Ár: 300 000 000 Ft (783 290 €)
  • Feltöltés dátuma: 2025.08.26.
  •  
Családi ház

Eladó Ház, Zamárdi

Keresés azonosító alapján: HI-2372096
  • Zamárdi
  • Alapterület: 243 m²
  • Telekterület: 899 m²
  • Ár: 175 000 000 Ft (456 919 €)
  • Feltöltés dátuma: 2025.02.12.
  •  
Családi ház

Eladó Ház, Nagyberény

Keresés azonosító alapján: HI-2487221
  • Nagyberény
  • Alapterület: 116 m²
  • Telekterület: 1 723 m²
  • Ár: 55 000 000 Ft (143 603 €)
  • Feltöltés dátuma: 2025.10.08.
  •  
Facebook
Blogger
Twitter
Tweets by hasznaltingatla
Flickr