Eladó Ház, Tarcal

Ingatlan azonosító: HI-2473609

Borsod-Abaúj-Zemplén megye - Tarcal, Családi ház


13 500 000 Ft (37 500 €)

  • Hirdetés feladója: Ingatlaniroda
  • Pontos cím: Tarcal Kinizsi utca
  • Típus: Eladó
  • Belső irodai azonosító: M309716-5034284
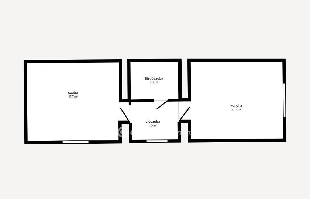
  • Alapterület: 44 m²
  • Telekterület: 581 m² ( 162 négyszögöl )
  • Építés éve: 1958
  • Egész szobák száma (12 m² felett): 1 db
  • Félszobák száma (6-12 m² között): 0 db
  • Ingatlan állapota: közepes állapotú
  • Komfort: összkomfortos
  • Fűtés: gáz (konvektor)
  • Pince: nincs
  • Akadálymentesített: nincs
  • Napelem van?: nincs
  • Légkondicionáló: nincs

Leírás

Eladó lakhatásra, valamint családi vállalkozásra is alkalmas ház Tarcal központi utcájában A 44 nm alapterületű, kőből épült házhoz melléképületek, pince, valamint egy 581 nm-es telek is tartozik. Az ingatlan statikailag jó állapotban van, tető szerkezetét tekintve a gerendákat megerősítették, a léceket pedig kicserélték. A felújítás során az épületben új műanyag nyílászárók kerültek beépítésre, valamint a fürdőszoba is teljes korszerűsítésen esett át. A melegvíz ellátásról villanybojler gondoskodik, a fűtést pedig gázkonvektorok biztosítják. A bútorokkal berendezett ingatlan mind idegenforgalmi célra, mind saját pihenésre, illetve háztáji szőlész-borász tevékenységre is alkalmas. A szőlő feldolgozáshoz valamennyi berendezés a rendelkezésre áll egy több 100 literes palackozott készlettel egyetemben, mely komoly érdeklődő esetén a vételár részét képezi. Az utcában borászatok és idegenforgalmi szálláshelyek találhatók, mint pl. a méltán híres, Andrássy Rezidencia, ahol ötcsillagos szálloda és wellness áll rendelkezésre a kikapcsolódni vágyóknak. Banki hátterünkkel pénzügyi valamint finanszírozási kérdésekben is állunk rendelkezésére. Hívása során hivatkozzon az M309716-os referenciaszámra. Az energetikai tanúsítvány készítése folyamatban van, amint rendelkezésre áll, úgy azzal a hirdetés frissítésre kerül. Referencia szám: M309716

E-mail küldése a hirdetőnek

Hibás hirdetés bejelentése

Sikeres elküldtük a hiba bejelentést.

Hirdető adatai

Piskóti Tibor Lajos
E-mail cím: tibor.lajos.piskoti@otpip.hu
Telefonszám: +36-70-322-2946
OTPip
Hirdetés feladója: Ingatlaniroda
Ingatlaniroda: OTPip
E-mail cím: miskolc.szemere@otpip.hu
Telefonszám: +36-70-606-0062

Képek



Térkép


Ajánlott ingatlanok

Családi ház

Eladó Ház, Mezőkövesd

Keresés azonosító alapján: HI-2534253
  • Mezőkövesd Honvéd utca
  • Alapterület: 200 m²
  • Telekterület: 600 m²
  • Ár: 28 000 000 Ft (77 778 €)
  • Feltöltés dátuma: 2026.02.08.
  •  
Családi ház

Eladó Ház, Szuhakálló

Keresés azonosító alapján: HI-2510601
  • Szuhakálló Izsó Miklós út
  • Alapterület: 89 m²
  • Telekterület: 1 022 m²
  • Ár: 37 500 000 Ft (104 167 €)
  • Feltöltés dátuma: 2025.12.08.
  •  
Családi ház

Eladó Ház, Tolcsva

Keresés azonosító alapján: HI-2510614
  • Tolcsva Jókai Mór utca
  • Alapterület: 98 m²
  • Telekterület: 670 m²
  • Ár: 24 900 000 Ft (69 167 €)
  • Feltöltés dátuma: 2025.12.08.
  •  
Családi ház

Eladó Ház, Mezőkövesd

Keresés azonosító alapján: HI-2554923
  • Mezőkövesd Honvéd utca
  • Alapterület: 105 m²
  • Telekterület: 792 m²
  • Ár: 26 500 000 Ft (73 611 €)
  • Feltöltés dátuma: 2026.03.26.
  •  
Facebook
Blogger
Twitter
Tweets by hasznaltingatla
Flickr