Eladó Ház, Tiszafüred

Ingatlan azonosító: HI-2501770

Jász-Nagykun-Szolnok megye - Tiszafüred, Családi ház


50 000 000 Ft (130 208 €)

  • Hirdetés feladója: Ingatlaniroda
  • Pontos cím: Tiszafüred
  • Típus: Eladó
  • Belső irodai azonosító: M306084-5085539
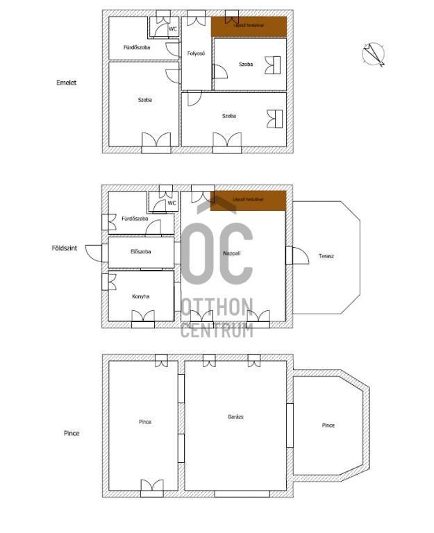
  • Alapterület: 158 m²
  • Telekterület: 437 m² ( 122 négyszögöl )
  • Építés éve: 1986
  • Egész szobák száma (12 m² felett): 3 db
  • Félszobák száma (6-12 m² között): 1 db
  • Ingatlan állapota: jó állapotú
  • Komfort: duplakomfortos
  • Fűtés: egyéb kazán
  • Pince: nincs
  • Akadálymentesített: nincs
  • Napelem van?: nincs
  • Légkondicionáló: nincs

Leírás

TISZAFÜREDEN A KÖZPONTHOZ KÖZEL, CSENDES UTCÁBAN, JÓ KÖRNYÉKEN ELADÓ EGY KÍVÜL-BELÜL JÓ ÁLLAPOTÚ, KÉTSZINTES (PLUSZ PINCE), 3+1 SZOBÁS, 158 M2 NETTÓ ALAPTERÜLETŰ, DUPLAKOMFORTOS, ÖSSZKÖZMŰVES CSALÁDI HÁZ, A TISZA-TÓI SZABADSTRANDTÓL 3 KM-RE!!! A lakóház kitűnő adottságú és elosztású, kényelmes otthon lehet bármely korosztálynak, 1986-ban épült, beton alapon, szilikát falazattal, kőporozott homlokzattal, duplaüveges fanyílászárókkal (Sofa), födém vasbetongerendás betonkefnikkel, tetőtér fölött fagerendás gyapotszigeteléssel, tetőn békéscsabai mázas cserép. A ház alatt 45,26 m2-es pince, mely garázs is (fedett lejáróval). Az ingatlan udvara rendezett, körbekerített. Bútorzat nagy része az ár részét képezi. Az épület lakóépületként, apartmanként, üdülőként egyaránt használható! A ház CSOK PLUSZ-ra is alkalmas, akár 4 gyermekre is, esetleges banki finanszírozás és CSOK Plusz előkészítését díjmentesen vállaljuk!!! Közelben: 33-as főút (420 m), városközpont (580 m), Tiszta-tó, szabad-strand (3 km). Helyiségek: pince (45,26 m2); földszint: 2 szoba, konyha, étkező, kamra, előszoba-közlekedő, fürdő, WC (külön) (77,25 m2); tetőtér: szoba, félszoba, közlekedő, fürdő, WC (külön) (35,58 m2), loggia. Telekméret: 437 m2. Fűtés: vegyes tüzelésű kazán radiátorokkal. Melegvíz: villanybojler. Közművek: víz, villany, csatorna, gázcsonk telken belül. Tiszafüreden a kerékpár-, horgászturizmus, vadászat, folyamatos beruházások (vannak tervezettek is) amelyek által a szezon már nem csak a nyárra korlátozódik!!! Tiszafüred és Poroszló között 2020-ban készült el a kerékpárút, ezáltal teljesen körbe lehet kerékpározni a Tisza-tavat. A távolsági busz és vonatközlekedés kiváló a településen (pályaudvarok), a város közúti megközelíthetősége szintén, 33-as, 34-es főút, M3-as autópálya 30 km-re (25 perc). Tiszafüred Tisza-tavi kisváros, a Tisza-tó fővárosa, idegenforgalmi és térségi központ a Hortobágy kapujában, igen széleskörű infrastrukturális ellátottsággal: bölcsőde, óvoda, általános iskolák, gimnázium, szakközépiskola, szakmunkásképző, gyógyszertárak, nagy áruházak (TESCO, LIDL, SPAR, Penny), szakorvosi ellátások, fizioterápiás szolgáltatások, benzinkutak (MOL, SHELL, OIL), hivatalok, járási hivatal, okmányiroda, rövidesen megújuló termálstrand, kiváló szabadvizi strand, kerékpáros centrum, kitűnő éttermek, szolgáltatások, közeli nagyobb városok Eger (50 km), Debrecen (67 km), Karcag (40 km), de Budapest is 150 km-re (1,5 óra), szomszédos Poroszlón Ökocentrum. Amennyiben hirdetésem felkeltette érdeklődését, keressen bizalommal bármikor (hétvégén is!!!), lehetőleg a +36 20 496 68 10 telefonszámon, ha nem tudom azonnal felvenni, visszahívom, ha a számát kijelzi. További kérdéseire is készséggel válaszolok. A tiszafüredi OTP Ingatlanpont és OTP Pénzügyi Pont teljes körű ügyintézéssel áll az eladók és a vevők rendelkezésére!!! A kínálatunkból választott ingatlan finanszírozásához kedvezményes hitelkonstrukciókat kínálunk! Az adásvételi szerződés megkötéséhez - igény szerint - megbízható ügyvédi közreműködést biztosítunk, és segítséget nyújtunk az adásvételhez kapcsolódó ügyek intézéséhez, hiteligényléshez és CSOK Pluszhoz teljes körűen (igazolások igénylése, nyomtatványok kitöltése, benyújtása, kérelem gondozása stb.). A közművek átírását is elvégezzük az eladó és a vevő helyett. Irányár: 50 millió Ft Referenciaszám: M306084 Referencia szám: M306084

E-mail küldése a hirdetőnek

Hibás hirdetés bejelentése

Sikeres elküldtük a hiba bejelentést.

Hirdető adatai

Jónás Irén
E-mail cím: iren.jonas@otpip.hu
Telefonszám: +36204966810
OTPip
Hirdetés feladója: Ingatlaniroda
Ingatlaniroda: OTPip
E-mail cím: tiszafured@otpip.hu
Telefonszám: +36-30-299-7416

Képek



Térkép


Ajánlott ingatlanok

Családi ház

Eladó Ház, Tiszaörs

Keresés azonosító alapján: HI-2496397
  • Tiszaörs
  • Alapterület: 139 m²
  • Telekterület: 1 170 m²
  • Ár: 11 000 000 Ft (28 646 €)
  • Feltöltés dátuma: 2025.10.31.
  •  
Családi ház

Eladó Ház, Nagyiván

Keresés azonosító alapján: HI-2497130
  • Nagyiván
  • Alapterület: 99 m²
  • Telekterület: 1 165 m²
  • Ár: 20 600 000 Ft (53 646 €)
  • Feltöltés dátuma: 2025.11.02.
  •  
Családi ház

Eladó Ház, Tiszafüred

Keresés azonosító alapján: HI-2501767
  • Tiszafüred
  • Alapterület: 140 m²
  • Telekterület: 530 m²
  • Ár: 62 000 000 Ft (161 458 €)
  • Feltöltés dátuma: 2025.11.14.
  • klímás
Családi ház

Eladó Ház, Tiszafüred

Keresés azonosító alapján: HI-2501771
  • Tiszafüred
  • Alapterület: 107 m²
  • Telekterület: 502 m²
  • Ár: 85 000 000 Ft (221 354 €)
  • Feltöltés dátuma: 2025.11.14.
  •  
Facebook
Blogger
Twitter
Tweets by hasznaltingatla
Flickr