Eladó Ház, Tiszaörs

Ingatlan azonosító: HI-2514027

Jász-Nagykun-Szolnok megye - Tiszaörs, Családi ház


11 000 000 Ft (28 646 €)

  • Hirdetés feladója: Ingatlaniroda
  • Pontos cím: Tiszaörs
  • Típus: Eladó
  • Belső irodai azonosító: M278594-5074465
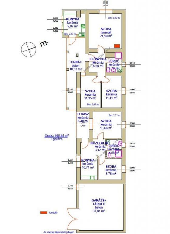
  • Alapterület: 139 m²
  • Telekterület: 1 170 m² ( 325 négyszögöl )
  • Építés éve: 1985
  • Egész szobák száma (12 m² felett): 4 db
  • Félszobák száma (6-12 m² között): 1 db
  • Ingatlan állapota: közepes állapotú
  • Komfort: komfort nélküli
  • Fűtés: egyéb
  • Pince: nincs
  • Akadálymentesített: nincs
  • Napelem van?: nincs
  • Légkondicionáló: nincs

Leírás

TISZAÖRSÖN ELADÓ 139,16 m2 nettó alapterületű, 4+1 szobás CSALÁDI HÁZ, Tiszaörs fürdőtől 3,5 km-re!!! Az épület falazata részben vályog, részben tégla, födém saralt fagerendás, tetőn bitumenes hullámlemez (a tető 1990-ben készült). A lakóház elosztása, szerkezete kifejezetten jó, külső-belső javítása, korszerűsítése szükséges. Parkolás garázsban és az udvarban. Udvaron kerti csap. A CSOK mellett a településen a Falusi CSOK is igénybe vehető, akár 3 gyermekre is, melynek teljes körű ügyintézését és az esetleges banki finanszírozás előkészítését díjmentesen vállaljuk!!! Tiszaörs kifejezetten élhető, rendezett kisközség, Jász-Nagykun-Szolnok vármegye északkeleti részén, a Tisza-tó és a Hortobágy kapujában, a Tisza-tótól 14,5 km-re. A településen az alap infrastrukturális ellátottság megoldott (4 osztályos általános Iskola, óvoda, posta, napköziotthonos idősek otthona, gyógyszertár, orvosi ellátás, élelmiszer boltok, benzinkút stb.), tömegközlekedés helyközi buszjáratokkal. A községben élénk a közösségi élet, az idősek és rászorulók házi ellátása is megoldott. Közeli nagyobb infrastruktúrával rendelkező város: Tiszafüred (11 km), Kunhegyes (24 km), Karcag (25 km), Debrecen, Eger is elérhető közelségben, M3-as autópálya 44 km-re! A községhez tartozik a kiváló gyógyvizű, családias, retró hangulatú Tiszaörs fürdő (3,5 km)!!! Fűtés: jelenleg nincs (vegyes tüzelésű kazán volt, le lett szerelve, központi fűtés kiépítve radiátorok is vannak). Melegvíz: villanybojler. Közművek: víz, villany, gáz házon belül, csatorna nincs a településen. A telek területe: 1170 m2. Közelben: faluközpont, 34-es sz. főút. Amennyiben hirdetésem felkeltette érdeklődését, keressen bizalommal bármikor (hétvégén is!), lehetőleg a +36 20 496 68 10 telefonon, ha nem tudom azonnal felvenni, visszahívom, ha a számát kijelzi. További kérdéseire is készséggel válaszolok. A tiszafüredi OTP Ingatlanpont és OTP Pénzügyi Pont teljes körű ügyintézéssel áll az eladók és a vevők rendelkezésére!!! A kínálatunkból választott ingatlan finanszírozásához kedvezményes hitelkonstrukciókat kínálunk! Az adásvételi szerződés megkötéséhez - igény szerint - megbízható ügyvédi közreműködést biztosítunk, és segítséget nyújtunk az adásvételhez kapcsolódó ügyek intézéséhez, hiteligényléshez és CSOK-hoz teljes körűen (igazolások igénylése, nyomtatványok kitöltése, benyújtása, kérelem gondozása stb.). Irányár: 11 millió Ft. Referenciaszám: M278594 Referencia szám: M278594

E-mail küldése a hirdetőnek

Hibás hirdetés bejelentése

Sikeres elküldtük a hiba bejelentést.

Hirdető adatai

Jónás Irén
E-mail cím: iren.jonas@otpip.hu
Telefonszám: +36204966810
OTPip
Hirdetés feladója: Ingatlaniroda
Ingatlaniroda: OTPip
E-mail cím: tiszafured@otpip.hu
Telefonszám: +36-30-299-7416

Képek



Térkép


Ajánlott ingatlanok

Családi ház

Eladó Ház, Tiszaörs

Keresés azonosító alapján: HI-2514031
  • Tiszaörs
  • Alapterület: 80 m²
  • Telekterület: 1 647 m²
  • Ár: 12 990 000 Ft (33 828 €)
  • Feltöltés dátuma: 2025.12.18.
  •  
Családi ház

Eladó Ház, Tiszaörs

Keresés azonosító alapján: HI-2514036
  • Tiszaörs
  • Alapterület: 80 m²
  • Telekterület: 1 912 m²
  • Ár: 17 990 000 Ft (46 849 €)
  • Feltöltés dátuma: 2025.12.18.
  •  
Családi ház

Eladó Ház, Kunmadaras

Keresés azonosító alapján: HI-2538783
  • Kunmadaras
  • Alapterület: 85 m²
  • Telekterület: 486 m²
  • Ár: 6 000 000 Ft (15 625 €)
  • Feltöltés dátuma: 2026.02.18.
  •  
Családi ház

Eladó Ház, Tiszafüred

Keresés azonosító alapján: HI-2538774
  • Tiszafüred
  • Alapterület: 165 m²
  • Telekterület: 607 m²
  • Ár: 119 000 000 Ft (309 896 €)
  • Feltöltés dátuma: 2026.02.18.
  • klímás
Facebook
Blogger
Twitter
Tweets by hasznaltingatla
Flickr