Eladó Ház, Tiszaszentimre

Ingatlan azonosító: HI-2513961

Jász-Nagykun-Szolnok megye - Tiszaszentimre, Családi ház


26 500 000 Ft (67 259 €)

  • Hirdetés feladója: Ingatlaniroda
  • Pontos cím: Tiszaszentimre
  • Típus: Eladó
  • Belső irodai azonosító: M318106-5105136
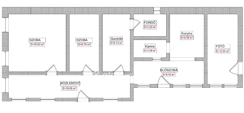
  • Alapterület: 120 m²
  • Telekterület: 1 210 m² ( 336 négyszögöl )
  • Építés éve: 1930
  • Egész szobák száma (12 m² felett): 1 db
  • Félszobák száma (6-12 m² között): 2 db
  • Fürdőszobák száma: 1 db
  • Ingatlan állapota: jó állapotú
  • Komfort: összkomfortos
  • Fűtés: gáz (cirko)
  • Pince: nincs
  • Akadálymentesített: nincs
  • Napelem van?: nincs
  • Légkondicionáló: van

Leírás

TISZASZENTIMRÉN ELADÓ egy, az 1930-as években épült, 1+2 szobás, 120 m2-es CSALÁDI HÁZ, csendes, nyugodt utcában. Az épület vegyes falazatú, a tető új lemezzel fedett. Helyiségek: előszoba, közlekedő, 1+2 szoba, fürdő, konyha, kazánház. Közművek: villany, víz, gáz, szennyvíz. Fűtés: gáz-és vegyestüzelésű kazán radiátorokkal, hűtő-fűtő klíma. Fürdőszobában villanybojler biztosítja a melegvizet. A melléképületben több kisebb helyiség, tároló lett kialakítva, amelyben WC is található. Az udvaron kényelmes parkolást biztosító kétállásos garázs is van. A telek (1210 m2) gyümölcsfákkal rendelkezik, rendezett, könnyen karbantartható, rajta fúrt kút. Az ingatlanba lépve azonnal otthonos, meghitt érzés fogadja az embert. A helyiségek harmonikus kialakításúak, barátságos hangulatúak. A beépített konyhabútor nemrégiben lett kialakítva, korszerű, esztétikus és jól használható. Az épület családi házként, apartmanként, üdülőként is használható, saját, vagy befektetési célra egyaránt, ideális hely a csendre, pihenésre és kikapcsolódásra vágyóknak, kényelmes otthon lehet bármely korosztálynak, Falusi CSOK-ra is alkalmas. Tiszaszentimrén a Falusi CSOK is igénybe vehető, melynek teljes körű ügyintézését és az esetleges banki finanszírozás előkészítését díjmentesen vállaljuk!!! Tiszaszentimre Jász-Nagykun-Szolnok vármegyében található, nyugodt, élhető település, jó alap infrastruktúrával. Megyeszékhely: Szolnok kb. 54 km. Járási központ: Tiszafüred kb. 16 km, Debrecen: kb. 68 km. A település vasúton és autóbusszal is jól megközelíthető. A községben óvoda, általános iskola, orvosi rendelő, posta, boltok, gyógyszertár működik. Tiszafüred és a Tisza-tó közelsége miatt kiváló horgászati, pihenési és turisztikai lehetőség. Családoknak, idősebb házaspároknak, befektetőknek, falusi CSOK-ra alkalmas ingatlan. Amennyiben hirdetésem felkeltette érdeklődését, keressen bizalommal bármikor (hétvégén is!!!), lehetőleg a +36 30 299 7416 telefonon, ha nem tudom azonnal felvenni, visszahívom, ha a számát kijelzi. További kérdéseire is készséggel válaszolok. A tiszafüredi OTP Ingatlanpont és OTP Pénzügyi Pont teljes körű ügyintézéssel áll az eladók és a vevők rendelkezésére!!! A kínálatunkból választott ingatlan finanszírozásához kedvezményes hitelkonstrukciókat kínálunk! Az adásvételi szerződés megkötéséhez - igény szerint - megbízható ügyvédi közreműködést biztosítunk, és segítséget nyújtunk az adásvételhez kapcsolódó ügyek intézéséhez, hiteligényléshez és CSOK-hoz teljes körűen (igazolások igénylése, nyomtatványok kitöltése, benyújtása, kérelem gondozása stb.). Irányár: 26,5 millió Ft Referenciaszám: M318106

E-mail küldése a hirdetőnek

Hibás hirdetés bejelentése

Sikeres elküldtük a hiba bejelentést.

Hirdető adatai

Kiss György
E-mail cím: kiss.gyorgy.csaba@otpip.hu
Telefonszám: +36-30-299-7416
OTPip
Hirdetés feladója: Ingatlaniroda
Ingatlaniroda: OTPip
E-mail cím: tiszafured@otpip.hu
Telefonszám: +36-30-299-7416

Képek



Térkép


Ajánlott ingatlanok

Családi ház

Eladó 3 szintes kétgenerációs családi ház Tiszafüred

Keresés azonosító alapján: HI-2513909
  • Tiszafüred
  • Alapterület: 158 m²
  • Telekterület: 437 m²
  • Ár: 50 000 000 Ft (126 904 €)
  • Feltöltés dátuma: 2025.12.18.
  •  
Családi ház

Eladó családi ház és apartman Poroszlón

Keresés azonosító alapján: HI-2513979
  • Poroszló
  • Alapterület: 205 m²
  • Telekterület: 741 m²
  • Ár: 119 000 000 Ft (302 030 €)
  • Feltöltés dátuma: 2025.12.18.
  • klímás
Családi ház

Eladó Ház, Tiszafüred

Keresés azonosító alapján: HI-2538710
  • Tiszafüred
  • Alapterület: 165 m²
  • Telekterület: 607 m²
  • Ár: 119 000 000 Ft (302 030 €)
  • Feltöltés dátuma: 2026.02.18.
  • klímás
Családi ház

Eladó Ház, Tiszafüred

Keresés azonosító alapján: HI-2513925
  • Tiszafüred
  • Alapterület: 140 m²
  • Telekterület: 530 m²
  • Ár: 62 000 000 Ft (157 360 €)
  • Feltöltés dátuma: 2025.12.18.
  • klímás
Facebook
Blogger
Twitter
Tweets by hasznaltingatla
Flickr