Eladó Ház, Tömörkény

Ingatlan azonosító: HI-2515269

Csongrád megye - Tömörkény, Családi ház


8 000 000 Ft (20 725 €)

  • Hirdetés feladója: Ingatlaniroda
  • Pontos cím: Tömörkény
  • Típus: Eladó
  • Belső irodai azonosító: M318978-5113934
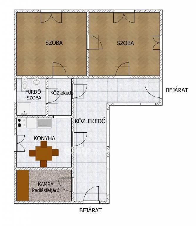
  • Alapterület: 80 m²
  • Telekterület: 1 110 m² ( 309 négyszögöl )
  • Építés éve: 1950
  • Egész szobák száma (12 m² felett): 2 db
  • Félszobák száma (6-12 m² között): 0 db
  • Ingatlan állapota: felújítandó
  • Komfort: összkomfortos
  • Fűtés: egyéb
  • Pince: nincs
  • Akadálymentesített: nincs
  • Napelem van?: nincs
  • Légkondicionáló: nincs

Leírás

Csongrád-Csanád vármegyében, Tömörkény szívében kínálok családi házat eladásra. A házban két tágas, világos szoba, fürdőszoba, konyha és egy nagy előtér található, mely sokféle módon hasznosítható. A ház beton alapon vegyes falazatú, tetőszerkezete jó. A szobákban parketta van, a többi helyiség járólappal burkolt. Nemrég még lakott ingatlan, igény szerint felújítandó. A komfortos meleget központi fűtés biztosítja, ami gázkazánnal és vegyes tüzelésű kazánnal is megoldható. Fél éve telepített korszerű klíma is hozzájárul az otthon kellemes hőmérsékletéhez. Az ingatlanhoz praktikus melléképület tartozik, benne 12 m2-es garázs, kazánház, plusz tároló, így minden fontos kerti eszköz is kényelmesen elhelyezhető. Az épületek folytatásában állattartásra alkalmas ólak, góré, fásszín stb. kapott helyet. A tágas, 1100 m2-es telken gyümölcsfák - barack, cseresznye, meggy, birsalma, dió - teremnek. A kert öntözéséhez fúrtkút is rendelkezésére áll, méretéből adódóan konyhakert kialakítására is van lehetőség. Ideális választás bárkinek, aki nyugodt, barátságos környezetben szeretne élni, mégis a központ közelében. Ne hagyja ki ezt a remek lehetőséget! Jöjjön el, nézze meg személyesen! Az OTP Ingatlanpont banki háttérrel, eladóink és vevőink igényeit teljes körűen ki tudja szolgálni, az eladástól a vevői finanszírozásig. Hitel igénylés esetén akár egyedi kamatkedvezménnyel, jogosultság esetén az állami támogatásokhoz kapcsolódó felvilágosítással, teljes körű pénzügyi tanácsadással és ügyintézéssel állunk ügyfeleink rendelkezésére. Kedvező hitelajánlatok, mint pl. BABAVÁRÓ hitel, piaci hitel, és szabad felhasználású hitelek, Otthon Start támogatott hitel, CSOK plusz, falusi csok. A pénzügyi tanácsadás és ügyintézői szolgáltatásunk díjmentes. VÁLASSZUK KI EGYÜTT AZ ÖNNEK LEGMEGFELELŐBB AJÁNLATOT! BANKI SORBAN ÁLLÁS NÉLKÜL!. Referencia szám: M318978-HI

E-mail küldése a hirdetőnek

Hibás hirdetés bejelentése

Sikeres elküldtük a hiba bejelentést.

Hirdető adatai

Berényiné Annus Krisztina
E-mail cím: krisztina.berenyine.annus@otpip.hu
Telefonszám: +36304871084
OTPip
Hirdetés feladója: Ingatlaniroda
Ingatlaniroda: OTPip
E-mail cím: csongrad@otpip.hu
Telefonszám: +36 70 455 0993

Képek



Térkép


Ajánlott ingatlanok

Családi ház

Eladó Ház, Csongrád

Keresés azonosító alapján: HI-2491323
  • Csongrád
  • Alapterület: 86 m²
  • Telekterület: 559 m²
  • Ár: 12 000 000 Ft (31 088 €)
  • Feltöltés dátuma: 2025.10.21.
  •  
Családi ház

Eladó Ház, Szentes

Keresés azonosító alapján: HI-2481517
  • Szentes
  • Alapterület: 211 m²
  • Telekterület: 40 m²
  • Ár: 90 000 000 Ft (233 161 €)
  • Feltöltés dátuma: 2025.09.28.
  •  
Családi ház

Eladó Ház, Tömörkény

Keresés azonosító alapján: HI-2481015
  • Tömörkény
  • Alapterület: 80 m²
  • Telekterület: 1 055 m²
  • Ár: 8 900 000 Ft (23 057 €)
  • Feltöltés dátuma: 2025.09.26.
  •  
Családi ház

Eladó Ház, Felgyő

Keresés azonosító alapján: HI-2515272
  • Felgyő
  • Alapterület: 115 m²
  • Telekterület: 1 019 m²
  • Ár: 43 900 000 Ft (113 731 €)
  • Feltöltés dátuma: 2025.12.30.
  • klímás
Facebook
Blogger
Twitter
Tweets by hasznaltingatla
Flickr