Eladó Ház, Törtel

Ingatlan azonosító: HI-2531687

Pest megye - Törtel, Családi ház


32 900 000 Ft (87 268 €)

  • Hirdetés feladója: Ingatlaniroda
  • Pontos cím: Törtel
  • Típus: Eladó
  • Belső irodai azonosító: M320650-5139107
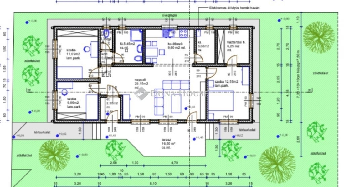
  • Alapterület: 68 m²
  • Telekterület: 573 m² ( 159 négyszögöl )
  • Építés éve: 1983
  • Egész szobák száma (12 m² felett): 3 db
  • Félszobák száma (6-12 m² között): 0 db
  • Ingatlan állapota: jó állapotú
  • Komfort: összkomfortos
  • Fűtés: gáz (cirko)
  • Pince: nincs
  • Akadálymentesített: nincs
  • Napelem van?: nincs
  • Légkondicionáló: nincs

Leírás

Pest vármegye, Törtelen 68 m2 hasznos nettó alapterületű családi ház 35 m2 melléképülettel 573 m2 nagyságú telken eladó. Az 1984-ben épített ingatlan beton alapon tégla falazattal (Ytong, szilikát blokk és tégla) készült. A padlás járható, külső- és belső feljárás biztosított, a tető egy része igény szerint beépíthető. Héjazata égetett cserepezést kapott, körben csatornával ellátott. A külső nyílászárók hőszigetelt műanyagok, a belső ajtók cserélt normál szerkezetűek, a bejárati ajtók műanyagra cseréltek. A homlokzat jó állapotú vakolt, hőszigetelésre, kőporozásra vár. Az összkomfortos egy szintes házban három szoba, egy konyha-étkező, egy fürdőszoba, egy WC-helyiség, egy mosókonyha, egy előszoba, egy közlekedő és egy terasz kapott helyet. A lakás helyiségei parketta-, padlószőnyeg- és járólap burkolatot kaptak. Az összközműves ingatlanban a cserélt belső hálózatú Fi-relével és kismegszakítóval körökre rendezett egy fázisú villany (32 Amper), a H-tarifás vétel, a vezetékes víz, locsolásra fúrt kút, a csatorna, a gáz telken belül, valamint az optikai kábel leköthetősége rendelkezésre állnak. Az otthon melegéről és melegvíz ellátásáról BIASI kondenzációs kombi gázkazán gondoskodik radiátoros hőleadással. Alternatív megoldásként 3,5 KWh teljesítményű hűtő-fűtő klíma is beszerelésre került, valamint egy vegyestüzelésű kémény is adott. Az udvar rendezett, három oldalról körben bekerített. Gépjárművek számára az aszfaltos útról kapubejáró biztosított. A telken egy 35 m2 nagyságú melléképület is található, melyben igény szerint egy dupla garázs és egy kisebb műhely vagy tároló kialakítható. A családi ház saroktelken helyezkedik el, szabadon álló építésű. A központ infrastruktúrája pár száz méteren belül elérhető, a tömegközlekedés kiépített. A hirdetés tájékoztató jellegű, az ingatlanról pontos adatokat a megtekintést követően a tulajdonos által elmondottak alapján tudunk garantálni! Az ingatlan jelenleg is lakott, birtokba adás a végkifizetést követően lehetséges. A vásárlás finanszírozásában az OTP kedvezőbb kamatozású hitelkonstrukcióival és egyéb banki termékek lehetőségével tudunk segíteni. Az adásvételi szerződés lebonyolításához korrekt ügyvédi közreműködést tudunk ajánlani. Amennyiben felkeltettem érdeklődését, hívjon bizalommal! Eladó ingatlanokat keresünk meglévő és külföldi partnereink számára!

E-mail küldése a hirdetőnek

Hibás hirdetés bejelentése

Sikeres elküldtük a hiba bejelentést.

Hirdető adatai

Mikus-Gál Vivien Fanni
E-mail cím: Vivien.Mikus-Gal@otpip.hu
Telefonszám: +36305557736
OTPip
Hirdetés feladója: Ingatlaniroda
Ingatlaniroda: OTPip
E-mail cím: kecskemet@otpip.hu
Telefonszám: +36707082408

Képek



Térkép


Ajánlott ingatlanok

Családi ház

Eladó Ház, Kecskemét

Keresés azonosító alapján: HI-2357533
  • Kecskemét
  • Alapterület: 150 m²
  • Telekterület: 836 m²
  • Ár: 129 000 000 Ft (342 175 €)
  • Feltöltés dátuma: 2025.01.10.
  •  
Családi ház

Eladó Ház, Cegléd

Keresés azonosító alapján: HI-2514279
  • Cegléd
  • Alapterület: 160 m²
  • Telekterület: 1 045 m²
  • Ár: 86 900 000 Ft (230 504 €)
  • Feltöltés dátuma: 2025.12.20.
  • klímás
Családi ház

Eladó Ház, Kecskemét

Keresés azonosító alapján: HI-2429983
  • Kecskemét
  • Alapterület: 135 m²
  • Telekterület: 4 000 m²
  • Ár: 75 500 000 Ft (200 265 €)
  • Feltöltés dátuma: 2025.06.12.
  •  
Családi ház

Eladó Ház, Kecskemét

Keresés azonosító alapján: HI-2357529
  • Kecskemét
  • Alapterület: 320 m²
  • Telekterület: 523 m²
  • Ár: 149 000 000 Ft (395 225 €)
  • Feltöltés dátuma: 2025.01.10.
  • klímás
Facebook
Blogger
Twitter
Tweets by hasznaltingatla
Flickr