Eladó Ház, Tószeg

Ingatlan azonosító: HI-2511381

Jász-Nagykun-Szolnok megye - Tószeg, Vályogház


22 000 000 Ft (57 895 €)

  • Hirdetés feladója: Ingatlaniroda
  • Pontos cím: Tószeg Móricz Zsigmond út
  • Típus: Eladó
  • Belső irodai azonosító: M318062-5104676
  • Alapterület: 102 m²
  • Telekterület: 666 m² ( 185 négyszögöl )
  • Építés éve: 1955
  • Egész szobák száma (12 m² felett): 3 db
  • Félszobák száma (6-12 m² között): 2 db
  • Ingatlan állapota: közepes állapotú
  • Komfort: duplakomfortos
  • Fűtés: egyéb
  • Pince: nincs
  • Akadálymentesített: nincs
  • Napelem van?: nincs
  • Légkondicionáló: nincs

Leírás

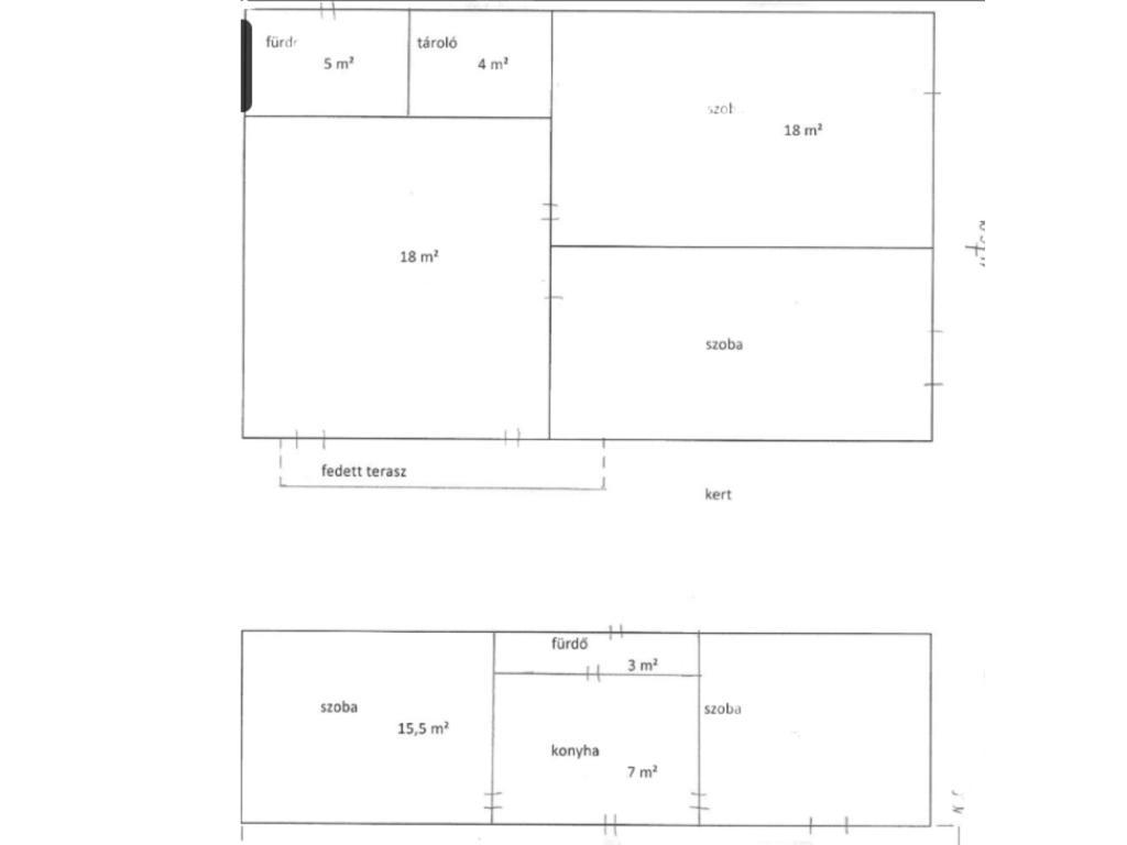
Jász-Nagykun-Szolnok vármegyében, mindössze 15 km-re Szolnoktól, Tószegen eladó egy azonnal költözhető, kétgenerációs családi ház. A 666 nm-es telken két különálló lakrész található, így akár két család számára is ideális választás lehet. A nagyobb, 60 nm-es épületben két tágas szoba kapott helyet, amelyek még kialakításra várnak, valamint egy 18 nm-es nappali, konyha, egy 7 nm-es fürdő + WC és egy 5 nm-es kamra. A ház stabil beton alapra épült, vályog falazattal, fűtését kályha biztosítja, a gáz pedig az utcában elérhető. A kisebb, 42 nm-es házrészben két kényelmes szoba, egy konyha, valamint fürdő + WC található, a fűtést itt is kályha adja. A bejárat előtt egy hangulatos, nagy fedett terasz várja új lakóit, tökéletes helyszínt teremtve a reggeli kávéhoz vagy egy nyugodt esti pihenéshez. A telken ezen felül garázs és gazdasági épületek is rendelkezésre állnak, így minden adott a kényelmes mindennapokhoz. A településen falusi CSOK is igénybe vehető. Ha kétgenerációs megoldást keresel, vagy szeretnél egy külön lakrészt akár kiadásra, akár saját vállalkozás számára, ez az ingatlan remek lehetőség. Ha szeretnéd személyesen is megnézni, keress bátran üzenetben vagy telefonon!

E-mail küldése a hirdetőnek

Hibás hirdetés bejelentése

Sikeres elküldtük a hiba bejelentést.

Hirdető adatai

Botka József
E-mail cím: jozsef.botka@otpip.hu
Telefonszám: +36-20-348-3543
OTPip
Hirdetés feladója: Ingatlaniroda
Ingatlaniroda: OTPip
E-mail cím: szolnok@otpip.hu
Telefonszám: +36707082418

Képek



Térkép


Ajánlott ingatlanok

Vályogház

Eladó Ház, Tápiószele

Keresés azonosító alapján: HI-2514693
  • Tápiószele Fecske út
  • Alapterület: 60 m²
  • Telekterület: 1 196 m²
  • Ár: 34 900 000 Ft (91 842 €)
  • Feltöltés dátuma: 2025.12.23.
  •  
Vályogház

Eladó Ház, Tiszanána

Keresés azonosító alapján: HI-2524571
  • Tiszanána Bocskai István út
  • Alapterület: 160 m²
  • Telekterület: 680 m²
  • Ár: 4 900 000 Ft (12 895 €)
  • Feltöltés dátuma: 2026.01.21.
  •  
Vályogház

Eladó Ház, Tápiógyörgye

Keresés azonosító alapján: HI-2515438
  • Tápiógyörgye Sallai Imre utca
  • Alapterület: 67 m²
  • Telekterület: 752 m²
  • Ár: 14 900 000 Ft (39 211 €)
  • Feltöltés dátuma: 2025.12.31.
  •  
Családi ház

Eladó Ház, Tápiógyörgye

Keresés azonosító alapján: HI-2508027
  • Tápiógyörgye Kölcsey Ferenc utca
  • Alapterület: 105 m²
  • Telekterület: 719 m²
  • Ár: 44 900 000 Ft (118 158 €)
  • Feltöltés dátuma: 2025.12.02.
  •  
Facebook
Blogger
Twitter
Tweets by hasznaltingatla
Flickr