Eladó ház, Üllő

Ingatlan azonosító: HI-2508222

Pest megye - Üllő, Családi ház


94 900 000 Ft (245 220 €)

  • Hirdetés feladója: Ingatlaniroda
  • Pontos cím: Üllő
  • Típus: Eladó
  • Belső irodai azonosító: HZ022903-5098665
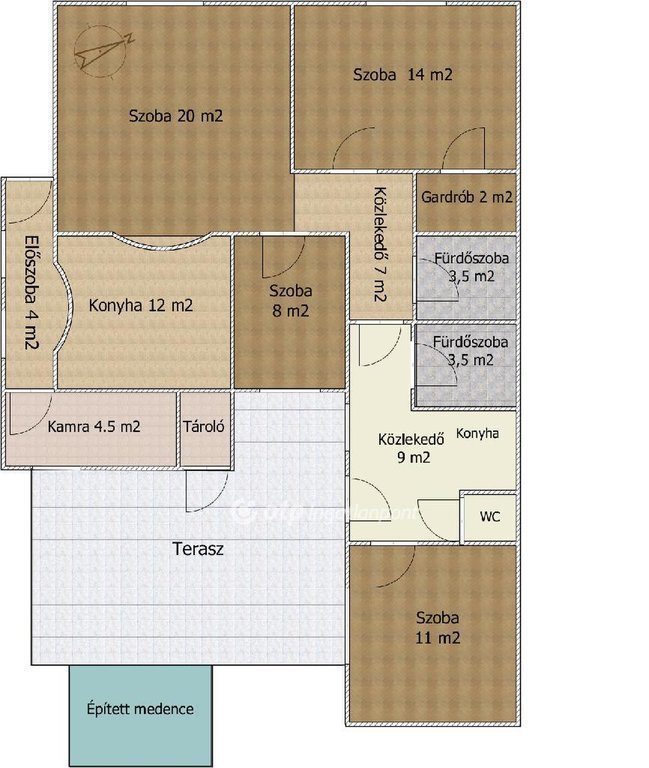
  • Alapterület: 105 m²
  • Telekterület: 542 m² ( 151 négyszögöl )
  • Építés éve: 2026
  • Egész szobák száma (12 m² felett): 4 db
  • Félszobák száma (6-12 m² között): 0 db
  • Fürdőszobák száma: 1 db
  • Ingatlan állapota: új építésű
  • Fűtés: egyéb
  • Pince: nincs
  • Akadálymentesített: nincs
  • Napelem van?: nincs
  • Légkondicionáló: nincs

Leírás

MEGÚJULÓ ENERGIA MINIMÁLIS REZSIVEL Üllő központjában!Új építésű hőszivattyús, nappali + 3 szobás, nettó 105 nm-es családi ház (nettó 94,5 nm lakrész + 23 nm terasz) Üllőn 22 nm-es terasszal 542 nm-es telken.Eladó Üllő csendes, családi házas övezetében egy egyszintes családi ház 32 nm-es amerikai konyhás nappalival, nagy kerttel, udvari beállóval, magas minőségben kivitelezve.Minden állami támogatás igénybe vehető!A fűtést A++ Stiebel Eltron hőszivattyú biztosítja, a hidegburkolatú helyiségekben padlófűtés, míg a nappaliban, konyhában, szobákban mennyezeti hűtés/fűtés + padlófűtés. Nappaliban inverteres klíma beszerelése (levegő cserélése, szárítása miatt), a 3 db szobában és a konyhában az ablakokba EMM 716 aereco szellőztetés beépítés. A fürdőszobában elektromos patronos radiátor. A nappaliban hővisszanyerős szellőztető ventilátor kiépítése, a 3 db szobában és a konyhában az ablakokba EMM 716 aereco szellőztetés beépítés.A lakás helyiségei: nappali (23 nm), 3 db szoba (13,5 nm, 12 nm és 12 nm) konyha-étkező (9,2 nm), háztartási helyiség (5,25 nm), közlekedő (4 nm), fürdő-wc (5,76 nm), gardrób (4,6 nm), WC (1,8 nm), előtér (3,6), fedett belépő (5 nm), terasz (23 nm).A lakás nettó alapterület: 94,5 nm + 23 nm terasz.Műszaki leírás:- Leiertherm 30 N+F tégla- 15 cm-es homlokzati szigetelés + 15 cm-es lépésálló EPS szigetelés + 30 cm ásványgyapot födémszigetelés- Kömmerling 5 légkamrás, 3 rétegű műanyag nyílászárók- antracit tetőcserép- nappaliban inverteres klíma- Stiebel hőszivattyú, padlófűtés, mennyezeti hűtés-fűtés- villanyellátás: 3*20A + 1x20A H tarifa- beltéri ajtók 75.000 Ft / db- szaniterek 270.000 Ft ig- hideg- és melegburkolatok 6.500 Ft / nm és 4.000 Ft / nmVárható átadás 2026. június!Teljes műszaki leírás, méretarányos tervrajz, teljes dokumentáció irodánkban megtekinthető.A kivitelező elkészült referenciamunkái (melyek a képeken láthatók) a közelben megtekinthetők!A Duna House teljes kínálatával kapcsolatban forduljon hozzám bizalommal. Hitel ügyintézés garantáltan a legjobb feltételekkel és a leggyorsabban. Eladás és vétel teljes körű ügyintézése, ingyenes tanácsadás, értékbecslés, megbízható ügyvédi háttér biztosítása.IGÉNY ESETÉN - ÉLŐ SKYPEVIDEO LAKÁSBEMUTATÁS, TELJES KÖRŰ ONLINE ÜGYINTÉZÉS! Referencia szám: HZ022903-HI

E-mail küldése a hirdetőnek

Hibás hirdetés bejelentése

Sikeres elküldtük a hiba bejelentést.

Hirdető adatai

Zámbó Beatrix
E-mail cím: zambo.beatrix@dh.hu
Telefonszám: +36704215921
Duna House
Hirdetés feladója: Ingatlaniroda
Ingatlaniroda: Duna House
E-mail cím: kertvaros18@dh.hu
Telefonszám: +3617086081

Képek



Térkép


Ajánlott ingatlanok

Családi ház

Eladó ház, Budapest 18. ker.

Keresés azonosító alapján: HI-2508174
  • Budapest XVIII.
  • Alapterület: 196 m²
  • Telekterület: 600 m²
  • Ár: 148 000 000 Ft (382 429 €)
  • Feltöltés dátuma: 2025.12.02.
  •  
Családi ház

Eladó ház, Üllő

Keresés azonosító alapján: HI-2508204
  • Üllő
  • Alapterület: 114 m²
  • Telekterület: 752 m²
  • Ár: 79 900 000 Ft (206 460 €)
  • Feltöltés dátuma: 2025.12.02.
  •  
Családi ház

Eladó ház, Gyál

Keresés azonosító alapján: HI-2511884
  • Gyál
  • Alapterület: 120 m²
  • Telekterület: 733 m²
  • Ár: 81 000 000 Ft (209 302 €)
  • Feltöltés dátuma: 2025.12.12.
  •  
Családi ház

Eladó ház, Budapest 17. ker.

Keresés azonosító alapján: HI-2508193
  • Budapest XVII.
  • Alapterület: 86 m²
  • Telekterület: 590 m²
  • Ár: 95 900 000 Ft (247 804 €)
  • Feltöltés dátuma: 2025.12.02.
  •  
Facebook
Blogger
Twitter
Tweets by hasznaltingatla
Flickr