Eladó ház, Vecsés

Ingatlan azonosító: HI-2488750

Pest megye - Vecsés, Ikerház


125 000 000 Ft (328 084 €)

  • Hirdetés feladója: Ingatlaniroda
  • Pontos cím: Vecsés
  • Típus: Eladó
  • Belső irodai azonosító: HZ051663-5059425
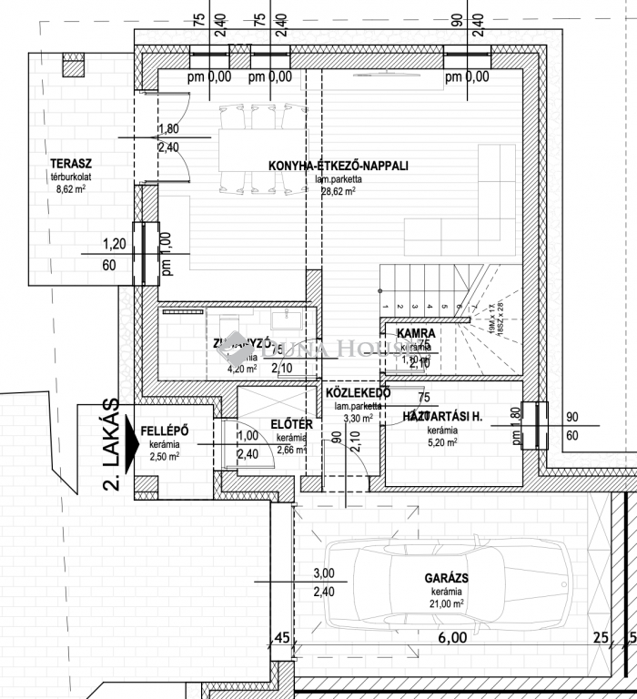
  • Alapterület: 117 m²
  • Telekterület: 307 m² ( 85 négyszögöl )
  • Építés éve: 2025
  • Egész szobák száma (12 m² felett): 4 db
  • Félszobák száma (6-12 m² között): 0 db
  • Fürdőszobák száma: 2 db
  • Ingatlan állapota: új építésű
  • Fűtés: egyéb
  • Pince: nincs
  • Akadálymentesített: nincs
  • Napelem van?: nincs
  • Légkondicionáló: nincs

Leírás

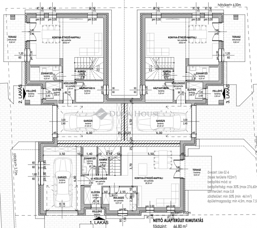
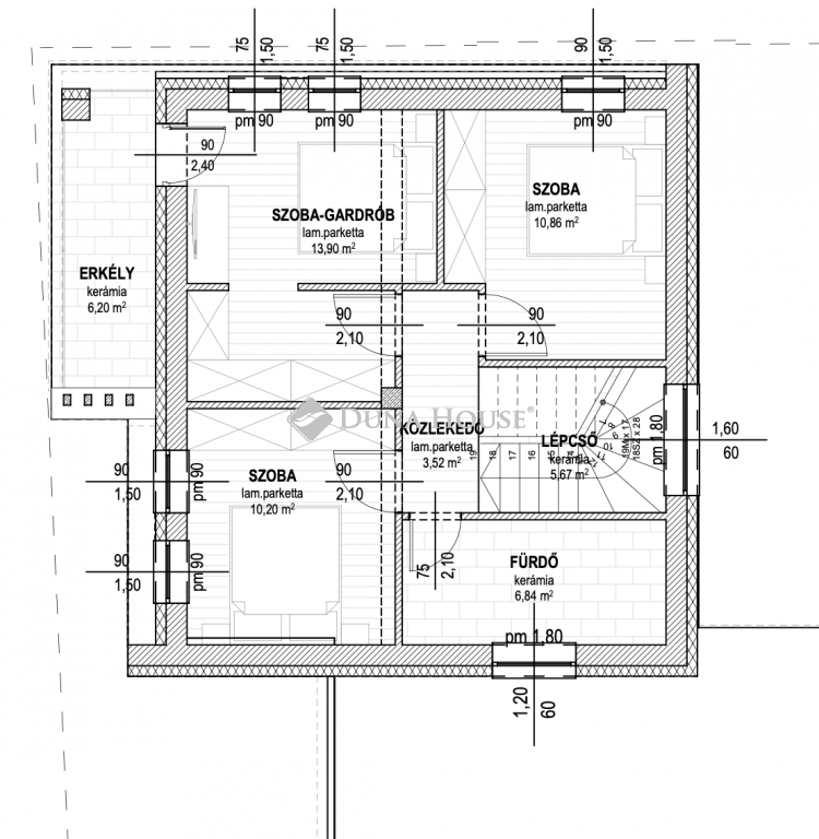
Vecsés legmodernebb fiatalos, családias részén Vecsésen modern környezetben eladó új építésű családi házak. A kivitelező sok éves múlttal és rengeteg elégedett ügyféllel rendelkezik, referenciák akár itt a lakóparkban is megtekinthetőek. 1-es ház 127 négyzetméter hasznos lakótérrel rendelkezik, mely egy 307 négyzetméteres telken fekszik. A földszinten a nappaliból egy 8 négyzetméteres teraszon keresztül juthatunk ki a saját privát kertünkbe, továbbá az emeleten egy 8,19 négyzetméteres tetőterasz is tartozik hozzá. Nappali+4 hálószoba+ gardrób, 21nm garázs, szülőiháló. 22 méter saját utcafront! 2-es ház 117,03 négyzetméter hasznos lakótérrel rendelkezik, mely egy 307 négyzetméteres telken fekszik. A földszinten a nappaliból egy 8,62 négyzetméteres teraszon keresztül juthatunk ki a saját privát kertünkbe, továbbá az emeleten egy 6,20 négyzetméteres erkély is tartozik hozzá. Nappali+3hálószoba+gardrób, 21nm garázs, szülőiháló. 3-as ház 117,03 négyzetméter hasznos lakótérrel rendelkezik, mely egy 307 négyzetméteres telken fekszik. A földszinten a nappaliból egy 8,62 négyzetméteres teraszon keresztül juthatunk ki a saját privát kertünkbe, továbbá az emeleten egy 6,20 négyzetméteres erkély is tartozik hozzá. Nappali+3hálószoba+gardrób, 21nm garázs, szülői háló. Műszaki adatok: -30as Prototherm tégla falazat -15cm-es homlokzati szigetelés -18-cm-es szigetelés az aljzat felől -8cm-es szigetelés a födém felől -3 rétegű műanyag nyílászárók kívülről antracit belülről fehér színűek -elektromos garázskapu antracit színnel -Hőszivattyús fűtés/hűtés (fan coil) -2 fürdőszoba -mosókonyha -riasztó és kaputelefon kiállás -térkövezett autóbeálló Burkolatok/beltéri ajtók/szaniterek még választhatóak. A lakópark teljesen új modern környezet, játszótérrel, fákkal. Közlekedést tekintve autóval a Gyorsforgalmi út, Üllői út, Gyömrői út az M0ás és a 4-es út 3perc alatt megközelíthető. Tömegközlekedés 3perc sétára Volánbusz Kőbánya Kispest vasútállomásig közlekedik, 10perc sétára Vecsési vonatállomás, melyről a Nyugati pályaudvarig közlekednek a vonatok. Felkeltette érdeklődését keressen bizalommal a hét bármely napján! Átadás: 2026.IV. negyedév Referencia szám: HZ051663

E-mail küldése a hirdetőnek

Hibás hirdetés bejelentése

Sikeres elküldtük a hiba bejelentést.

Hirdető adatai

Király Mária
E-mail cím: kiraly.maria@dh.hu
Telefonszám: +36202242600
Duna House
Hirdetés feladója: Ingatlaniroda
Ingatlaniroda: Duna House
E-mail cím: maglod@dh.hu
Telefonszám: +36303911743

Képek



Térkép


Ajánlott ingatlanok

Ikerház

Eladó ház, Monor

Keresés azonosító alapján: HI-2512928
  • Monor
  • Alapterület: 81 m²
  • Telekterület: 500 m²
  • Ár: 82 000 000 Ft (215 223 €)
  • Feltöltés dátuma: 2025.12.16.
  •  
Ikerház

Eladó ház, Monor

Keresés azonosító alapján: HI-2488743
  • Monor
  • Alapterület: 80 m²
  • Telekterület: 350 m²
  • Ár: 89 900 000 Ft (235 958 €)
  • Feltöltés dátuma: 2025.10.11.
  •  
Ikerház

Eladó ház, Budapest 17. ker.

Keresés azonosító alapján: HI-2441043
  • Budapest XVII. Búbosbanka utca
  • Alapterület: 260 m²
  • Telekterület: 283 m²
  • Ár: 139 000 000 Ft (364 829 €)
  • Feltöltés dátuma: 2025.07.04.
  •  
Ikerház

Eladó ház, Budapest 10. ker.

Keresés azonosító alapján: HI-2459322
  • Budapest X.
  • Alapterület: 190 m²
  • Telekterület: 700 m²
  • Ár: 78 000 000 Ft (204 724 €)
  • Feltöltés dátuma: 2025.08.07.
  •  
Facebook
Blogger
Twitter
Tweets by hasznaltingatla
Flickr