Eladó Ház, Velence

Ingatlan azonosító: HI-2505917

Fejér megye - Velence, Családi ház


97 300 000 Ft (255 381 €)

  • Hirdetés feladója: Ingatlaniroda
  • Pontos cím: Velence
  • Típus: Eladó
  • Belső irodai azonosító: M250488-5093019
  • Alapterület: 109 m²
  • Telekterület: 1 022 m² ( 284 négyszögöl )
  • Egész szobák száma (12 m² felett): 3 db
  • Félszobák száma (6-12 m² között): 2 db
  • Ingatlan állapota: új építésű
  • Komfort: összkomfortos
  • Fűtés: elektromos
  • Pince: nincs
  • Akadálymentesített: nincs
  • Napelem van?: nincs
  • Légkondicionáló: nincs

Leírás

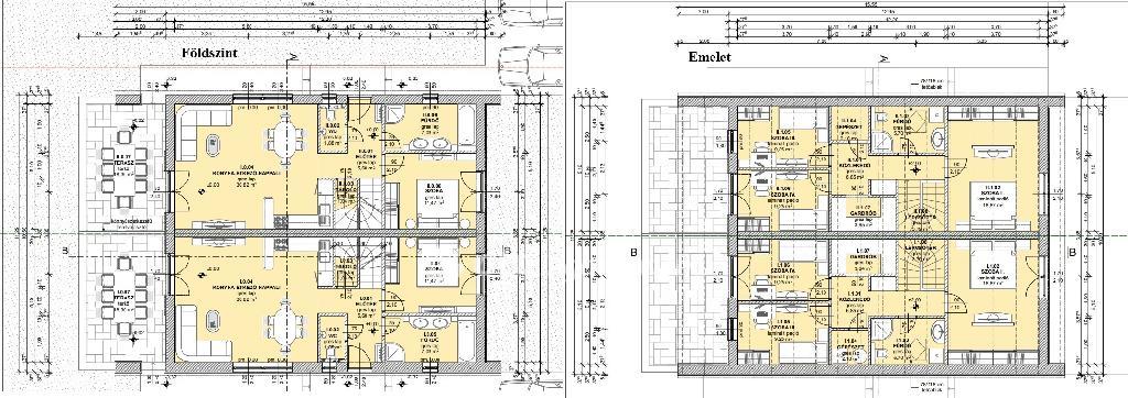
Fejér megye, Velence ÚJ ÉPÍTÉSŰ 109 nm-es családi ház eladó. A feltüntetett ár már tartalmazza a telek árát és a külső kulcsra kész állapotot. A belterületi ingatlan Bence hegyen, egy 1022 nm-es PANORÁMÁS telken helyezkedik el. A családi házban nappali, 2 szoba, 2 félszoba, konyha, étkező, 2 fürdőszoba, mosókonyha található. Opcionálisan, akár nettó 46 m2 fedett terasszal is elérhető. Egy Leier Típusház tökéletes választás lehet azoknak, akik szeretnek előre tervezni és a terveiket pontosan és kiszámíthatóan megvalósítani, mind anyagi, mind ütemezési szempontból. Az ingatlan alkalmas az új építésű CSOK felhasználására. További kérdés esetén keressen bizalommal akár hétvégén is! Ügyfeleinknek díjtalanul készítünk akár online előzetes hitelbírálatot és teljeskörűen ingyenes hitel és támogatás ügyintézést vállalunk. A Leier ház egy könnyen és gyorsan felépíthető, moduláris házrendszer. A Leier technológia előre tervezett és előre gyártott házakat kínál, amelyeket méretpontosan előállítanak, így biztosítható a kiszámítható végeredmény és a kiváló minőség. A Leier házak legfőbb jellemzője a Leier kéregfal, amely számos előnnyel jár hosszú távon. A kéregfalak méretei házanként változhatnak. A Leier házak előnyei: Gyors és költséghatékony kivitelezés: A méretpontos és előre gyártott technológia lehetővé teszi a gyorsabb építést kevesebb szakember és eszköz bevonásával. Az előre gyártott kéregfalakba beépítik az elektromos szerelvényeket és védőcsövezik őket, így időt és pénzt takaríthatunk meg. Környezettudatos építés: A kéregfalak előre hőszigeteltek, és Durisolból készült falazattal rendelkeznek, ami környezettudatos öko falazóelemekből áll. Kiváló minőségű hűtő- és fűtőrendszer: A Leier házak klímafödémmel rendelkeznek, amelyek kiváló minőségű hűtést és fűtést biztosítanak. A Leier kéregfal előnyei: Tartós és állandó minőség: A korszerű gyártástechnológia és a felhasznált anyagok kiváló minőséget biztosítanak. Gyors és megszakítás nélküli építés. LRHZ Teljes körű ügyintézésben segítjük ügyfeleinket díjtalanul: mobil bankári szolgáltatással, kedvezményes hitellel, az adásvétel és átírás teljes lebonyolításával. További kérdések esetén várom hívását, akár hétvégén is! Üdvözlettel: Bocsor István istvan.bocsor@otpip.hu +36/70 622 84 93 Referencia szám: M250488

E-mail küldése a hirdetőnek

Hibás hirdetés bejelentése

Sikeres elküldtük a hiba bejelentést.

Hirdető adatai

Bocsor István
E-mail cím: istvan.bocsor@otpip.hu
Telefonszám: +36-70-622-8493
OTPip
Hirdetés feladója: Ingatlaniroda
Ingatlaniroda: OTPip
E-mail cím: velence@otpip.hu
Telefonszám: +36-70-457-6920

Képek



Térkép


Ajánlott ingatlanok

Családi ház

Székesfehérvár

Keresés azonosító alapján: HI-2498558
  • Székesfehérvár
  • Alapterület: 190 m²
  • Telekterület: 487 m²
  • Ár: 179 000 000 Ft (469 816 €)
  • Feltöltés dátuma: 2025.11.05.
  •  
Családi ház

Eladó Ház, Pusztaszabolcs

Keresés azonosító alapján: HI-2509351
  • Pusztaszabolcs
  • Alapterület: 74 m²
  • Telekterület: 1 426 m²
  • Ár: 39 900 000 Ft (104 724 €)
  • Feltöltés dátuma: 2025.12.03.
  •  
Családi ház

Eladó Ház, Berhida

Keresés azonosító alapján: HI-2496587
  • Berhida
  • Alapterület: 120 m²
  • Telekterület: 2 684 m²
  • Ár: 58 000 000 Ft (152 231 €)
  • Feltöltés dátuma: 2025.10.31.
  • klímás
Családi ház

Gárdony vízparti ház

Keresés azonosító alapján: HI-2481298
  • Gárdony
  • Alapterület: 160 m²
  • Telekterület: 919 m²
  • Ár: 220 000 000 Ft (577 428 €)
  • Feltöltés dátuma: 2025.09.27.
  •  
Facebook
Blogger
Twitter
Tweets by hasznaltingatla
Flickr