Eladó Ház, Velence

Ingatlan azonosító: HI-2513092

Fejér megye - Velence, Ikerház


79 900 000 Ft (208 073 €)

  • Hirdetés feladója: Ingatlaniroda
  • Pontos cím: Velence
  • Típus: Eladó
  • Belső irodai azonosító: M319290-5108433
  • Alapterület: 88 m²
  • Telekterület: 518 m² ( 144 négyszögöl )
  • Építés éve: 2026
  • Egész szobák száma (12 m² felett): 4 db
  • Félszobák száma (6-12 m² között): 1 db
  • Ingatlan állapota: új építésű
  • Komfort: duplakomfortos
  • Fűtés: egyéb
  • Pince: nincs
  • Akadálymentesített: nincs
  • Napelem van?: nincs
  • Légkondicionáló: nincs

Leírás

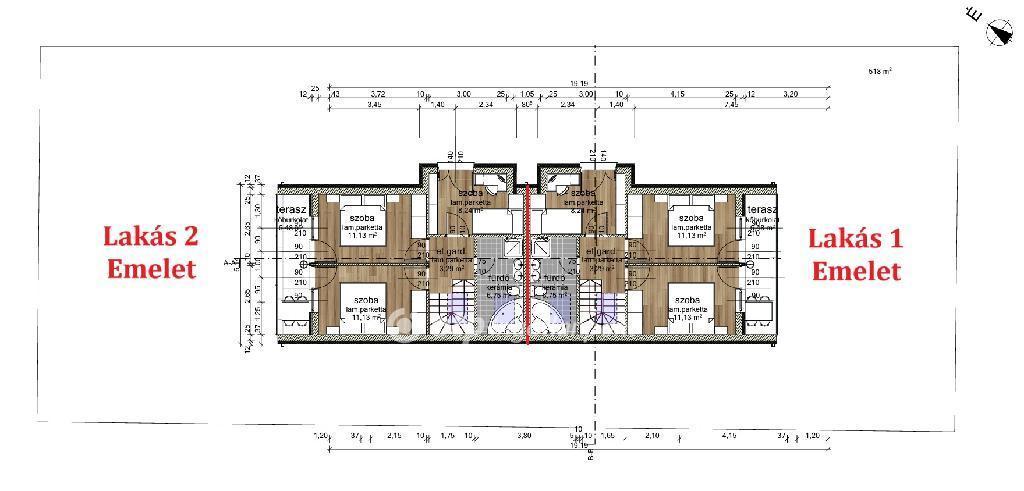
Velencén, Budapesttől mindössze 47 km-re modern ikerházi lakások eladók saját kerttel! Fejér vármegyében, Velence csendes, zöldövezeti részén, a számozott utcákban kínálok megvételre 88 m? hasznos alapterületű, új építésű ikerházi lakásokat. A nappali+ 3,5 szobás ingatlanok kamrával, háztartási helyiséggel, saját kertrésszel, két terasszal és felszíni gépkocsibeállóval rendelkeznek, így magas komfortfokozatot biztosítanak leendő tulajdonosaik számára. Lakás 1.: 74.900.000 Ft Lakás 2.: 79.900.000 Ft Műszaki tartalom és felszereltség: Fűtés: levegő víz hőszivattyú, padlófűtés Hűtés: 1 db klímaberendezés Alapozás: beton sávalap Vízszigetelés: 1 réteg BITUBIT GV?4,5 hegeszthető bitumenes lemez talajnedvesség ellen Teherhordó falak: 25 cm YTONG Födém: 20 cm monolit vasbeton lemez (statikai terv szerint) Válaszfalak: 10 cm Porotherm válaszfallap Homlokzati hőszigetelés: 12 cm grafitos EPS Zárófödém szigetelés: 2×15 cm Rockwool Multirock Földszinti födém szigetelés: 12 cm Austrotherm AT?L2 Külső nyílászárók: 3 rétegű üvegezés, argongáz töltés, dupla gumitömítés, 5 légkamrás műanyag szerkezet Tetőfedés: betoncserép Burkolatok: ragasztott kerámia és laminált padló választható színben, a teraszokon kőlap Falburkolatok: Fürdőszobában mennyezetig csempe, Konyhában a munkapult fölötti rész csempézve Homlokzat: törtfehér vékonyvakolat szürke díszítő elemekkel Csapadékvíz-elvezetés: tározóba vezetve A lakások elrendezése praktikus, tágas és világos tereket biztosít, a korszerű építészeti megoldások pedig alacsony fenntartási költséget eredményeznek. A környék nyugodt, családbarát, a Velencei-tó közelsége pedig különleges életminőséget kínál. Az OTP Ingatlanpont teljeskörű ügyintézéssel áll az eladók és a vevők rendelkezésére! A választott ingatlan finanszírozásához kedvezményes hitel- és pénzügyi konstrukciókat kínálunk. Otthon Start hitel, CSOK Plusz teljeskörű ügyintézését vállaljuk. Az adásvétel teljes folyamatát végigkísérjük és ügyvédi közreműködést biztosítunk! Amennyiben modern, energiahatékony otthont keres természetközeli környezetben, ezek a velencei ikerházi lakások kiváló választást jelentenek.

E-mail küldése a hirdetőnek

Hibás hirdetés bejelentése

Sikeres elküldtük a hiba bejelentést.

Hirdető adatai

Micskey Marianna Vanda
E-mail cím: vanda.micskey.marianna@otpip.hu
Telefonszám: +36303229382
OTPip
Hirdetés feladója: Ingatlaniroda
Ingatlaniroda: OTPip
E-mail cím: gardony@otpip.hu
Telefonszám: +36704576920

Képek



Térkép


Ajánlott ingatlanok

Ikerház

Eladó Ház, Besnyő

Keresés azonosító alapján: HI-2509580
  • Besnyő
  • Alapterület: 117 m²
  • Telekterület: 450 m²
  • Ár: 79 000 000 Ft (205 729 €)
  • Feltöltés dátuma: 2025.12.04.
  •  
Ikerház

Eladó Ház, Székesfehérvár

Keresés azonosító alapján: HI-2489413
  • Székesfehérvár
  • Alapterület: 208 m²
  • Telekterület: 800 m²
  • Ár: 140 676 000 Ft (366 344 €)
  • Feltöltés dátuma: 2025.10.14.
  •  
Ikerház

Eladó Ház, Velence

Keresés azonosító alapján: HI-2513091
  • Velence
  • Alapterület: 100 m²
  • Telekterület: 500 m²
  • Ár: 94 900 000 Ft (247 135 €)
  • Feltöltés dátuma: 2025.12.16.
  •  
Ikerház

Eladó Ház, Balatonakarattya

Keresés azonosító alapján: HI-2503812
  • Alapterület: 154 m²
  • Telekterület: 1 003 m²
  • Ár: 179 000 000 Ft (466 146 €)
  • Feltöltés dátuma: 2025.11.20.
  •  
Facebook
Blogger
Twitter
Tweets by hasznaltingatla
Flickr