Eladó Ház, Velence

Ingatlan azonosító: HI-2535934

Fejér megye - Velence, Ikerház


74 900 000 Ft (197 105 €)

  • Hirdetés feladója: Ingatlaniroda
  • Pontos cím: Velence
  • Típus: Eladó
  • Belső irodai azonosító: M319289-5109399
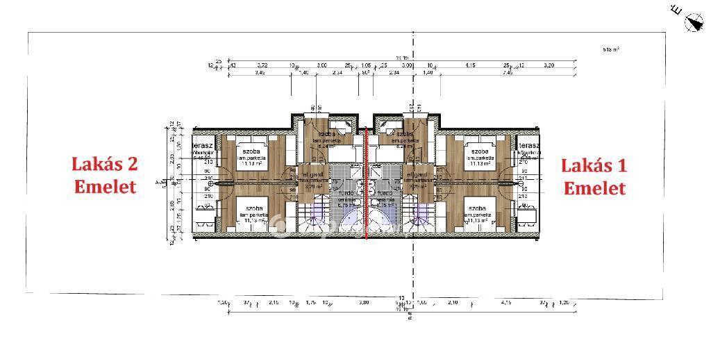
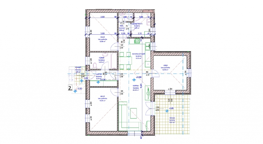
  • Alapterület: 88 m²
  • Telekterület: 518 m² ( 144 négyszögöl )
  • Építés éve: 2026
  • Egész szobák száma (12 m² felett): 4 db
  • Félszobák száma (6-12 m² között): 1 db
  • Ingatlan állapota: új építésű
  • Komfort: duplakomfortos
  • Fűtés: egyéb
  • Pince: nincs
  • Akadálymentesített: nincs
  • Energiatanúsítvány: A+
  • Napelem van?: nincs
  • Légkondicionáló: van

Leírás

Velencén, Budapesttől mindössze 47 km-re modern ikerházi lakások eladók saját kerttel! Fejér vármegyében, Velence csendes, zöldövezeti részén, a számozott utcákban kínálok megvételre 88 m2 hasznos alapterületű, új építésű ikerházi lakásokat. A nappali+ 3,5 szobás ingatlanok kamrával, háztartási helyiséggel, saját kertrésszel, két terasszal és felszíni gépkocsibeállóval rendelkeznek, így magas komfortfokozatot biztosítanak leendő tulajdonosaik számára. Lakás 1.: 74.900.000 Ft (kulcsrakész állapot) Lakás 2.: 79.900.000 Ft (kulcsrakész állapot) Műszaki tartalom és felszereltség: Fűtés: levegő víz hőszivattyú, padlófűtés Hűtés: 1 db klímaberendezés Alapozás: beton sávalap Vízszigetelés: 1 réteg BITUBIT GV 4,5 hegeszthető bitumenes lemez talajnedvesség ellen Teherhordó falak: 25 cm YTONG Födém: 20 cm monolit vasbeton lemez (statikai terv szerint) Válaszfalak: 10 cm Porotherm válaszfallap Homlokzati hőszigetelés: 12 cm grafitos EPS Zárófödém szigetelés: 2×15 cm Rockwool Multirock Földszinti födém szigetelés: 12 cm Austrotherm AT L2 Külső nyílászárók: 3 rétegű üvegezés, argongáz töltés, dupla gumitömítés, 5 légkamrás műanyag szerkezet Tetőfedés: betoncserép Burkolatok: ragasztott kerámia és laminált padló választható színben, a teraszokon kőlap Falburkolatok: Fürdőszobában mennyezetig csempe, Konyhában a munkapult fölötti rész csempézve Homlokzat: törtfehér vékonyvakolat szürke díszítő elemekkel Csapadékvíz-elvezetés: tározóba vezetve Kulcsrakész állapot várható ideje: 2026 nyár A lakások elrendezése praktikus, tágas és világos tereket biztosít, a korszerű építészeti megoldások pedig alacsony fenntartási költséget eredményeznek. A környék nyugodt, családbarát, a Velencei-tó közelsége pedig különleges életminőséget kínál. Az OTP Ingatlanpont teljeskörű ügyintézéssel áll az eladók és a vevők rendelkezésére! A választott ingatlan finanszírozásához kedvezményes hitel- és pénzügyi konstrukciókat kínálunk. Otthon Start hitel, CSOK Plusz teljeskörű ügyintézését vállaljuk. Az adásvétel teljes folyamatát végigkísérjük és ügyvédi közreműködést biztosítunk! Amennyiben modern, energiahatékony otthont keres természetközeli környezetben, ezek a velencei ikerházi lakások kiváló választást jelentenek.

E-mail küldése a hirdetőnek

Hibás hirdetés bejelentése

Sikeres elküldtük a hiba bejelentést.

Hirdető adatai

Démann Judit
E-mail cím: judit.demann@otpip.hu
Telefonszám: +36-70-406-0378
OTPip
Hirdetés feladója: Ingatlaniroda
Ingatlaniroda: OTPip
E-mail cím: velence@otpip.hu
Telefonszám: +36-70-457-6920

Képek



Térkép


Ajánlott ingatlanok

Ikerház

Eladó Ház, Diósd

Keresés azonosító alapján: HI-2535916
  • Diósd
  • Alapterület: 108 m²
  • Telekterület: 669 m²
  • Ár: 122 600 000 Ft (322 632 €)
  • Feltöltés dátuma: 2026.02.12.
  •  
Ikerház

Eladó Ház, Tordas

Keresés azonosító alapján: HI-2535903
  • Tordas
  • Alapterület: 122 m²
  • Telekterület: 764 m²
  • Ár: 59 900 000 Ft (157 632 €)
  • Feltöltés dátuma: 2026.02.12.
  •  
Ikerház

Eladó Ház, Diósd

Keresés azonosító alapján: HI-2535908
  • Diósd
  • Alapterület: 113 m²
  • Telekterület: 365 m²
  • Ár: 138 400 000 Ft (364 211 €)
  • Feltöltés dátuma: 2026.02.12.
  •  
Ikerház

Eladó Ház, Gárdony

Keresés azonosító alapján: HI-2535924
  • Gárdony
  • Alapterület: 85 m²
  • Telekterület: 407 m²
  • Ár: 101 200 000 Ft (266 316 €)
  • Feltöltés dátuma: 2026.02.12.
  •  
Facebook
Blogger
Twitter
Tweets by hasznaltingatla
Flickr