Eladó Ház, Veresegyház

Ingatlan azonosító: HI-2503437

Pest megye - Veresegyház, Családi ház


128 000 000 Ft (352 617 €)

  • Hirdetés feladója: Ingatlaniroda
  • Pontos cím: Veresegyház
  • Típus: Eladó
  • Belső irodai azonosító: M317397-5088365
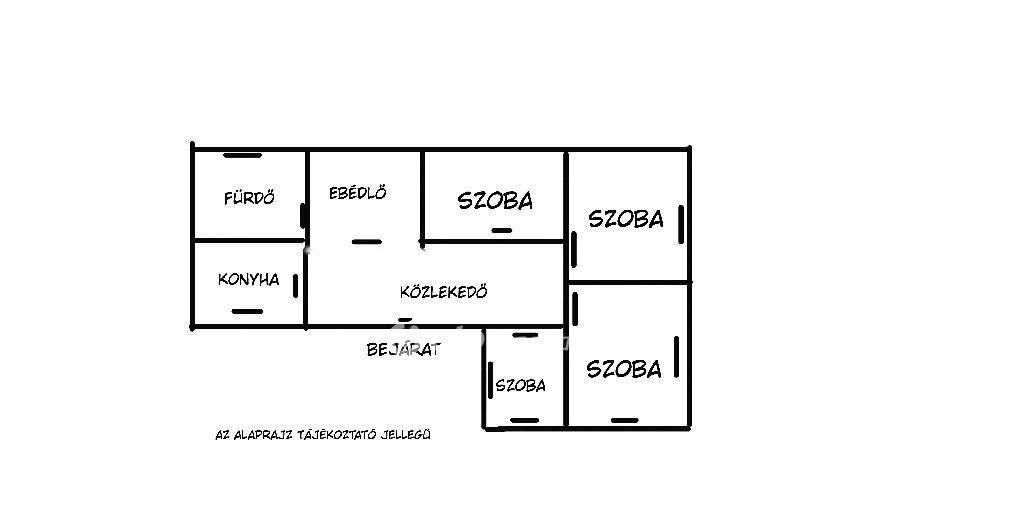
  • Alapterület: 180 m²
  • Telekterület: 715 m² ( 199 négyszögöl )
  • Építés éve: 1976
  • Egész szobák száma (12 m² felett): 6 db
  • Félszobák száma (6-12 m² között): 0 db
  • Ingatlan állapota: jó állapotú
  • Komfort: duplakomfortos
  • Fűtés: elektromos
  • Pince: nincs
  • Akadálymentesített: nincs
  • Napelem van?: nincs
  • Légkondicionáló: nincs

Leírás

Pest Vármegye, Veresegyház, a főtér közvetlen közelében kínálunk eladásra egy 715 m2-es telken elhelyezkedő, két különálló, tégla építésű családi házat. A nagyobbik épület alapterülete 120 m2, a kisebbik 60 m2-es. Mindkét ház szerepel a telekrajzon, és akár 6 méteres magasságig bővíthető, így lehetőség van emeletes kialakításra. A nagy ház gépészeti része modernizált, új elektromos- (új mérőóra, 2,5 mm vezetékek, elosztók, szekrények) és vízvezetékkel rendelkezik, valamint háromfázisú hálózat lett kialakítva, ami további bővítést is lehetővé tesz. A telken két garázs, fúrt kút és ős fás, nagy méretű kert található. A tetőtér beépíthető, így akár nagy család részére ideális, vagy vállalkozási, alapítványi célokra is átalakítható. A telek mérete lehetővé teszi akár a telek megosztását és a két ház különválasztását is. A kisebbik épület felújításra szorul. Az ingatlan központi elhelyezkedése biztosítja a közelben található iskolákat, óvodákat, városi programokat. Kiváló befektetés családok és vállalkozások részére egyaránt. További információért és megtekintésért hívjon bátran. Teljes körű ügyintézéssel állunk az eladók és a vevők rendelkezésére! A kínálatunkból választott ingatlan finanszírozásához minősített fogyasztóbarát, piaci és kedvezményes hitel- és lízingkonstrukciókat kínálunk (lakásvásárlási hitel, szabad felhasználású hitel, babaváró hitel, 3%-os hitel, CSOK Plusz intézés, Otthonfelújítási Támogatás, egyéb felújítási hitelek). Az adásvételi szerződés megkötéséhez igény szerint megbízható ügyvédi közreműködést biztosítunk, és segítséget nyújtunk az adásvételhez kapcsolódó egyéb ügyek intézéséhez. Amennyiben felkeltettem érdeklődését, hívjon bizalommal! Referencia szám: M317397

E-mail küldése a hirdetőnek

Hibás hirdetés bejelentése

Sikeres elküldtük a hiba bejelentést.

Hirdető adatai

Burik Katalin
E-mail cím: katalin.burik@otpip.hu
Telefonszám: +36203293075
OTPip
Hirdetés feladója: Ingatlaniroda
Ingatlaniroda: OTPip
E-mail cím: eger@otpip.hu
Telefonszám: +36-70-377-2977

Képek



Térkép


Ajánlott ingatlanok

Családi ház

Eladó Ház, Budapest 18. ker.

Keresés azonosító alapján: HI-2565297
  • Budapest XVIII.
  • Alapterület: 265 m²
  • Telekterület: 664 m²
  • Ár: 170 000 000 Ft (468 320 €)
  • Feltöltés dátuma: 2026.04.26.
  •  
Családi ház

Eladó Ház, Rózsaszentmárton

Keresés azonosító alapján: HI-2447205
  • Rózsaszentmárton
  • Alapterület: 70 m²
  • Telekterület: 1 195 m²
  • Ár: 17 000 000 Ft (46 832 €)
  • Feltöltés dátuma: 2025.07.19.
  • klímás
Családi ház

Eladó Ház, Tápióság

Keresés azonosító alapján: HI-2559882
  • Tápióság
  • Alapterület: 75 m²
  • Telekterület: 1 032 m²
  • Ár: 29 900 000 Ft (82 369 €)
  • Feltöltés dátuma: 2026.04.10.
  •  
Családi ház

Eladó Ház, Hatvan

Keresés azonosító alapján: HI-2562488
  • Hatvan
  • Alapterület: 120 m²
  • Telekterület: 1 265 m²
  • Ár: 62 500 000 Ft (172 176 €)
  • Feltöltés dátuma: 2026.04.17.
  •  
Facebook
Blogger
Twitter
Tweets by hasznaltingatla
Flickr