Eladó ház Zalaegerszeg, Csácsi

Ingatlan azonosító: HI-2534286

Zala megye - Zalaegerszeg, Családi ház


73 000 000 Ft (203 343 €)

  • Hirdetés feladója: Ingatlaniroda
  • Pontos cím: Zalaegerszeg
  • Típus: Eladó
  • Belső irodai azonosító: H510087-5143309
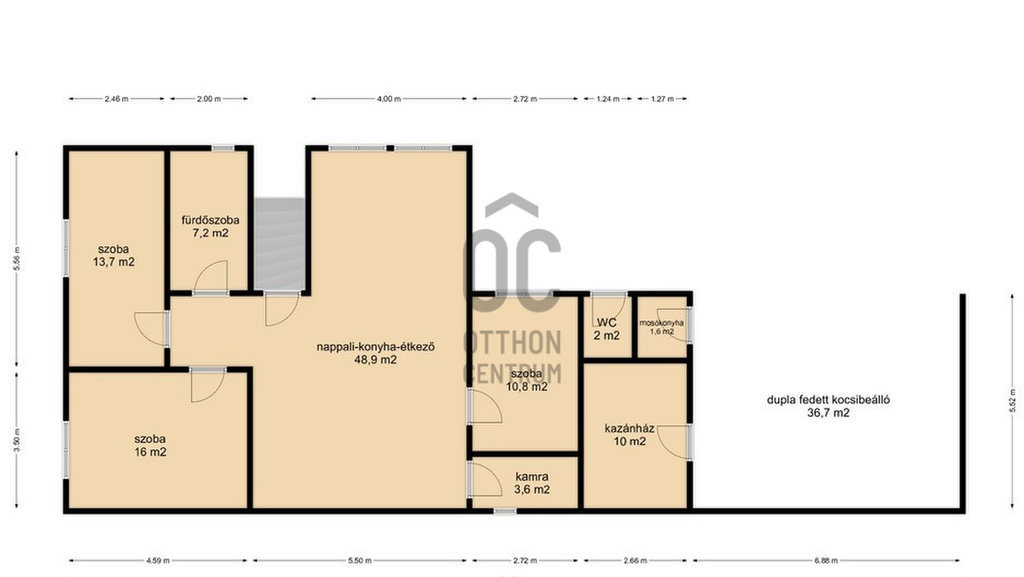
  • Alapterület: 89 m²
  • Telekterület: 1 022 m² ( 284 négyszögöl )
  • Építés éve: 1970
  • Egész szobák száma (12 m² felett): 4 db
  • Félszobák száma (6-12 m² között): 0 db
  • Fürdőszobák száma: 1 db
  • Ingatlan állapota: felújított
  • Fűtés: egyéb
  • Pince: nincs
  • Akadálymentesített: nincs
  • Napelem van?: nincs
  • Légkondicionáló: nincs

Leírás

Eladásra kínálom Zalaegerszeg csácsi részén egy újra gondolt, felújítás alatt lévő nappali+ 3 szobás családi házat, melynek a jellemzői a következők: - Az ingatlan 1022 m2-es sík területen fekszik. A tágas terekkel rendelkező építmény 150,5 m2, ebből a lakótér 100,2 m2. - A ház eredetileg beton alapra tégla falakkal készült, amihez szintén ezen technikával (2024-ben) hozzáépítés történt. - A tető egésze új (lécezve, cserepezve) borítást kapott. - A ház homlokzata nincs hőszigetelve, annak megvalósítása festése az új tulajdonos feladata. - A közművek közül villany (újra vezetékelve+ H tarifa bevezetve), víz (vezetékek modernizálva), csatorna kiépítve. Gáz a telken belül található. - Fűtése vegyes tüzelésű kazánnal megoldva (1000 literes puffertartály teszi kényelmesebbé), a hőleadás padlófűtés formájában történik. Ezt kiegészítve két hűtő-fűtő klíma teszi kellemessé a lakás hőmérsékletét. - A nyílászárók fa szerkezetűek (újonnan beépített). - A házban a közösségi terek kerámia padlóburkolatot kaptak, a szobák padlózata nem készült el, azonban ezt a közeljövőben megvalósítják. - A lakóterek frissen festve, álmennyezettel ellátva. - Az egyik szobán beépített szekrény található. - A konyhabútor gépesített (mosogatógép, sütő beszerelve, főzőlap hiányzik). - fürdőszobában a szaniterek egy része (WC, piszoár), illetve a törölköző tartó radiátor megvételre került. - Az ingatlanban kamerarendszert építettek ki. - A házzal egy egységet alkotva, annak folytatásaként kialakítottak egy mosdóhelyiséget, valamint mosókonyhát, kazánházat és egy két állásos beállót is, melyek együttesen 50,3 m2-t képeznek. - Az udvar, kert rendezése az új tulajdonos fantáziájára van bízva.ó Mindazoknak ajánlom ezen ingatlant, akik a hagyományt modern, minden igényt kielégítő elemekkel ötvözik. Nem zavarja, ha a külső még formálódik, sőt örül annak, hogy a végső simítások az ő elképzeléseit tükrözik. Nagyra értékeli, hogy szinte azonnal beköltözhet egy megújult kertvárosi környezetbe. Ha Ön is szeretne többet megtudni erről az ingatlanról, vagy kérdései lennének, ne habozzon felkeresni minket bizalommal. Az Ön elégedettsége a legfontosabb számunkra, és örömmel segítünk Önnek a legjobb döntés meghozatalában. Irodánk teljes körű szolgáltatást nyújt kereső ügyfeleinek. Szakszerű tanácsadással, ingyenes CSOK és hitelügyintézéssel, energetikai tanúsítvány elkészítésével és kedvező díjszabású ügyvéddel nyújtunk segítséget!

E-mail küldése a hirdetőnek

Hibás hirdetés bejelentése

Sikeres elküldtük a hiba bejelentést.

Hirdető adatai

Sipos Rózsa
E-mail cím: sipos.rozsa@oc.hu
Telefonszám: +36 70 461 9116
Otthon Centrum
Hirdetés feladója: Ingatlaniroda
Ingatlaniroda: Otthon Centrum
E-mail cím: zalaegerszeg@oc.hu
Telefonszám: +36 70 454 0455

Képek



Térkép


Ajánlott ingatlanok

Családi ház

Eladó ház Alsórajk

Keresés azonosító alapján: HI-2507542
  • Alsórajk
  • Alapterület: 100 m²
  • Telekterület: 1 759 m²
  • Ár: 27 900 000 Ft (77 716 €)
  • Feltöltés dátuma: 2025.11.29.
  •  
Családi ház

Eladó ház Gellénháza

Keresés azonosító alapján: HI-2507540
  • Gellénháza
  • Alapterület: 83 m²
  • Telekterület: 1 016 m²
  • Ár: 42 500 000 Ft (118 384 €)
  • Feltöltés dátuma: 2025.11.29.
  •  
Családi ház

Eladó ház Zalaegerszeg, Belváros II.

Keresés azonosító alapján: HI-2490255
  • Zalaegerszeg
  • Alapterület: 104 m²
  • Telekterület: 80 m²
  • Ár: 44 900 000 Ft (125 070 €)
  • Feltöltés dátuma: 2025.10.16.
  •  
Családi ház

Eladó ház Kálócfa

Keresés azonosító alapján: HI-2509692
  • Kálócfa
  • Alapterület: 80 m²
  • Telekterület: 2 171 m²
  • Ár: 15 990 000 Ft (44 540 €)
  • Feltöltés dátuma: 2025.12.04.
  •  
Facebook
Blogger
Twitter
Tweets by hasznaltingatla
Flickr