Eladó Ház, Zamárdi

Ingatlan azonosító: HI-2503552

Somogy megye - Zamárdi, Családi ház


90 000 000 Ft (234 375 €)

  • Hirdetés feladója: Ingatlaniroda
  • Pontos cím: Zamárdi
  • Típus: Eladó
  • Belső irodai azonosító: M317642-5089508
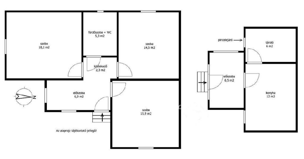
  • Alapterület: 87 m²
  • Telekterület: 730 m² ( 203 négyszögöl )
  • Építés éve: 1928
  • Egész szobák száma (12 m² felett): 3 db
  • Félszobák száma (6-12 m² között): 0 db
  • Ingatlan állapota: közepes állapotú
  • Komfort: komfortos
  • Fűtés: gáz (konvektor)
  • Pince: nincs
  • Akadálymentesített: nincs
  • Napelem van?: nincs
  • Légkondicionáló: nincs

Leírás

Balaton déli part, Zamárdi, 87 m2 családi ház, 730 m2 telek eladó. Az ingatlan a település lakóövezetében helyezkedik el, 600 méterre a kiépített szabadstrandtól. A 63 m2-es lakóház lakóterét egy 24 m2-es külön épületben nyári konyha egészíti ki tárolóval és pincével. A családi ház fűtését gázkonvektor biztosítja, a melegvízről bojler gondoskodik. Az ingatlan értékét növeli egy több lehetőséget rejtő melléképület, illetve egy fúrt kút, ami ellátja a hangulatos, dísznövényekkel, valamint alma- és diófával ültetett, tágas kertet. Az ingatlan kiválóan alkalmas állandó lakhatásra és nyaralásra is, de tökéletes választás lehet befektetési céllal kiadásra is. A kisebb épület könnyen átalakítható egy önálló apartmanná, a saját termésű gyümölcs pedig igazi kincs a mai világban. Lokáció tekintetében ritka lehetőség egy közkedvelt településen, párszáz méterre a strandtól, vasútállomástól, bevásárlási lehetőségtől. Bővebb információért keressen telefonon! Referencia szám: M317642

E-mail küldése a hirdetőnek

Hibás hirdetés bejelentése

Sikeres elküldtük a hiba bejelentést.

Hirdető adatai

Zsitnyányi Ágnes
E-mail cím: agnes.zsitnyanyi@otpip.hu
Telefonszám: +36-70-316-3864
OTPip
Hirdetés feladója: Ingatlaniroda
Ingatlaniroda: OTPip
E-mail cím: siofok.sio@otpip.hu
Telefonszám: +36703163864

Képek



Térkép


Ajánlott ingatlanok

Családi ház

Eladó Ház, Fonyód

Keresés azonosító alapján: HI-2215648
  • Fonyód
  • Alapterület: 130 m²
  • Telekterület: 392 m²
  • Ár: 75 000 000 Ft (195 313 €)
  • Feltöltés dátuma: 2024.04.25.
  •  
Családi ház

Eladó Ház, Balatonőszöd

Keresés azonosító alapján: HI-2331909
  • Balatonőszöd
  • Alapterület: 163 m²
  • Telekterület: 1 058 m²
  • Ár: 87 000 000 Ft (226 563 €)
  • Feltöltés dátuma: 2024.11.15.
  •  
Családi ház

Eladó Ház, Nagyberény

Keresés azonosító alapján: HI-2487221
  • Nagyberény
  • Alapterület: 116 m²
  • Telekterület: 1 723 m²
  • Ár: 55 000 000 Ft (143 229 €)
  • Feltöltés dátuma: 2025.10.08.
  •  
Családi ház

Eladó Ház, Hévíz

Keresés azonosító alapján: HI-2479707
  • Hévíz
  • Alapterület: 459 m²
  • Telekterület: 847 m²
  • Ár: 275 000 000 Ft (716 146 €)
  • Feltöltés dátuma: 2025.09.24.
  •  
Facebook
Blogger
Twitter
Tweets by hasznaltingatla
Flickr