Eladó ipari, Hajdúnánás

Ingatlan azonosító: HI-2468554

Hajdú-Bihar megye - Hajdúnánás, Műhely


750 000 000 Ft (1 928 021 €)

  • Hirdetés feladója: Ingatlaniroda
  • Pontos cím: Hajdúnánás
  • Típus: Eladó
  • Belső irodai azonosító: IP036453-4997146
  • Alapterület: 1 600 m²
  • Építés éve: 1997
  • Fűtés: egyéb kazán
  • Napelem van?: nincs

Leírás

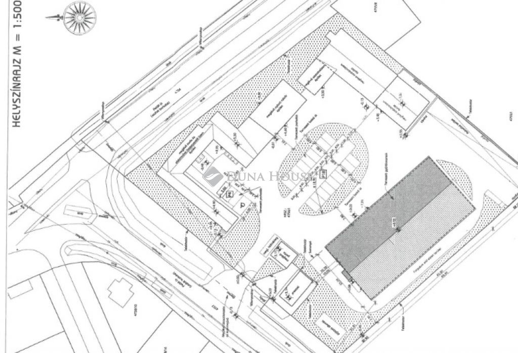
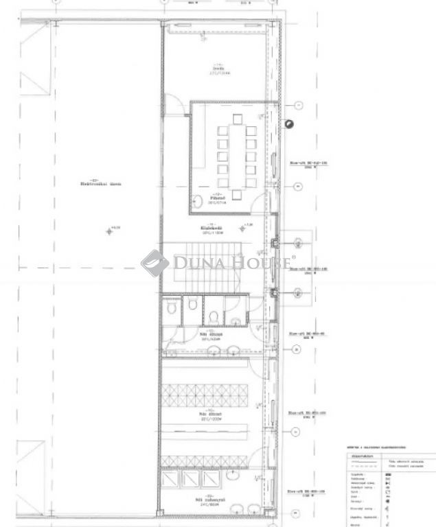
Eladó egy ipari telek Hajdúnánásban, amely 7 734 négyzetméter területű és 2 400 négyzetméteren épületek találhatóak. Az ingatlan vételára 750 000 000 HUF. Ez az ingatlan tökéletes választás lehet azok számára, akik a megnövekedő ipari igényeket kínáló helyszínen szeretnének beruházni.Ez az ingatlan egyedülálló adottságokkal büszkélkedhet, ami tökéletes választássá teszi minden típusú ipari vagy gyártási tevékenység számára.Ez az ingatlan különösen vonzó befektetés lehet, mivel a helyiségek folyamatosan bérbe vannak adva, ami biztosítja a stabil bevételi forrást a jövőben. Amennyiben Ön egy hosszú távú és megbízható befektetési lehetőséget keres, ez az ipari telek Hajdúnánásban ideális választás lehet.Az épületek szendvics panelből készültek, a meleg levegő befújást korszerű gépek biztosítják-A lokáció is kiváló, az autópálya mindössze 2 kilométeres távolságra található, így a Nyíregyházi és Debreceni ipari üzemek gyorsan és könnyen elérhetőek, ami előnyt jelenthet a logisztikai és szállítási tevékenységek szempontjából.Az energiaszükségletet egy 49 kilowatt teljesítményű napelem rendszer biztosítja, amely jelentős mértékben hozzájárul az üzemeltetési költségek csökkentéséhez. Az ipari telek áram ellátottsága kiemelkedő, hiszen 3x120 amperes ipari áram biztosított, ami elengedhetetlen a nagy energiaigényű tevékenységekhez. A terhelhető padozat további előnyt jelent, mivel ezáltal nehezebb gépek és berendezések is elhelyezhetők az épületekben.Az ingatlanon található egy önálló, 1 100 négyzetméteres, 6 méter magas csarnok, amely 4 darab zsilip kapuval rendelkezik, így könnyedén hozzáférhető és alkalmas nagy méretű gépek, vagy áruk tárolására és feldolgozására. Továbbá egy 600 négyzetméteres asztalos műhely is helyet kapott az ingatlanon, amely minden szükséges feltétellel rendelkezik a munkavégzéshez. Az ingatlanon megtalálható egy alkatrész gyártó és iroda helyiség is, amely tovább bővíti a lehetséges hasznosítási módokat.Bővebb felvilágosításért forduljon hozzám bizalommal.www.dh.hu Referencia szám: IP036453

E-mail küldése a hirdetőnek

Hibás hirdetés bejelentése

Sikeres elküldtük a hiba bejelentést.

Hirdető adatai

Lovász Lajos László
E-mail cím: lovasz.lajos@dh.hu
Telefonszám: +36302182905
Duna House
Hirdetés feladója: Ingatlaniroda
Ingatlaniroda: Duna House
E-mail cím: db.derek@dh.hu
Telefonszám: +3652756575

Képek



Térkép


Ajánlott ingatlanok

Műhely

Kiadó ipari, Debrecen

Keresés azonosító alapján: HI-2468622
  • Debrecen
  • Alapterület: 535 m²
  • Ár: 1 800 000 Ft (4 627 €)
  • Feltöltés dátuma: 2025.09.02.
  •  
Külterületi

Eladó Telek, Debrecen

Keresés azonosító alapján: HI-2468595
  • Debrecen
  • Telekterület: 12 414 m²
  • Ár: 142 000 000 Ft (365 039 €)
  • Feltöltés dátuma: 2025.09.02.
  •  
Családi ház

Eladó ház, Debrecen

Keresés azonosító alapján: HI-2468555
  • Debrecen
  • Alapterület: 146 m²
  • Telekterület: 602 m²
  • Ár: 155 000 000 Ft (398 458 €)
  • Feltöltés dátuma: 2025.09.02.
  •  
Fejlesztési terület

Eladó Telek, Debrecen

Keresés azonosító alapján: HI-2468605
  • Debrecen
  • Telekterület: 29 113 m²
  • Ár: 291 000 000 Ft (748 072 €)
  • Feltöltés dátuma: 2025.09.02.
  •  
Facebook
Blogger
Twitter
Tweets by hasznaltingatla
Flickr