Eladó ipari ingatlan Budapest 6. ker., Külső VI.

Ingatlan azonosító: HI-2559781

Budapest - Budapest VI., Csarnok


109 900 000 Ft (300 273 €)

  • Hirdetés feladója: Ingatlaniroda
  • Pontos cím: Budapest VI.
  • Típus: Eladó
  • Belső irodai azonosító: UZ019465-5197313
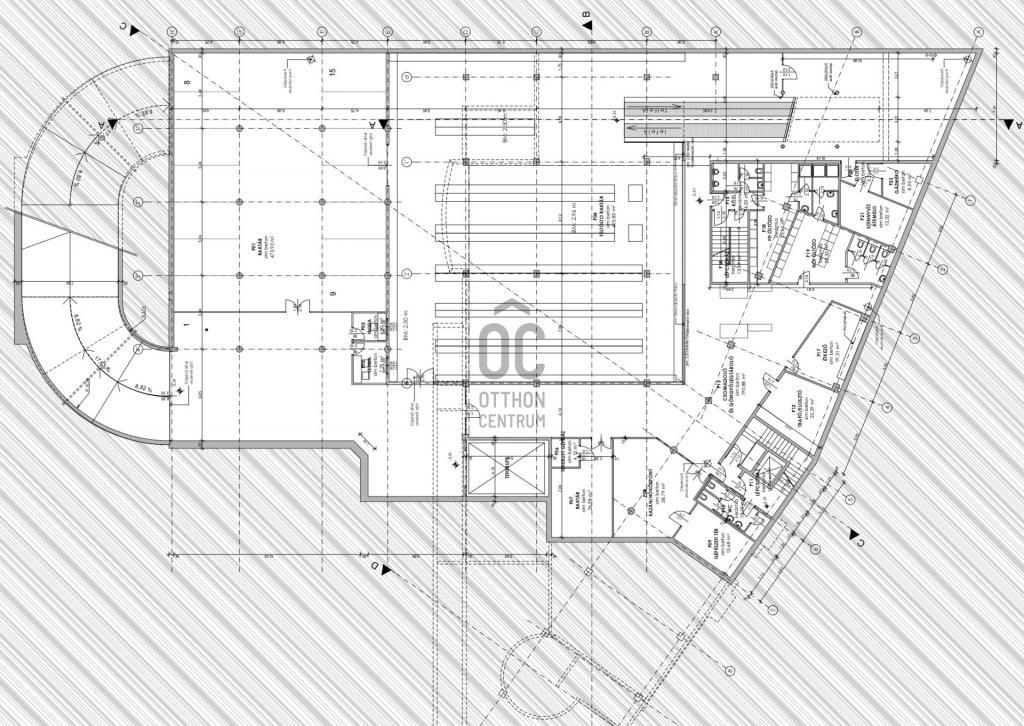
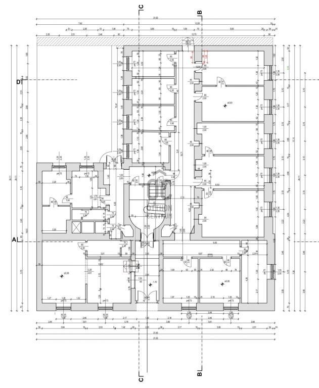
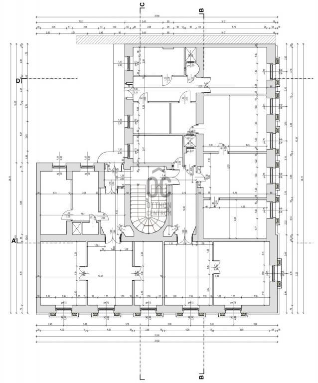
  • Alapterület: 114 m²
  • Fűtés: gáz (cirko)
  • Napelem van?: nincs

Leírás

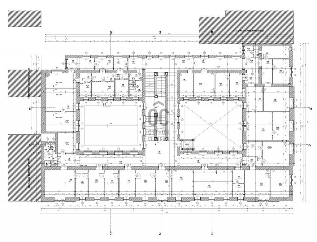
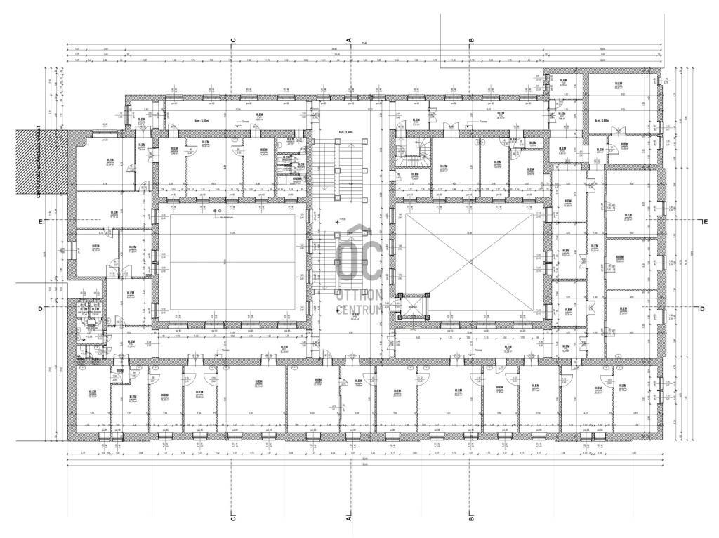
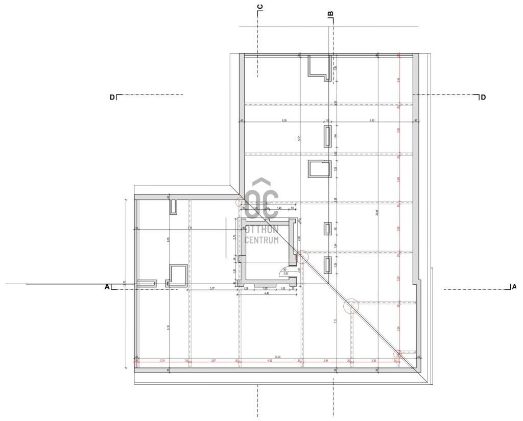
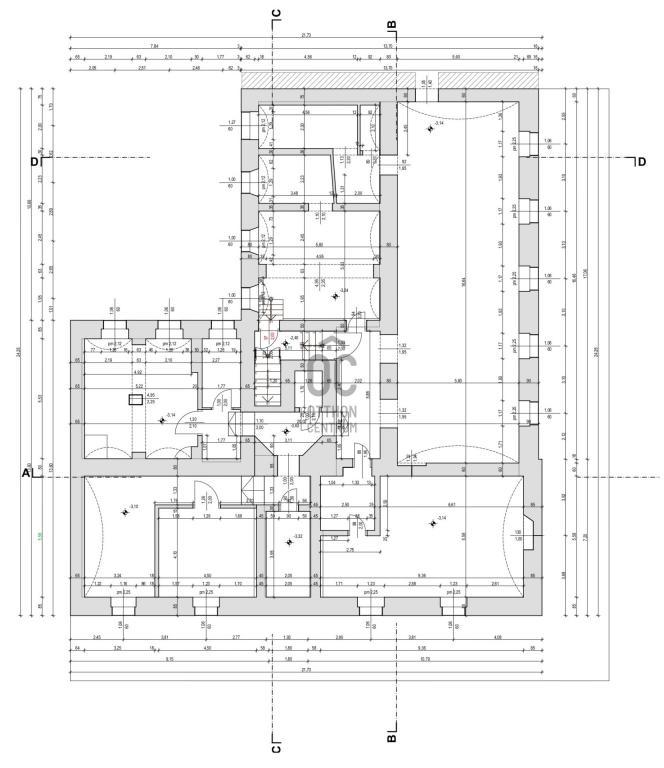
A belváros egyik legkeresettebb részén, a körúttól mindössze egy utcányira kínálunk megvételre egy 114 m² alapterületű, kiváló adottságokkal rendelkező polgári ingatlant, amely ideális választás irodai, egészségügyi vagy egyéb üzleti hasznosításra, de adottságainak köszönhetően galéria vagy exkluzív bemutatóterem kialakítására is alkalmas. A nagyvonalú, jól szeparálható helyiségek és az átalakítható alaprajz lehetővé teszik több iroda vagy rendelő kialakítását, illetve – megfelelő tervezéssel – akár két vagy három önálló egység létrehozását is. A tágas, reprezentatív terek és a jelentős belmagasság különösen alkalmassá teszik az ingatlant ügyfélforgalmat fogadó tevékenységre, bemutatótér, showroom vagy művészeti galéria működtetésére. Az ingatlan mintegy 20 évvel ezelőtt teljes körű műszaki felújításon esett át (villamoshálózat, víz- és csatornarendszer cseréje), néhány éve pedig korszerű gázkazán került beépítésre. Jelenlegi állapota jó, azonnal használatba vehető, ugyanakkor kiváló alapot biztosít egy modern, üzleti koncepció szerinti átalakításhoz. A nagy ablakfelületeknek köszönhetően a helyiségek kifejezetten világosak, ami irodai, egészségügyi vagy kiállítótéri funkció esetén egyaránt kiemelt jelentőségű. A természetes fény és a polgári karakter presztízsértéket képvisel, amely erősíti az ügyfélélményt és a márka megjelenését. A társasház rendezett, folyamatosan karbantartott, a közelmúltban megtörtént a fő víz- és csatornahálózat, valamint a fő gázvezeték cseréje is. Az ingatlanhoz tartozik egy kb. 7 m²-es, zárható saját tároló a száraz pincehelyiségben, levegőcserélő és páramentesítő rendszerrel – a belvárosban ritka és értéknövelő adottság. Az elhelyezkedés üzleti szempontból kiemelkedő: a körút közelsége kiváló megközelíthetőséget és frekventált környezetet biztosít. A Nyugati pályaudvar néhány perc sétára, az Oktogon 8–10 perc gyalogtávolságra található, az 1-es metró megállója szintén rövid sétával elérhető. A környék kiváló infrastruktúrával és tömegközlekedési kapcsolatokkal rendelkezik. Az ingatlan ideális választás ügyvédi iroda, könyvelőiroda, magánorvosi rendelő, egészségügyi vagy esztétikai központ, tanácsadó cég, oktatási központ, galéria, showroom vagy több egységből álló befektetési konstrukció kialakítására. (A terek jobb átláthatósága érdekében a hirdetési képeken a bútorzat eltávolításra került, továbbá néhány helyiség inspirációs jellegű látványtervként szerepel.)

E-mail küldése a hirdetőnek

Hibás hirdetés bejelentése

Sikeres elküldtük a hiba bejelentést.

Hirdető adatai

Fülöp Ágnes
E-mail cím: fulop.agnes@oc.hu
Telefonszám: +36 70 469 3771
Otthon Centrum
Hirdetés feladója: Ingatlaniroda
Ingatlaniroda: Otthon Centrum
E-mail cím: obuda@oc.hu
Telefonszám: +36 70 454 0315

Képek



Térkép


Ajánlott ingatlanok

Lakóövezeti

Eladó telek Budapest 3. ker., Ürömhegy

Keresés azonosító alapján: HI-2559785
  • Budapest III.
  • Telekterület: 1 240 m²
  • Ár: 145 000 000 Ft (396 175 €)
  • Feltöltés dátuma: 2026.04.10.
  •  
Családi ház

Eladó ház Nagykovácsi

Keresés azonosító alapján: HI-2520879
  • Nagykovácsi
  • Alapterület: 118 m²
  • Telekterület: 778 m²
  • Ár: 250 000 000 Ft (683 060 €)
  • Feltöltés dátuma: 2026.01.13.
  •  
Lakóövezeti

Eladó telek Budapest 3. ker., Testvérhegy

Keresés azonosító alapján: HI-2563211
  • Budapest III.
  • Telekterület: 1 639 m²
  • Ár: 249 000 000 Ft (680 328 €)
  • Feltöltés dátuma: 2026.04.20.
  •  
Tégla lakás

Eladó lakás Budapest 2. ker., Budaliget

Keresés azonosító alapján: HI-2520875
  • Budapest II.
  • Alapterület: 117 m²
  • Ár: 265 000 000 Ft (724 044 €)
  • Feltöltés dátuma: 2026.01.13.
  •  
Facebook
Blogger
Twitter
Tweets by hasznaltingatla
Flickr