Eladó Ipari terület, Diósd

Ingatlan azonosító: HI-2512561

Pest megye - Diósd, Családi ház


240 000 000 Ft (674 157 €)

  • Hirdetés feladója: Ingatlaniroda
  • Pontos cím: Diósd
  • Típus: Eladó
  • Belső irodai azonosító: HK-5108103-5108103
  • Alapterület: 541 m²
  • Telekterület: 1 509 m² ( 420 négyszögöl )
  • Építés éve: 2002
  • Egész szobák száma (12 m² felett): 10 db
  • Félszobák száma (6-12 m² között): 0 db
  • Ingatlan állapota: közepes állapotú
  • Fűtés: gáz (cirko)
  • Pince: nincs
  • Akadálymentesített: nincs
  • Napelem van?: nincs
  • Légkondicionáló: nincs

Leírás

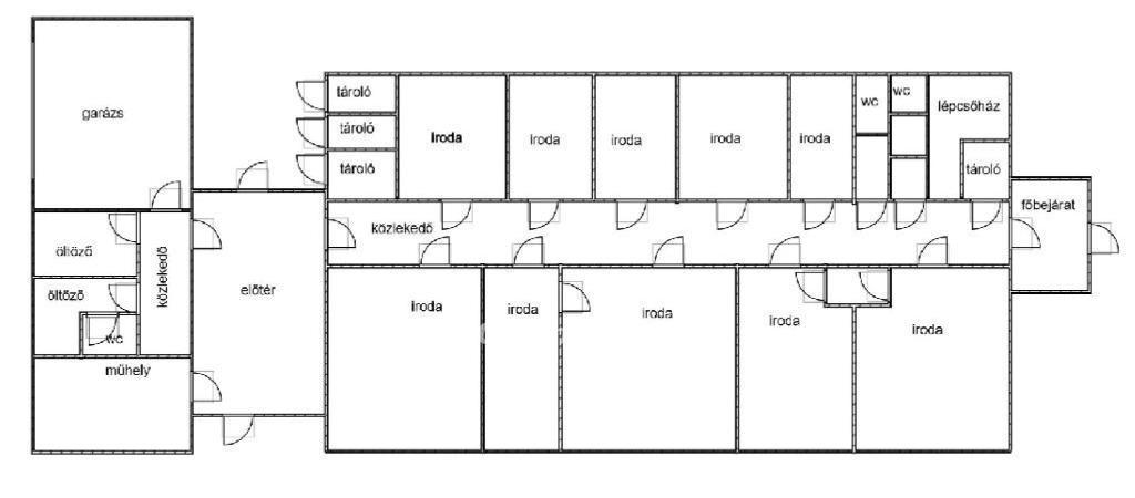
*** Csak az OTP Ingatlanpont kínálatában! *** Diósdon a 7-es főúttól pár percre, csendes, családias környezetben egy 1509 m2-es sík, körbekerített telken, 541 m2-es 2002. évi építésű, újszerű; családi házjellegű, belső két szintes épület ELADÓ! Az ingatlan jó műszaki, esztétikai állapotú. Az épület különálló mérőórákkal felszerelt. Az épület hátsó részében egy 28 m2-es fűtött garázs áll rendelkezésre, valamint az épület mögött a telken, 6-8 helyes parkoló helyezkedik el, továbbá a telek előtt az utcán 3 autó is meg tud állni. Két fő épületrészből álló ingatlant kínálunk megvételre az M0 autóút közelségében, mégis csendes helyen. 450 m2-es kétszintes középfolyosós főépületből és 91 m2-es szociális és garázs blokkból áll. 2 kazán látja el az ingatlan fűtését. 3x80 A áram van bekötve. Két éve nincs használatban, laborként üzemelt. Az ingatlan könnyen más funkcióra is átalakítható, jól hasznosítható. Az ingatlan jelenleg üres. Ár 240.000.000.-Ft+áfa. Az OTP Bankcsoport teljes körű ügyintézéssel áll az eladók és a vevők rendelkezésére! A kínálatunkból választott ingatlan finanszírozásához kedvezményes hitel konstrukciókat kínálunk. Legújabb szolgáltatásként ajánlom minden kedves ügyfelem részére az OTP Bank által közvetített Babaváró, CSOK, vagy egyéb kölcsönök intézését. Az adásvételi szerződés megkötéséhez igény szerint megbízható ügyvédi közreműködést biztosítunk, és segítséget nyújtunk az adásvételhez kapcsolódó ügyek intézéséhez. Akár hétvégén is hívható vagyok! Amennyiben igényli, kérem küldjön sms-t és szívesen visszahívom! Az energetikai tanúsítvány készítése folyamatban van, amint rendelkezésre áll, úgy azzal a hirdetés frissítésre kerül. Érdeklődni: Szlovák Ibolya +36704550993 Referencia szám: M318830-HI

E-mail küldése a hirdetőnek

Hibás hirdetés bejelentése

Sikeres elküldtük a hiba bejelentést.

Hirdető adatai

Szlovák Ibolya
E-mail cím: szlovak.ibolya@otpip.hu
Telefonszám: +36-70-455-0993
OTPip
Hirdetés feladója: Ingatlaniroda
Ingatlaniroda: OTPip
E-mail cím: csongrad@otpip.hu
Telefonszám: +36704550993

Képek



Térkép


Ajánlott ingatlanok

Családi ház

Eladó Ház, Szentes

Keresés azonosító alapján: HI-2202298
  • Szentes
  • Alapterület: 256 m²
  • Telekterület: 778 m²
  • Ár: 59 000 000 Ft (165 730 €)
  • Feltöltés dátuma: 2024.04.02.
  •  
Családi ház

Eladó Ház, Szentes

Keresés azonosító alapján: HI-2560296
  • Szentes
  • Alapterület: 72 m²
  • Telekterület: 1 238 m²
  • Ár: 13 900 000 Ft (39 045 €)
  • Feltöltés dátuma: 2026.04.13.
  •  
Családi ház

Eladó Ház, Kiskőrös

Keresés azonosító alapján: HI-2560320
  • Kiskőrös
  • Alapterület: 135 m²
  • Telekterület: 758 m²
  • Ár: 48 000 000 Ft (134 831 €)
  • Feltöltés dátuma: 2026.04.13.
  •  
Családi ház

Eladó Ház, Csanytelek

Keresés azonosító alapján: HI-2542860
  • Csanytelek
  • Alapterület: 87 m²
  • Telekterület: 2 276 m²
  • Ár: 6 990 000 Ft (19 635 €)
  • Feltöltés dátuma: 2026.03.02.
  •  
Facebook
Blogger
Twitter
Tweets by hasznaltingatla
Flickr