Eladó Ipari terület, Nyíregyháza

Ingatlan azonosító: HI-2547321

Szabolcs-Szatmár-Bereg megye - Nyíregyháza, Fejlesztési terület


109 000 000 Ft (278 061 €)

  • Hirdetés feladója: Ingatlaniroda
  • Pontos cím: Nyíregyháza
  • Típus: Eladó
  • Belső irodai azonosító: M319716-5166986
  • Telekterület: 712 m² ( 198 négyszögöl )
  • Építés éve: 2005

Leírás

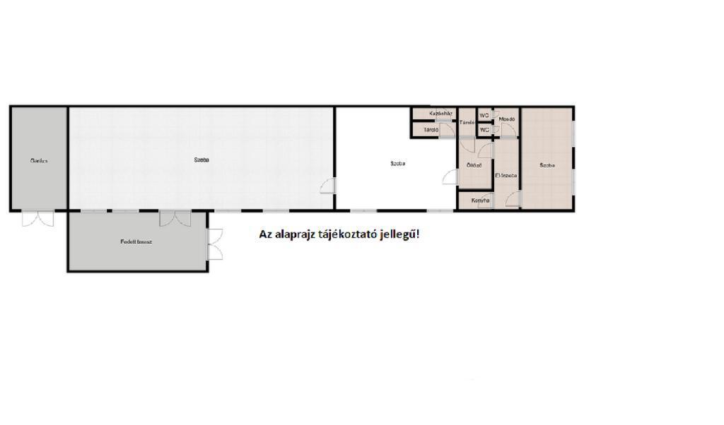
Nyíregyháza-Kertváros: Kiemelkedő adottságú, 363 nm-es irodaház és telephely eladó! Nyíregyháza egyik legkedveltebb részén, a Kertvárosban kínálunk eladásra egy 2005-ös építésű, minden szempontból professzionális ipari és kereskedelmi ingatlant. A 712 nm-es, szabályos négyzet alakú telken fekvő épület jelenleg egy sikeres webshop központjaként és gyártóegységeként funkcionál. Kiváló választás azonnali használatba vételre vagy modern irodaház kialakítására. Alapterület és elosztás: Az épület hasznos belső alapterülete 363 nm, amelyet egy 25 nm-es garázs és egy 30 nm-es fedett terasz egészít ki (így a teljes fedett terület összesen több mint 418 nm). A helyiségek csoportosítva: Munkaterek és irodák (összesen 313 nm): Központi csarnok/nagyterem: 93,5 nm Tágas iroda/műhely: 54 nm További 6 különálló helyiség: 46,5 nm, 39 nm, 37 nm, 17,4 nm, 13,1 nm és 12,5 nm. Kiszolgáló és szociális blokk: 2 konyha (5 nm, 1,9 nm) és kamra (2 nm). Fürdőszoba (5,3 nm) és összesen 4 különálló WC/mosdó helyiség. Két kényelmes közlekedő/előtér (5,7 nm és 2 nm). Technikai helyiségek: Belső tárolók (7 nm és 3,3 nm), kazánház (2 nm) és lépcsőház (7,5 nm). Gépjármű tárolás és pihenő: 25 nm-es saját garázs. 30 nm-es fedett terasz. Műszaki jellemzők: Szigetelés: 38-as tégla falazat + 8 cm-es külső hőszigetelés. Állapot: Kifogástalan tetőszerkezet, esztétikus hideg- és melegburkolatok. Rezsiköltség: A cirkó gázfűtés havi átlagdíja rendkívül kedvező, mindössze 30 000 Ft körül alakul. Miért kiváló befektetés? Sokoldalúság: Szerkezeti adottságai révén az épület akár 4 különálló lakássá is átalakítható, így ingatlanfejlesztőknek is nagy profitot ígér. Raktározás: Az udvaron található mobil fém raktárak megegyezés szerint átvehetők. Logisztika: Az autópálya és vasút közelsége, valamint a buszközlekedés és az ingyenes utcai parkolás kiemelkedő. Jogtiszta: Tehermentes, 1/1 céges tulajdon, azonnal hitelezhető. Ügyintézés: Az OTP Bankcsoport teljes körű támogatást nyújt! Igény szerint megbízható ügyvédi közreműködést és soron kívüli, díjmentes hiteltanácsadást biztosítunk. Referenciaszám: M319716

E-mail küldése a hirdetőnek

Hibás hirdetés bejelentése

Sikeres elküldtük a hiba bejelentést.

Hirdető adatai

Nádasdi Bence
E-mail cím: bence.nadasdi@otpip.hu
Telefonszám: +36204516275
OTPip
Hirdetés feladója: Ingatlaniroda
Ingatlaniroda: OTPip
E-mail cím: nyiregyhaza.solyom@otpip.hu
Telefonszám: +36308511539

Képek



Térkép


Ajánlott ingatlanok

Fejlesztési terület

Eladó Ipari terület, Nagykálló

Keresés azonosító alapján: HI-2548046
  • Nagykálló
  • Alapterület: 280 m²
  • Telekterület: 2 783 m²
  • Ár: 99 000 000 Ft (252 551 €)
  • Feltöltés dátuma: 2026.03.08.
  •  
Fejlesztési terület

Eladó Ipari terület, Nyíregyháza

Keresés azonosító alapján: HI-2548041
  • Nyíregyháza
  • Alapterület: 200 m²
  • Telekterület: 1 023 m²
  • Ár: 69 900 000 Ft (178 316 €)
  • Feltöltés dátuma: 2026.03.08.
  •  
Fejlesztési terület

Eladó Ipari terület, Nyírtelek

Keresés azonosító alapján: HI-2547315
  • Nyírtelek
  • Alapterület: 4 000 m²
  • Telekterület: 13 341 m²
  • Ár: 290 000 000 Ft (739 796 €)
  • Feltöltés dátuma: 2026.03.06.
  •  
Lakóövezeti

Eladó Telek, Nyíregyháza

Keresés azonosító alapján: HI-2548052
  • Nyíregyháza
  • Telekterület: 2 329 m²
  • Ár: 13 000 000 Ft (33 163 €)
  • Feltöltés dátuma: 2026.03.08.
  •  
Facebook
Blogger
Twitter
Tweets by hasznaltingatla
Flickr