Eladó iroda Budapest 19. ker., Kispest

Ingatlan azonosító: HI-2540973

Budapest - Budapest XIX., Irodaházban A, A+ kat.


319 990 000 Ft (853 307 €)

  • Hirdetés feladója: Ingatlaniroda
  • Pontos cím: Budapest XIX.
  • Típus: Eladó
  • Belső irodai azonosító: UZ019425-5156756
  • Alapterület: 511 m²
  • Építés éve: 2001
  • Félszobák száma (6-12 m² között): 0 db
  • Emelet: földszint
  • Lift: nincs
  • Akadálymentesített: nincs
  • Energiatanúsítvány: F
  • Napelem van?: nincs
  • Légkondicionáló: nincs

Leírás

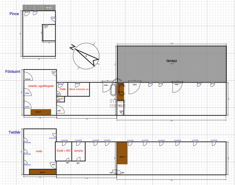
Kispest frekventált részén eladó egy sokoldalúan hasznosítható üzleti ingatlan, jó megközelíthetőséggel, utcafronti elhelyezkedéssel. A 545 m²-es telken egy 238 m² alapterületű, háromszintes (pince + földszint + tetőtér), jelenleg is üzletként és raktárként funkcionáló épület valamint egy 134m²-es terasz található. A födszinten egy utcafronti üzlettér, egy kisméretű irodai szoba, egy dolgozói öltöző zuhanyzókkal, illetve két nagy alapterületű műhely/raktár kapott helyet, több bejárattal és kapuval. A félnyeregtetős, 3,5 m csúcsmagasságú beépített tetőtéren egy nagyobb irodai helyiség, egy fürdőszoba, egy konyha, illetve üzemi funkciókra alkalmas tér található. Az épület alatt egy 2,5 m belmagasságú pince biztosít extra raktározási lehetőséget. A 134 m²-es terasz (fedett udvari rész) alkalmas pakolásra, tárolásra vagy kültéri munkavégzésre. Az aszfaltozott udvarnak köszönhetően az ingatlan alkalmas kisebb méretű teherautók fogadására és rakodására is. Ideális lehet: kereskedelmi tevékenységre bemutatóterem + műhely kombinációra szerviznek, üzemnek központi irodának raktárral webáruházas logisztikai bázisnak oktatóközpontnak egészségügyi központnak sportközpontnak Jó lokáció, rugalmasan alakítható terek, komplex üzleti működésre optimalizált kialakítás. Beépíthetőség: 60% maximális beépíthetőség. Szintterületi mutató: Maximum 1,9 m²/m². Maximális építménymagasság: 10,5 m. Referencia szám: UZ019425-HI

E-mail küldése a hirdetőnek

Hibás hirdetés bejelentése

Sikeres elküldtük a hiba bejelentést.

Hirdető adatai

Bittera Viktória
E-mail cím: bittera.viktoria@oc.hu
Telefonszám: +36 70 388 5031
Otthon Centrum
Hirdetés feladója: Ingatlaniroda
Ingatlaniroda: Otthon Centrum
E-mail cím: 21.kerulet@oc.hu
Telefonszám: +36 1 618 4170

Képek



Térkép


Ajánlott ingatlanok

Irodaházban A, A+ kat.

Eladó iroda Budapest 10. ker., Óhegy

Keresés azonosító alapján: HI-2472795
  • Budapest X.
  • Alapterület: 1 716 m²
  • Ár: 779 000 000 Ft (2 077 333 €)
  • Feltöltés dátuma: 2025.09.11.
  •  
Családi ház

Eladó ház Budapest 21. ker., Kertváros

Keresés azonosító alapján: HI-2500577
  • Budapest XXI.
  • Alapterület: 153 m²
  • Telekterület: 582 m²
  • Ár: 85 000 000 Ft (226 667 €)
  • Feltöltés dátuma: 2025.11.11.
  •  
Tégla lakás

Eladó lakás Budapest 10. ker., Óhegy

Keresés azonosító alapján: HI-2484552
  • Budapest X.
  • Alapterület: 49 m²
  • Ár: 59 990 000 Ft (159 973 €)
  • Feltöltés dátuma: 2025.10.02.
  •  
Családi ház

Eladó ház Budapest 18. ker., Szent Imre-kertváros

Keresés azonosító alapján: HI-2376729
  • Budapest XVIII.
  • Alapterület: 160 m²
  • Telekterület: 819 m²
  • Ár: 143 000 000 Ft (381 333 €)
  • Feltöltés dátuma: 2025.02.20.
  •  
Facebook
Blogger
Twitter
Tweets by hasznaltingatla
Flickr